{"obj_regio1":"009","obj_regio2":"009001","obj_regio3":"009001013","obj_ityp":"0","obj_zipCode":"1130","obj_title":"Balkonwohnung in ruhiger Lage / Althietzing - befristet","obj_picture":"https://pictures.immobilienscout24.de/prod.www.immobilienscout24.at/pictureserver/loadPicture?q=70&id=012.0012000001E3rCX-d2d05c3c50eb4f059c9843045fc52763","obj_exclusiveExpose":"false","obj_cwId":null,"obj_purchasePrice":null,"obj_purchasePriceRange":null,"obj_baseRentRange":"9"}
  • Provisionsfrei
  • Parkplatz
  • Balkon

Balkonwohnung in ruhiger Lage / Althietzing - befristet

2.303
 
118 m²4 ZimmerBalkon 19 m²
Etage5
Befristung-
Kaution-
homefinding.at - Mag Janauer & Göllner GmbHFrancisca Petersen
Fichtnergasse, 1130 Wien

Laufende Kosten

Miete2.302,78 €
Preis pro m²19,53 €
Kalkuliert von ImmoScout24
Betriebskosten269,47 €

Hallo neues Zuhause!

Kenne deine Chance mit Plus

Online seit120Gesehen80Kontaktiert40Gemerkt63
Plus locked

Merkmale

Wohnung
Neubau, Unterkellert, Parkett, Fliesen, 5. Etage
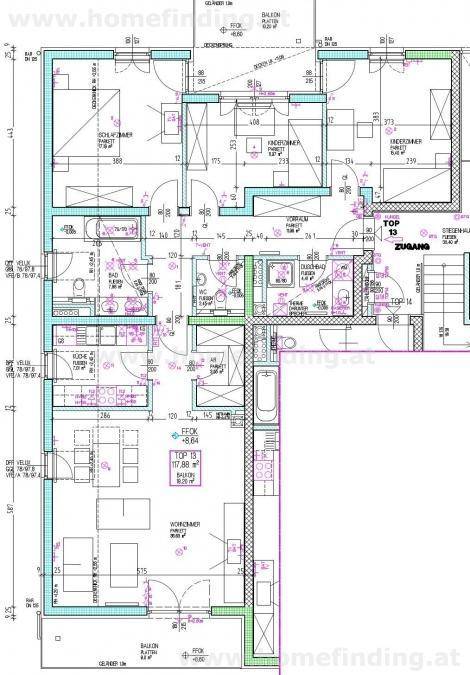
Wohnfläche 117,88 m²
1 Balkon 19 m²
4 Zimmer
2 Badezimmer, 2 Toiletten, Abstellraum
Garage

Ausstattung

Badewanne, Dusche

Heizung

Etagenheizung
Heizwärmebedarf (HWB)
45.30 kWh/(m²a)
B

Beschreibung

Dachgeschoßwohnung nur wenige Minuten von Hietzing Zentrum entfernt und doch ruhig gelegen - beim Hüglpark.

VIDEO: https://youtu.be/cZH83LyKfJM

LAGE
Supermärkte, Restaurants, Apotheken etc. befinden sich nur wenige Minuten entfernt. Die beliebte Hietzinger Hauptstraße ist ebenfalls gut zu Fuß erreichbar. Öffentliche Verkehrsmittel befinden sich im nahen Umfeld und verbinden rasch mit anderen Bezirken.

ÖFFIS
10, 52 60

VIDEO: https://youtu.be/L2rGqtJDzMU

OBJEKT
Diese moderne Wohnung verfügt über folgende Räume:

.zentrales Vorzimmer
.ca 38m² Wohn-Esszimmer mit Balkon (9m²)
.separate Küche mit Fenster
.3 Schlafzimmer - alle mit Ausgang auf den 10m² Balkon
.Bad (Wanne, WC)
.Duschbad mit WC
.Abstellraum

AUSSTATTUNG
.Parkett- und Fliesenböden
.2x Balkon
.Ein Garagenplatz kann für € 211,90 angemietet werden.

VORAUSSETZUNGEN
.monatliches Netto-Haushaltseinkommen > 3-fache der Miete
.3 aktuelle Gehaltszettel/ Arbeitsvertrag/ ESt-Bescheid
.Bürge: monatliches Nettoeinkommen > 4-fache der Miete
.aktueller Meldezettel

KOSTEN
Miete: inkl BK und inkl MwSt
Kaution: 4 1/2 BMM
Vertragserrichtungsgebühr: € 600,00

Der Makler vertritt ausschließlich den Vermieter. Es besteht ein wirtschaftliches Naheverhältnis aufgrund wiederkehrender Beauftragung.
---

Aufgrund einer neuen EU-Richtlinie können wir Ihnen erst dann Unterlagen zu unseren Objekten zusenden, wenn Sie uns bestätigen, dass Sie über Ihr Rücktrittsrecht aufgeklärt wurden und unser sofortiges Tätigwerden wünschen. Sie bekommen nach Ihrer Anfrage ein Infomail, in dem Sie diese Punkte bestätigen müssen. Wir bitten um Verständnis.

Modern apartment in a silent neighbourhood

LOCATION
Shops, supermarkets, restaurants, pharmacies can be reaches by a short walk. Public lines are nearby and offer a quick connection to other districts.

PUBLIC TRANSPORT
10, 52, 60

PROPERTY
It is located on the attic and has following rooms:
.entree
.38m² living dining room with 9m² balcony
.kitchen with window
.3 bedrooms - each with access to 10m² balcony
.bathroom (tub, toilet)
.second bathroom (shower, toilet)

EQUIPMENT
.wooden and tiled floors
.2x balcony
.in house garage can be rent separately (€ 211,90/ month)

COSTS
rent: general maintenance costs and VAT included
depsoit: 4 1/2 gross rents
fee for setting-up the contract: € 600,00

Kontaktieren

Gewerblichhomefinding.at - Mag Janauer & Göllner GmbHFrancisca Petersen
Nachricht
Anrede
Vorname
Nachname
E-Mail
Telefon
Gewerblichhomefinding.at - Mag Janauer & Göllner GmbHFrancisca Petersen
 Verifiziert von ImmoScout24
Bronze Partner