{"obj_regio1":"009","obj_regio2":"009001","obj_regio3":"009001004","obj_ityp":"7","obj_zipCode":"1040","obj_title":"Bürofläche im Palais Schwindgasse – ca. 336 m² im 1. Obergeschoss","obj_picture":"https://pictures.immobilienscout24.de/prod.www.immobilienscout24.at/pictureserver/loadPicture?q=70&id=012.0012000001NfIjB-1759157326-8b193c2eca44401ab85851976e5cb117","obj_exclusiveExpose":"true","obj_cwId":"ADS0017893090","obj_purchasePrice":2800000,"obj_purchasePriceRange":"11","obj_baseRentRange":null}
  • Altbau

Bürofläche im Palais Schwindgasse – ca. 336 m² im 1. Obergeschoss

2.800.000
 
336 m²5 Zimmer
RE/MAX FirstHerr Norbert Galfusz
1040 Wien, Wieden

Einmalige Kosten

Kaufpreis2.800.000 €
Kaufpreis pro m²8.330,11 €
Kalkuliert von ImmoScout24
Preisinformation: Verhandlungsbasis
Provision zzgl. 20% USt.: 3.00 % zuzüglich USt.

Laufende Kosten

Monatliche Kosten1.600,52 €
Steuersatz20 %

Hallo neues Zuhause!

Kenne deine Chance mit Plus

Online seit120Gesehen80Kontaktiert40Gemerkt63
Plus locked

Merkmale

Verfügbar ab sofort
Büro
Baujahr 1873, Altbau, Gepflegt
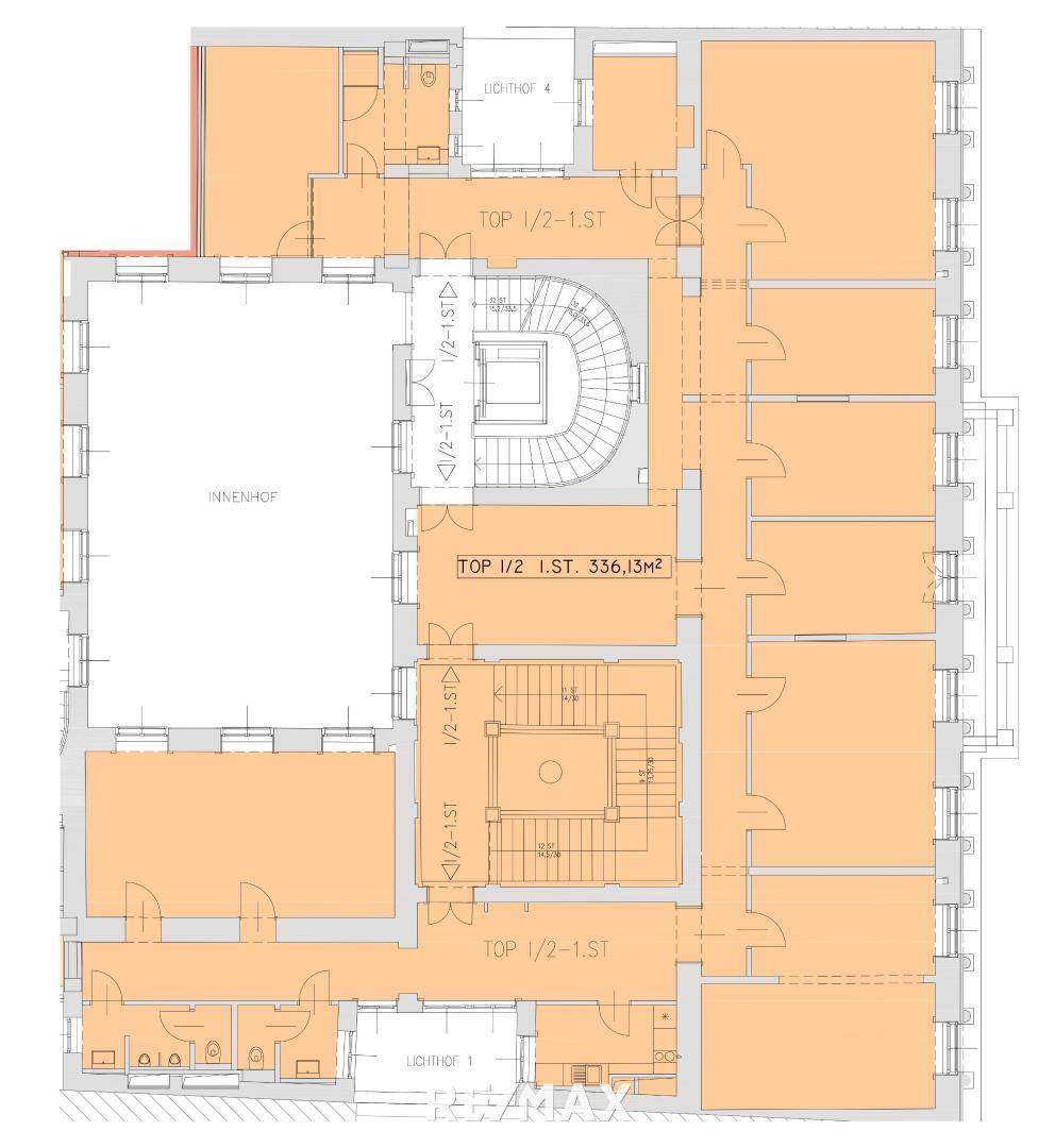
Bürofläche 336,13 m²
Nutzfläche 336,13 m²
5 Zimmer
2 Toiletten

Ausstattung

Klimatisiert
Personenaufzug

Heizung

Zentralheizung
Heizwärmebedarf (HWB)
119. kWh/(m²a)
C
Gesamtenergieeffizienzfaktor (fGEE)
1.090
C

Beschreibung

Repräsentatives Büro im Palais Schwindgasse – 336 m² im 1. Obergeschoß

Diese großzügige Büroeinheit befindet sich in der Beletage eines denkmalgeschützten Palais aus dem Jahr 1873. Auf rund 336 m² stehen mehrere Büroräume, ein Besprechungszimmer und ein großzügiger Empfangsbereich zur Verfügung. Ergänzt wird die Fläche durch zwei Sanitäreinheiten, praktische Nebenräume und eine Teeküche.

Hohe Decken, Parkettböden und originale Details wie Holz-Kastenfenster unterstreichen den historischen Charme. Gleichzeitig sorgen moderne Technik, Fan-Coil-Heizung und -Kühlung sowie elektrischer Sonnenschutz für zeitgemäßen Komfort. Das Gebäude ist mit zwei Liften ausgestattet und verfügt über eine hauseigene Garage mit Stellplätzen.

Die Lage in der Schwindgasse 5 überzeugt durch ihre Ruhe und Exklusivität im Wiener Botschaftsviertel. In wenigen Gehminuten erreichbar: Karlskirche, Belvedere, Schwarzenbergplatz und die Innenstadt. Die Anbindung an U-Bahn, Straßenbahn und Bus ist hervorragend.

Dieses Büro bietet eine repräsentative Adresse für Unternehmen, Kanzleien oder Institutionen, die Wert auf Prestige, Lagequalität und Werthaltigkeit legen.
______________________________________________________________________________________________________________

Kann ich mir diese Immobilie leisten?

  • % Nebenkosten
    0 €/ Monat
  • % Zinsen
    0 €/ Monat
  • % Kaufpreis
    0 €/ Monat
*
pro Monat
* errechnete monatliche Kreditrate bei einem angenommenen Effektivzins von 1.6% p.a. Die Berechnung stellt einen unverbindlichen Richtwert dar und ist von der Bonität, Kredithöhe, Laufzeit, Verwendungszweck und Besicherung abhängig.

Kontaktieren

GewerblichRE/MAX FirstHerr Norbert Galfusz
Nachricht
Anrede
Vorname
Nachname
E-Mail
Telefon
Ich bin Eigentümer:in einer Immobilie
GewerblichRE/MAX FirstHerr Norbert Galfusz
 Verifiziert von ImmoScout24
Bronze Partner