{"obj_regio1":"009","obj_regio2":"009001","obj_regio3":"009001002","obj_ityp":"0","obj_zipCode":"1020","obj_title":"Marina Tower, Erstbezug 10. Stock - Direkt an der U2 (Donaumarina) !","obj_picture":"https://pictures.immobilienscout24.de/prod.www.immobilienscout24.at/pictureserver/loadPicture?q=70&id=012.0015I00000kvxm7-1759141405-3f3e583342b4467aa8eedd332db58077","obj_exclusiveExpose":"false","obj_cwId":null,"obj_purchasePrice":null,"obj_purchasePriceRange":null,"obj_baseRentRange":"8"}
  • Provisionsfrei
  • Balkon

Marina Tower, Erstbezug 10. Stock - Direkt an der U2 (Donaumarina) !

1.788
 
69 m²3 ZimmerBalkonLoggia
Etage10
Befristung5 Jahre
Kaution6.000 €
Z-Plus Immobilien e.U.Z-Plus Immobilien e.U.
1020 Wien

Laufende Kosten

Monatliche Kosten1.787,83 €
Preis pro m²25,9 €
Kalkuliert von ImmoScout24
Gesamtbelastung Netto1.625,3 €
USt. Gesamtbelastung162,53 €
Miete1.350 €
USt. Miete135 €
Betriebskosten275,3 €
USt. Betriebskosten27,53 €

Einmalige Kosten

Provision: provisionsfrei
ImmoScout24 Tipp: Seit dem 01.07.2023 gilt das Bestellerprinzip. Die Vermittlung von Wohnungen und Häusern zur Miete über Inserate ist seitdem für Suchende provisionsfrei.
Kaution6.000 €

Hallo neues Zuhause!

Kenne deine Chance mit Plus

Online seit120Gesehen80Kontaktiert40Gemerkt63
Plus locked

Merkmale

Verfügbar ab ab sofort
befristet auf 5 Jahre
Wohnung
Baujahr 2021, Erstbezug, Unterkellert, Parkett, Fliesen, 10. Etage, Insgesamt 41 Etagen
Wohnfläche 69,02 m²
Gesamtfläche 89,06 m²
1 Balkon
2 Loggien
3 Zimmer
Kellerfläche 2,1 m², 1 Badezimmer, 1 Toilette, Abstellraum

Ausstattung

Fernblick, Einbauküche, Dusche, Klimatisiert, Swimmingpool
Barrierefrei, Personenaufzug

Heizung

FernwärmeFußbodenheizung
Heizwärmebedarf (HWB)
22.6 kWh/(m²a)
A
Gesamtenergieeffizienzfaktor (fGEE)
0.71
A

Beschreibung

LAGE

Der Marina Tower liegt nicht nur direkt am Wasser, sondern auch mitten im Grünen - und damit nahezu perfekt. Die Nähe zur Innenstadt, zum Wiener Prater und zur Donauinsel bietet Ihnen zahlreiche Freizeit- und Gesundheitseinrichtungen sowie vielseitige Einkaufsmöglichkeiten. Mit den öffentlichen Verkehrsmitteln sind die Universitäten oder das Messezentrum in wenigen Minuten erreichbar. Die Anbindung mit der U2- Bahn Station Donaumarina könnte nicht besser sein - in rund 20 Minuten erreicht man die Innenstadt. Die A23 Südosttangente bietet eine ideale Verbindung mit dem Auto Richtung Norden und Süden. Buslinien 79A und 79B ebenfalls direkt vor dem Gebäude.



OBJEKT

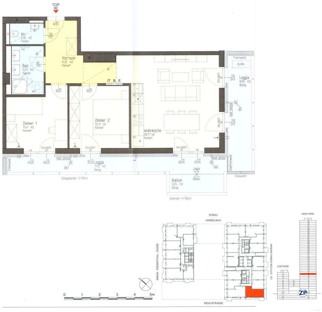
Die Erstbezug Wohnung mit ca. 89,06 m² Wohnfläche zzgl. ca. 20,04 m² rundum Loggiaund ca. 3,25 m² Balkon liegt im 10 Obergeschoss, bietet eine traumhafte Aussicht und ist wie folgt aufgegliedert:



• Vorraum 9,22 m²

• WC 2,30 m²

• Wohnküche 28,77 m²

• Schlafzimmer 12,31 m²

• Schlafzimmer 11,41 m²

• Badezimmer mit Dusche/ Doppelwaschbecken und Waschmaschinenanschluss 5,01 m²

• Balkon/Loggia 23,29 m²



Die Wohnung ist mit hochwertigen und maßangefertigten Küche ausgestattet.



Weitere Ausstattung:

• Echtholzparkettboden

• Großformatige Fliesen (in den Nassbereichen)

• 3-fach isolierverglaste Kunststoff-Fenster

• Fußbodenheizung

• Fußbodenkühlung

• Sonnenschutz

• Sicherheitstüre

• Wohnraumlüftung

• Deckenkühlung

• Vollwärmeschutzfassade (geringer Heizwärmebedarf = geringe Heizkosten)

• Lift

• extra Einlagerungsraum ca. 2,10 m²



Highlights Marina Tower:

• Concierge Service

• Cataring Station mit Küche

• Home-Cinema

• Paket-Station

• großes Fitnessstudio mit Pool im Haus

• Kindergarten im Haus

• Billa im Haus



KONDITIONEN

Die Gesamtmonatsmiete beträgt € 1.787,83 und schlüsselt sich wie folgt auf:

€ 1.350,--    Hauptmietzins

€    275,30  Betriebskostenakontierung

€    162,53  Ust. 10%



Für Heizung, Warmwasser und Kaltwasser ist ein monatlicher Akontobetrag zusätzlich vorgeschrieben.

Die Abrechnung erfolgt nach tatsächlichem Verbrauch.

Kontaktieren

GewerblichZ-Plus Immobilien e.U.Z-Plus Immobilien e.U.
Nachricht
Anrede
Vorname
Nachname
E-Mail
Telefon
GewerblichZ-Plus Immobilien e.U.Z-Plus Immobilien e.U.
 Verifiziert von ImmoScout24
Bronze Partner