{"obj_regio1":"009","obj_regio2":"009001","obj_regio3":"009001001","obj_ityp":"0","obj_zipCode":"1010","obj_title":"Top-DG Wohnung - rund 175m² in zentraler Lage des ersten Bezirks - mit 360° Terrassenfläche - unbefristet!","obj_picture":"https://pictures.immobilienscout24.de/prod.www.immobilienscout24.at/pictureserver/loadPicture?q=70&id=012.0015I00000hu4zF-1759478106-e4609112c75a429987a4a828c7247d52","obj_exclusiveExpose":"false","obj_cwId":null,"obj_purchasePrice":null,"obj_purchasePriceRange":null,"obj_baseRentRange":"9"}
  • Provisionsfrei
  • Dachgeschosswohnung
  • Terrasse

Top-DG Wohnung - rund 175m² in zentraler Lage des ersten Bezirks - mit 360° Terrassenfläche - unbefristet!

4.253
 
175 m²3,5 ZimmerTerrasse 35 m²
Etage-
Befristung-
Kaution12.800 €
Yellowbird Immobilienmakler GmbHHerr Karl Urban
1010 Wien,Innere Stadt
Rathaus

Laufende Kosten

Monatliche Kosten4.252,77 €
Preis pro m²20,02 €
Gesamtbelastung Netto3.866,15 €
USt. Gesamtbelastung386,62 €
Miete3.500 €
USt. Miete350 €
Betriebskosten300,76 €
USt. Betriebskosten30,08 €
Sonstige Kosten Netto65,39 €
USt. Sonstige Kosten6,54 €

Einmalige Kosten

Provision: Gemäß Erstauftraggeberprinzip bezahlt der Abgeber die Provision.
ImmoScout24 Tipp: Seit dem 01.07.2023 gilt das Bestellerprinzip. Die Vermittlung von Wohnungen und Häusern zur Miete über Inserate ist seitdem für Suchende provisionsfrei.
Kaution: 12.800,00 €

Hallo neues Zuhause!

Kenne deine Chance mit Plus

Online seit120Gesehen80Kontaktiert40Gemerkt63
Plus locked

Merkmale

Verfügbar ab sofort
unbefristet
Dachgeschosswohnung
Gepflegt, Unterkellert, Parkett, Fliesen
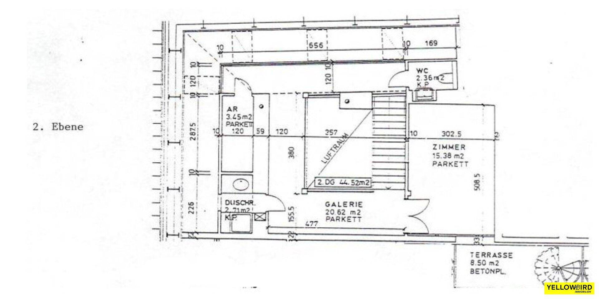
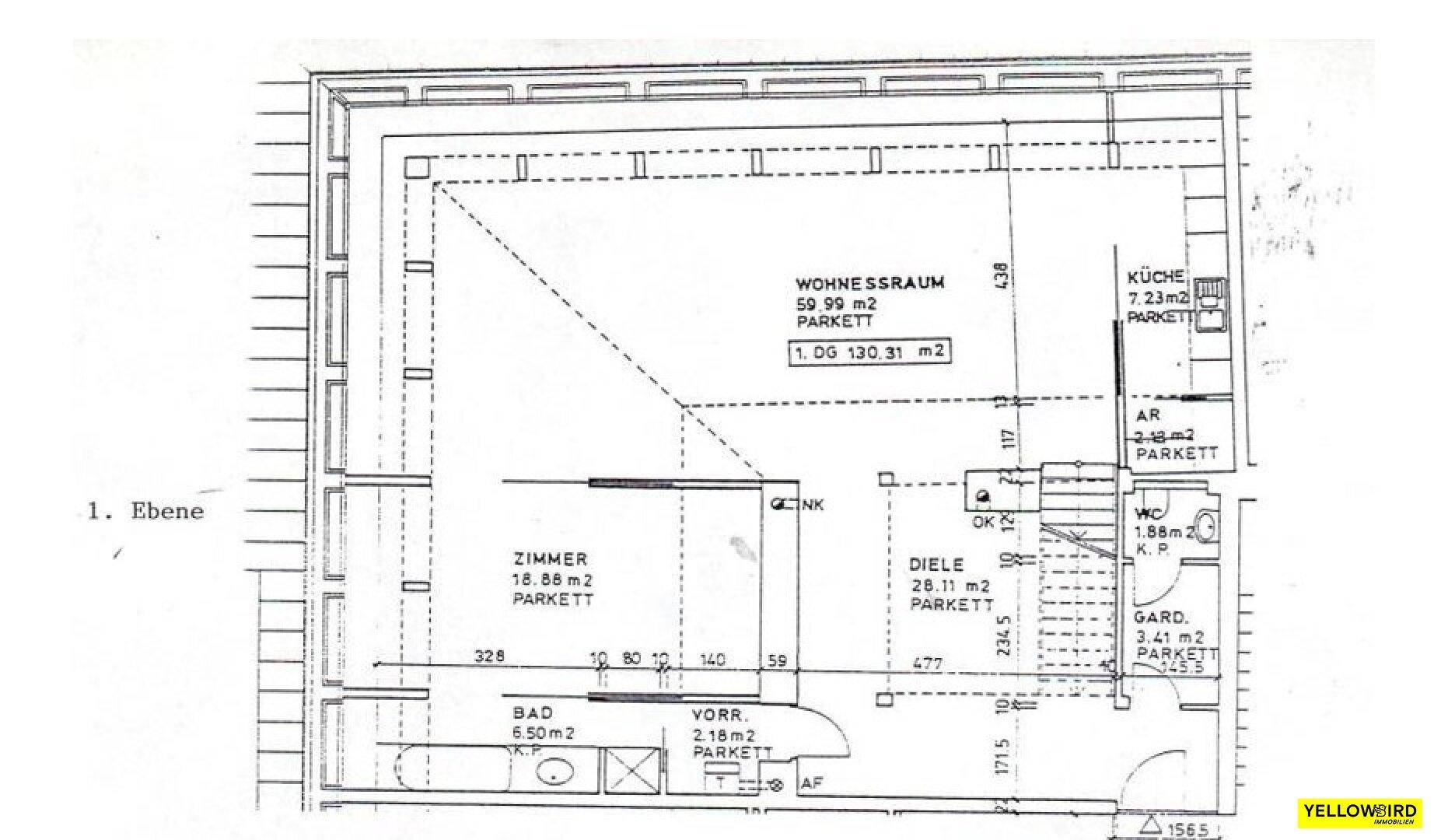
Gesamtfläche 174,83 m²
Nutzfläche 174,83 m²
2 Terrassen 34,99 m² westseitig, südwestseitig
westseitig, südwestseitig
3,5 Zimmer
2 Badezimmer, 2 Toiletten

Ausstattung

Einbauküche, Dusche, Fenster, Klimatisiert
Personenaufzug

Heizung

EtagenheizungGas
Heizwärmebedarf (HWB)
51.9 kWh/(m²a)
C
Gesamtenergieeffizienzfaktor (fGEE)
1.14
C

Beschreibung

"Sehr gut ausgestattete DG-Wohnung, in zentraler Lage des ersten Bezirks - unbefristet!"

Highlights:

• sehr großes, lichtdurchflutetes Wohnzimmer mit Kamin

• Rundumblick-Terrasse

• solide Ausstattung

• Topanbindung ans öffentliche Verkehrsnetz

• sehr gute Adresse

• unbefristet

Eckdaten:

• 174,83 m²

• DG

• zentral begehbar Zimmer

• 3 Zimmer

• attraktive Galerie

• 2 Abstellräume

• Einbau-Küche

• Flur

• 2 x Bad

• 2 x WC

• 360° Terrassenflächen rund 26m² + 8,5m²

Ausstattung:

• Parkettboden

• vollklimatisiert

• Gasetagenheizung

• Klimaanlage

• Küche mit Komplett-Ausstattung

• Lift

HINWEIS: Bei Bedarf ist ein Video -  per Download-Link - verfügbar!

Kosten:

Hauptmiete          € 3.500,00

Betriebskosten    €    300,76

Aufzugskosten    €      65,39

Nettomiete         € 3.866,15

USt. 10 %           €     386,62

Bruttomiete       €  4.252,77

Kaution: € 12.800,00

Haben Sie weitere Fragen oder wünschen eine Besichtigung? - Gleich Kontakt aufnehmen!

In Entsprechung des FAGG (Fern- und Auswärtsgeschäfte-Gesetz) und des VRUG (Verbraucherrechte-Richtlinie-Umsetzungsgesetz) ist es uns leider nur mehr möglich Termine nach Erhalt einer schriftlichen Anfrage mit vollständigen Kontaktangaben (Kontaktformular) zu vereinbaren, dies gilt ebenso für die Herausgabe relevanter Informationen wie z.B. der Lage. Sehr gerne sind wir auf diesem Wege bereit, uns um sämtliche Anliegen rasch und kompetent zu kümmern.

Der Immobilienmakler erklärt, dass er – entgegen dem in der Immobilienwirtschaft üblichen Geschäftsgebrauch des Doppelmaklers – einseitig nur für den Vermieter tätig ist.


Infrastruktur / Entfernungen

Gesundheit
Arzt <500m
Apotheke <500m
Klinik <1.000m
Krankenhaus <1.000m

Kinder & Schulen
Schule <500m
Kindergarten <1.000m
Universität <500m
Höhere Schule <500m

Nahversorgung
Supermarkt <500m
Bäckerei <500m
Einkaufszentrum <1.500m

Sonstige
Geldautomat <500m
Bank <500m
Post <500m
Polizei <500m

Verkehr
Bus <500m
U-Bahn <500m
Straßenbahn <500m
Bahnhof <500m
Autobahnanschluss <3.000m

Angaben Entfernung Luftlinie / Quelle: OpenStreetMap

Kontaktieren

GewerblichYellowbird Immobilienmakler GmbHHerr Karl Urban
Nachricht
Anrede
Vorname
Nachname
E-Mail
Telefon
GewerblichYellowbird Immobilienmakler GmbHHerr Karl Urban
 Verifiziert von ImmoScout24
Bronze Partner