{"obj_regio1":"006","obj_regio2":"006001","obj_regio3":"006001003","obj_ityp":"0","obj_zipCode":"8020","obj_title":"moderne 2-Zimmer Wohnung mit Balkon in den Reininghaus-Gründen ","obj_picture":"https://pictures.immobilienscout24.de/prod.www.immobilienscout24.at/pictureserver/loadPicture?q=70&id=012.0012000001E83jV-1758715675-b7a6ada915f64dd2903c042f33069a5f","obj_exclusiveExpose":"false","obj_cwId":null,"obj_purchasePrice":null,"obj_purchasePriceRange":null,"obj_baseRentRange":"4"}
  • Provisionsfrei
  • Parkplatz
  • Etagenwohnung
  • Balkon
  • Terrasse
  • Teilmöbliert

moderne 2-Zimmer Wohnung mit Balkon in den Reininghaus-Gründen

580
 
42 m²2 ZimmerBalkonTerrasse
Etage-
Befristung-
Kaution1.739,04 €
BE-WO Wohnbau und Grundstücksverwertungsgesellschaft mbHMarkus Lackner
Immobilie hat viele AnfragenMit Plus stichst du positiv hervor!
Unesco Esplanade 4, 8020 Graz

Laufende Kosten

Monatliche Kosten579,68 €
Preis pro m²13,85 €
Kalkuliert von ImmoScout24
Miete526,98 €
Hauptmietzins Netto451,67 €
Betriebskosten Netto75,31 €
Alle Steuern52,7 €

Einmalige Kosten

Kaution1.739,04 €

Hallo neues Zuhause!

Kenne deine Chance mit Plus

Online seit120Gesehen80Kontaktiert40Gemerkt63
Plus locked

Merkmale

Etagenwohnung
Neubau, Erstbezug, Unterkellert, Parkett
Wohnfläche 41,84 m²
Nutzfläche 41,84 m²
1 Balkon
Terrasse
2 Zimmer
Kellerfläche 3,05 m², 1 Badezimmer
Tiefgarage
Fahrradabstellraum

Ausstattung

Teilmöbliert, Dusche
Personenaufzug

Heizung

FußbodenheizungFernwärmeFernwärme
Heizwärmebedarf (HWB)
20 kWh/(m²a)
A
Gesamtenergieeffizienzfaktor (fGEE)
0
A++

Beschreibung

WOHNEN AN DEN ARKADEN: modernes, leistbares Wohnen mitten in den Reininghaus-Gründen!

Das moderne Wohngebäude "An den Arkaden" liegt direkt an der Esplanade, der zentralen Fußgängerzone in den Reininghaus-Gründen. Das 4- bis 9-stöckige Wohngebäude zeichnet sich durch moderne Architektur mit begrünten Dächern und großzügigen allgemeinen Freiflächen aus. Dem Wohngebäude steht eine Tiefgarage zur Verfügung, in der nach Bedarf Stellplätze angemietet werden können.

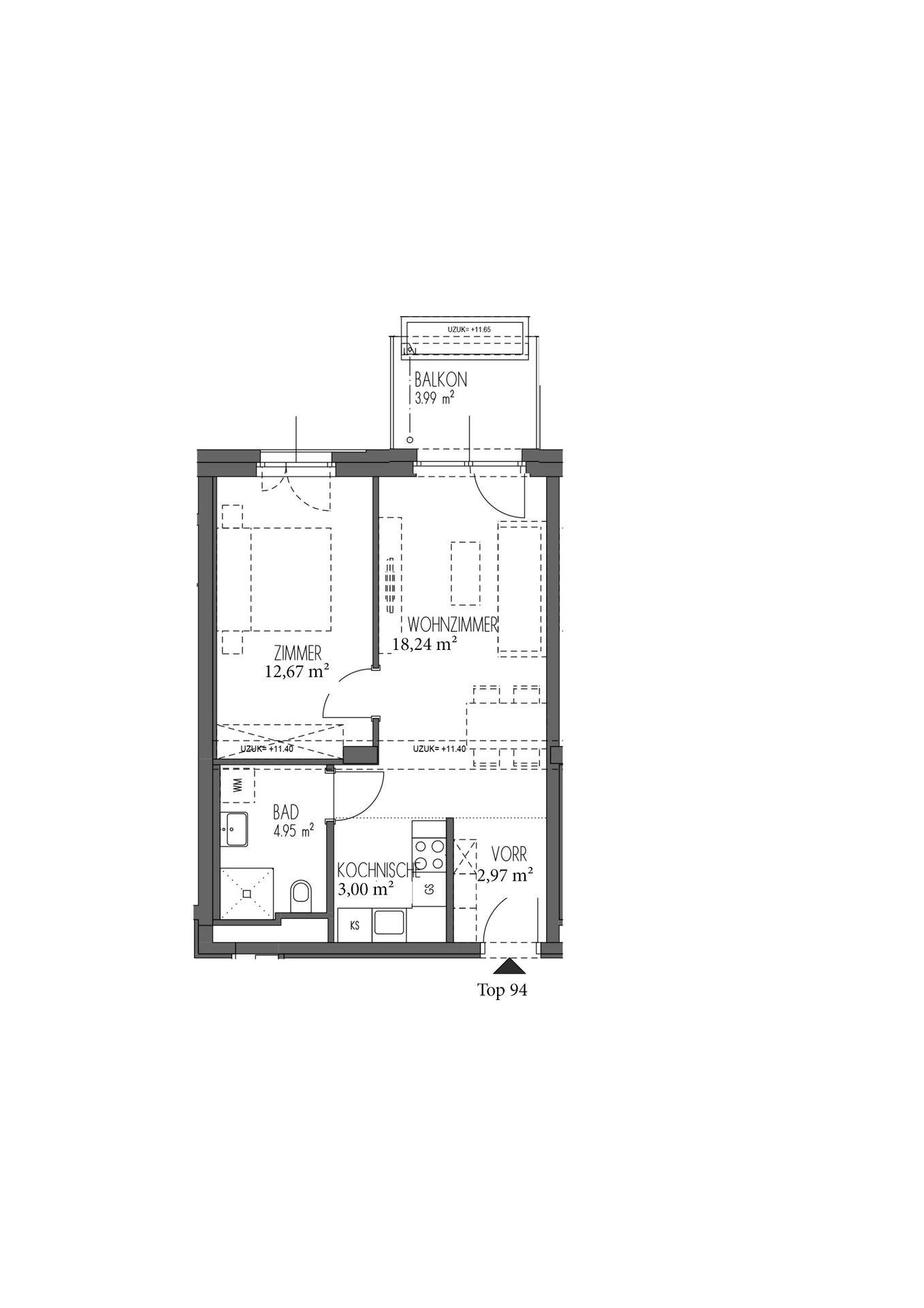
Die Neubau Wohnung Top 94 liegt im 6. Obergeschoss und ist bequem per Lift erreichbar. Sie verfügt über ein ca. 18 m2 großes Wohn-Esszimmer, eine räumlich abgetrennte Kochnische inkl. voll eingerichteter Küchenzeile (mit AEG Küchengeräten), ein Zimmer, ein Bad mit Walk-In Dusche, Sprossenheizkörper, Waschmaschinenanschluss und WC und einen Vorraum. Zur Wohnung gehört ein ca. 4 m2 großer östlicher Balkon der vom Wohn-Esszimmer aus begehbar ist und einen wunderschönen Blick, besonders abends, auf Graz bietet.

Die Wohnung wird mittels Fernwärme über eine Fußbodenheizung beheizt.

Ein Kellerabteil, das für zusätzlichen Stauraum sorgt, ist der Wohnung zugeordnet und im Mietpreis inbegriffen, ein Tiefgaragen-Stellplatz in der hauseigenen Tiefgarage kann optional angemietet werden. Des weiteren stehen den Bewohnern eine Vielzahl an Fahrrad-Abstellplätzen zur Verfügung.

Die Gesamtmiete setzt sich zusammen aus Hauptmietzins, Akontierung für Betriebskosten und Umsatzsteuer.

Die Kaution beträgt 3 Brutto-Monatsmieten.

Bezug ab 01.01.2026

DAS BESONDERE AUF EINEN BLICK:

  • qualitativ hochwertige Neubauwohnung
  • inkl. mit AEG Marken Geräten ausgestattete Küchenzeile
  • hochwertige Sanitärausstattung: Marken Laufen, Geberit, Hans-Grohe
  • Parkettböden
  • 3-fach verglaste Fenster-Elemente
  • Fußbodenheizung (Fernwärme)
  • großzügige allgemeine Freiflächen
  • Balkone und Terrassen mit eigenen Wasseranschlüssen
  • optimale Infrastruktur
  • inkl. Kellerabteilen, Lift, Fahrradabstellplätzen
  • Tiefgarage, in der TG-Plätze optional angemietet werden können
  • Straßenbahnhaltestelle der Linie 4 in unmittelbarer Nähe
  • Bushaltestelle der Linien 65, 66 in unmittelbarer Nähe
  • provisionsfreie Vermietung

BEWO-Verkaufs-Service: Sie wollen eine Wohnung, ein Haus, ein Grundstück verkaufen? Gerne übernimmt unser erfahrenes Vertriebsteam die professionelle Vermarktung Ihrer Immobilie. Profitieren Sie dabei von unserer langjährigen Erfahrung, unseren vielfältigen Verkaufskanälen und Vermarktungsmaßnahmen. Unser Vertriebsteam steht für Ihre Fragen gerne zur Verfügung, kontaktieren Sie uns unter Anbieter kontaktieren oder unter der Tel.Nr. Anbieter kontaktieren.

Kontaktieren

GewerblichBE-WO Wohnbau und Grundstücksverwertungsgesellschaft mbHMarkus Lackner
Nachricht
Anrede
Vorname
Nachname
E-Mail
Telefon
GewerblichBE-WO Wohnbau und Grundstücksverwertungsgesellschaft mbHMarkus Lackner
 Verifiziert von ImmoScout24
Bronze Partner