{"obj_regio1":"001","obj_regio2":"001003","obj_regio3":"001003007","obj_ityp":"3","obj_zipCode":"7072","obj_title":"EINFAMILIENHAUS MIT SEEBLICK IN MÖRBISCH AM SEE – WOHNEN, WO ANDERE URLAUB MACHEN","obj_picture":"https://pictures.immobilienscout24.de/prod.www.immobilienscout24.at/pictureserver/loadPicture?q=70&id=012.0012000001E3qms-180b3b312ce344ab8db9507195391c40","obj_exclusiveExpose":"false","obj_cwId":null,"obj_purchasePrice":275000,"obj_purchasePriceRange":"6","obj_baseRentRange":null}
  • Einfamilienhaus
  • Balkon
  • Terrasse

EINFAMILIENHAUS MIT SEEBLICK IN MÖRBISCH AM SEE – WOHNEN, WO ANDERE URLAUB MACHEN

275.000
 
117 m²BalkonTerrasse
Preis / m²2.350,43 €
Grundstücksfläche836 m²
Baujahr2015
POLKE & PARTNER IMMOBILIENTREUHANDHerr Josef Stefan Polke
7072 Mörbisch am See
See & Yachthafen: in wenigen Minuten mit dem Rad erreichbar; Wassersport, Badeplätze, Promenade
Freizeit: Radwege (Neusiedler See-Radweg), Natur- und Vogelschutzgebiet, Seefestspiele Mörbisch, Heurige und Restaurants im Ort
Nahversorgung & Gastronomie: Geschäfte und Lokale im Ort und in der Umgebung
Bildung: Kindergarten ca. 1,0 km, Volksschule ca. 0,2 km, weiterführende Schulen in den Nachbarorten
Verkehr: Bus ca. 0,7 km, Autobahn ca. 12 km, Fernbahnhof ca. 11 km; gute Anbindung Richtung Eisenstadt/Wien

Einmalige Kosten

Kaufpreis275.000 €
Kaufpreis pro m²2.350,43 €
Kalkuliert von ImmoScout24
Provision inkl. USt.: 3% des Kaufpreises zuzüglich 20% USt.

Hallo neues Zuhause!

Kenne deine Chance mit Plus

Online seit120Gesehen80Kontaktiert40Gemerkt63
Plus locked

Merkmale

Verfügbar ab sofort
Einfamilienhaus
Baujahr 2015, Neuwertig, Unterkellert, Fliesen
Wohnfläche 117 m²
Nutzfläche 180 m², Grundstücksfläche 836 m²
1 Terrasse
1 Balkon, Loggia, Terrasse
Kellerfläche 61,69 m²
2 Badezimmer, 2 Toiletten, Gäste WC

Ausstattung

Einbauküche, Badewanne, Dusche, Fenster, Kamin
Baujahr: 2015 | Zustand: sehr gut/gut | Verfügbar: ab sofort
Heizung: Gasheizung mit Fußbodenheizung
Sanitär: Bad mit Wanne und Dusche, separates Gäste-WC
Böden: Fliesen
Außenflächen: Terrasse und Balkon (gesamt ca. 27,4 m²), großer Garten
Parken: Doppel-Carport (2 Stellplätze) + weitere Abstellmöglichkeiten
Sommerküche: direkt an den Carport anschließend, separater Raum mit vollwertigen Anschlüssen – ideal für Outdoorküche/Grill
Keller: vollunterkellert, ca. 61 m²
TV: Kabel/Sat
Energie: HWB 42,7 kWh/m²a (Klasse B), fGEE 0,72 (Klasse A)

Heizung

Fußbodenheizung
Heizwärmebedarf (HWB)
42.70 kWh/(m²a)
B
Gesamtenergieeffizienzfaktor (fGEE)
0.72
A

Beschreibung

Willkommen in Mörbisch am See

Mörbisch am See – ein malerischer Ort, berühmt für seine kulturellen Veranstaltungen, die Seefestspiele und die Nähe zur historischen Stadt Rust. Hier verbinden sich Natur, Erholung und Lebensqualität auf höchstem Niveau.

Das Einfamilienhaus welches sich in einem ausgezeichneten Zustand befindet, liegt in einer ruhigen Siedlungslage mit sehr wenig Verkehr, ideal für Familien, die Wert auf Sicherheit und ein entspanntes Umfeld legen. Das Grundstück ist als Fahnengrundstück ausgeführt und über einen Zufahrtsweg von der Siedlungsstraße aus erreichbar. Eingebettet in ein gepflegtes Umfeld von Einfamilienhäusern genießen Sie hier Ruhe, Privatsphäre und Wohnkomfort.
In wenigen Minuten erreichen Sie den Yachthafen sowie das Seeufer, das zu Spaziergängen, Radtouren oder entspannten Stunden am Wasser einlädt. Der Doppel-Carport schützt Ihre Fahrzeuge zuverlässig und ergänzt sich harmonisch mit der angrenzenden Gartenküche – ideal für gesellige Stunden mit Familie und Freunden.
Dieses Haus bietet Ihnen zudem die Möglichkeit, Ihr Zuhause ganz nach Ihren individuellen Vorstellungen zu gestalten und gleichzeitig die Ruhe und Schönheit der Umgebung zu genießen. Ein echtes Highlight ist der traumhafte Blick auf den Neusiedlersee, den Sie sowohl vom Erdgeschoss als auch vom Dachgeschoss genießen können.

BESONDERES ANGEBOT:
Dieses Einfamilienhaus kann wahlweise mit der angegebenen Grundstücksgröße oder als großzügiges Gesamtgrundstück mit 1.576 m² um € 425.000,– erworben werden. Bei einem Gesamterwerb besteht zudem die attraktive Möglichkeit, ein weiteres Haus auf dem Grundstück zu errichten.
Ein Teilungsentwurf liegt bereits vor – Sie haben somit die Wahl zwischen einer kompakten, preisgünstigen Variante oder einer großzügigen Gesamtlösung.
Darüber hinaus besteht die Option, ein unbebautes, angrenzendes Grundstück mit einer Fläche von 798 m² (nach Teilung durch den Geometer) zu erwerben

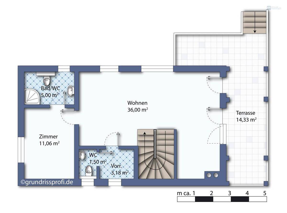
DIE RAUMAUFTEILUNG:

Erdgeschoss
Großzügiger, lichtdurchfluteter Wohnraum mit Gartenterrasse und Seeblick
Möglichkeit zur Integration einer offenen Küche (alle Anschlüsse vorhanden)
Schlafzimmer mit angrenzendem Badezimmer und WC
Zusätzlicher Vorraum
Kleine Teeküche
Weiteres WC

Dachgeschoss
Heller, offener Raum mit Loggia und traumhaftem Seeblick
Leicht teilbar in zwei Schlafzimmer
Großzügiges Badezimmer
Praktischer Schrankraum

Kellergeschoss
Ausgebaut und vielseitig nutzbar
Wohn/Hobbyraum mit Kamin und angrenzendem Duschbad und WC
Weitere Lagerräume und Haustechnik
Dieses Haus bietet weit mehr als nur Wohnraum – es eröffnet Ihnen ein einzigartiges Lebensgefühl direkt am Neusiedlersee. Mit seiner flexiblen Raumaufteilung, dem großen Garten, der Sommerküche am Carport und dem traumhaften Ausblick ist es die perfekte Kombination aus Ruhe, Natur und Gestaltungsfreiheit.

Gerne stehen wir Ihnen jederzeit für nähere Informationen und zur Terminvereinbarung zur Verfügung.
Wir freuen uns, Ihnen diese Liegenschaft persönlich vor Ort präsentieren zu dürfen.
Vereinbaren Sie noch heute einen Besichtigungstermin und lassen Sie sich von diesem besonderen Angebot überzeugen.

Kann ich mir diese Immobilie leisten?

  • % Nebenkosten
    0 €/ Monat
  • % Zinsen
    0 €/ Monat
  • % Kaufpreis
    0 €/ Monat
*
pro Monat
* errechnete monatliche Kreditrate bei einem angenommenen Effektivzins von 1.6% p.a. Die Berechnung stellt einen unverbindlichen Richtwert dar und ist von der Bonität, Kredithöhe, Laufzeit, Verwendungszweck und Besicherung abhängig.

Kontaktieren

GewerblichPOLKE & PARTNER IMMOBILIENTREUHANDHerr Josef Stefan Polke
Nachricht
Anrede
Vorname
Nachname
E-Mail
Telefon
Ich bin Eigentümer:in einer Immobilie
GewerblichPOLKE & PARTNER IMMOBILIENTREUHANDHerr Josef Stefan Polke
 Verifiziert von ImmoScout24
Silber Partner