{"obj_regio1":"004","obj_regio2":"004018","obj_regio3":"004018017","obj_ityp":"16","obj_zipCode":"4642","obj_title":"Sattledt - 2,5ha Betriebsbaugrund direkt an der Autobahn!","obj_picture":"https://pictures.immobilienscout24.de/prod.www.immobilienscout24.at/pictureserver/loadPicture?q=70&id=012.0015I00000lbLu9-1757428444-784c3f6d8ec44978a19dc0296bf8b129","obj_exclusiveExpose":"false","obj_cwId":null,"obj_purchasePrice":null,"obj_purchasePriceRange":null,"obj_baseRentRange":null}

    Sattledt - 2,5ha Betriebsbaugrund direkt an der Autobahn!

    Preis auf Anfrage
     
    24388 m²
    eurea Real Estates GmbHHerr Stefan Schmiedseder
    Voralpenkreuz, 4642 Sattledt
    MAKROLAGE
    • OÖ Zentralraum direkt bei der Autobahnabfahrt Sattledt
    • rd. 30km südlich von Linz
    • rd. 90km nördlich von Salzburg

    MIKROLAGE
    • direkt am Autobahnknoten Sattledt (Kontenpunkt A1, A9)
    • rd. 11km nach Wels
    • rd. 4min zum Bahnhof Sattledt
    - rd. 30 min zum Flughafen Linz

    Hallo neues Zuhause!

    Kenne deine Chance mit Plus

    Online seit120Gesehen80Kontaktiert40Gemerkt63
    Plus locked

    Merkmale

    Grundstück
    Grundstücksfläche 24.388 m²

    Beschreibung

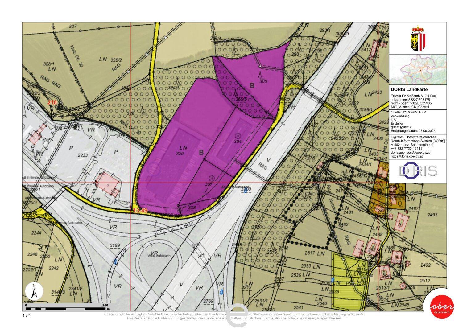
    Die Liegenschaft befindet sich direkt entlang der Autobahn in Sattledt und hat eine Gesamtfläche von 24.388 m²

    Eckdaten:

    • Grundstücksgröße: 24.388m² aufgeteilt auf zwei Grundstück (7.984m² und 16.901m²). Die Grundstücke könnten auch einzeln gekauft werden.
    • Bauvorschriften: lt. OÖ Bauordnung und Gestaltungsrichtlinien der Gemeinde Sattledt
    • Lage: direkt am A1 / A8 Knotenpunkt Sattledt
    • Infrastrukturkosten: Wasser-, Kanalanschlussgebühr, Verkehrsflächenbeitrag 
    • Aufschließung/Zufahrt erfolgt nach Abstimmung mit Gemeinde; es gibt Gespräche über eine eigene Autobahnabfahrt bei der Raststation

    Am Grundstück befindet sich eine Gasleitung der RAG. Die Leitung inkl. beidseitigem Abstand von 2m darf nicht überbaut werden (ausgenommen Verkehrsflächen/Parkplätze).

    Die Liegenschaft befindet sich in einer idealen Lage, umgeben von zahlreichen gewerblichen Objekten. Zögern Sie nicht und sichern Sie sich diesen erstklassigen Betriebsbaugrund in Sattledt. Lassen Sie Ihrer Kreativität freien Lauf und gestalten Sie die Zukunft Ihres Unternehmens an einem Standort, der alles bietet, was Sie brauchen. Sollte Ihr Interesse geweckt sein, so überzeugen Sie sich selbst von dieser Betriebsliegenschaft und vereinbaren Sie einen unverbindlichen Besichtigungstermin mit uns.
    Insgesamt präsentiert sich die Betriebsliegenschaft als eine herausragende Investitionsmöglichkeit in einer gut positionierten Lage, mit vielseitigen Nutzungsoptionen für Unternehmen.

    Besichtigung:
    Sollten wir Ihr Interesse geweckt haben, dann vereinbaren Sie noch heute einen Besichtigungstermin inklusive persönlichem Beratungsgespräch!
    Bitte beachten Sie, dass wir aufgrund der Nachweispflicht gegenüber dem Eigentümer nur Anfragen mit vollständiger Angabe ihrer Kontaktdaten (Anschrift, Telefonnummer, E-Mailadresse) bearbeiten können.

    Mag. Irina Scharinger: Anbieter kontaktieren

    Haftungserklärung zum Inserat:
    Wir weisen darauf hin, dass alle Angaben nach bestem Wissen und Gewissen erstellt wurden. Für Auskünfte und Angaben, die uns von Seiten der Eigentümer und Dritten zur Verfügung gestellt wurden, übernehmen wir keine Haftung. Dieses Angebot ist unverbindlich und freibleibend. Zwischenverwertung, Irrtum, Druckfehler und Änderungen vorbehalten. Sofern es sich bei Bildern um Visualisierungen handelt, können Abänderungen zur tatsächlichen Ausführung resultieren.

    Noch nichts gefunden? Wir informieren Sie über geeignete Immobilienangebote noch vor allen anderen.
    Legen Sie jetzt Ihren individuellen Suchagenten unter folgendem Link an. Wir schicken Ihnen passende Immobilien exklusiv vorab zu.
    Suchagent anlegen - https://eurea-real-estates.service.immo/registrieren/de

    Der Vermittler ist als Doppelmakler tätig.


    Infrastruktur / Entfernungen

    Gesundheit
    Arzt <1.250m
    Apotheke <6.750m

    Kinder & Schulen
    Schule <1.250m
    Kindergarten <1.250m

    Nahversorgung
    Supermarkt <1.000m
    Bäckerei <5.250m
    Einkaufszentrum <10.000m

    Sonstige
    Bank <1.000m
    Geldautomat <1.000m
    Post <1.000m
    Polizei <1.750m

    Verkehr
    Bus <1.000m
    Autobahnanschluss <250m
    Bahnhof <1.500m

    Angaben Entfernung Luftlinie / Quelle: OpenStreetMap

    Kann ich mir diese Immobilie leisten?

    Deine Eigenmittel sind höher als der Kaufpreis.
    • % Nebenkosten
      0 €/ Monat
    • % Zinsen
      0 €/ Monat
    • % Kaufpreis
      0 €/ Monat
    *
    pro Monat
    * errechnete monatliche Kreditrate bei einem angenommenen Effektivzins von 1.6% p.a. Die Berechnung stellt einen unverbindlichen Richtwert dar und ist von der Bonität, Kredithöhe, Laufzeit, Verwendungszweck und Besicherung abhängig.

    Kontaktieren

    Gewerblicheurea Real Estates GmbHHerr Stefan Schmiedseder
    Nachricht
    Anrede
    Vorname
    Nachname
    E-Mail
    Telefon
    Ich bin Eigentümer:in einer Immobilie
    Gewerblicheurea Real Estates GmbHHerr Stefan Schmiedseder
     Verifiziert von ImmoScout24
    Silber Partner