{"obj_regio1":"003","obj_regio2":"003006","obj_regio3":"003006004","obj_ityp":"3","obj_zipCode":"2500","obj_title":"2500 Baden bei Wien Ruhiges Einfamilienhaus in Siedlungslage mit perfekter Verkehrsanbindung in Bahnhofsnähe","obj_picture":"https://pictures.immobilienscout24.de/prod.www.immobilienscout24.at/pictureserver/loadPicture?q=70&id=012.0015I000002KyLh-1757173114-383ffff3227c463bb4bfd2391c661002","obj_exclusiveExpose":"true","obj_cwId":"ADS0018126545","obj_purchasePrice":465000,"obj_purchasePriceRange":"8","obj_baseRentRange":null}
  • Einfamilienhaus
  • Balkon
  • Terrasse

2500 Baden bei Wien Ruhiges Einfamilienhaus in Siedlungslage mit perfekter Verkehrsanbindung in Bahnhofsnähe

465.000
 
130 m²5,5 ZimmerBalkonTerrasse 10 m²
Preis / m²3.576,92 €
Grundstücksfläche314 m²
Baujahr-
HGH Real GmbHHerr Hans Georg Homolatsch
Immobilie hat viele AnfragenMit Plus stichst du positiv hervor!
2500 Baden
Nähe Hauptbahnhof Baden / Nähe A2 Südautobahn (E59) Ausfahrt Baden

Einmalige Kosten

Kaufpreis465.000 €
Kaufpreis pro m²3.576,92 €
Kalkuliert von ImmoScout24
Provision: 3% des Kaufpreises zzgl. 20% USt.

Hallo neues Zuhause!

Kenne deine Chance mit Plus

Online seit120Gesehen80Kontaktiert40Gemerkt63
Plus locked

Merkmale

Einfamilienhaus
Unterkellert
Wohnfläche 130 m²
Nutzfläche 185 m², Grundstücksfläche 314 m²
1 Terrasse 10,47 m² ostseitig
1 Balkon 7,11 m² ostseitig
5,5 Zimmer
2 Badezimmer

Heizung

OfenheizungZentralheizungÖl
Heizwärmebedarf (HWB)
347.1 kWh/(m²a)
G
Gesamtenergieeffizienzfaktor (fGEE)
4.7
G

Beschreibung

Inmitten einer gepflegten und ruhigen Wohnsiedlung von Baden befindet sich dieses unterkellerte Einfamilienhaus mit zwei Wohnebenen. Die Lage überzeugt durch ihre Nähe zum Badener Hauptbahnhof sowie zur A2 Südautobahn – ideal für Pendler und Familien, die Ruhe und gute Anbindung gleichermaßen schätzen.

Das Haus wurde 1953 errichtet und 1971 aufgestockt. Das Haus ist in die Jahre gekommen und bedarf daher einiger Sanierungen.

Raumaufteilung im Überblick

Erdgeschoß

  • Sonnige Ost-Terrasse, ca. 10 m², mit Zugang zu Garten und Haus
  • Vorraum/Gang
  • Esszimmer
  • Küche (ohne Elektrogeräte)
  • Bad/WC
  • 3 Zimmer

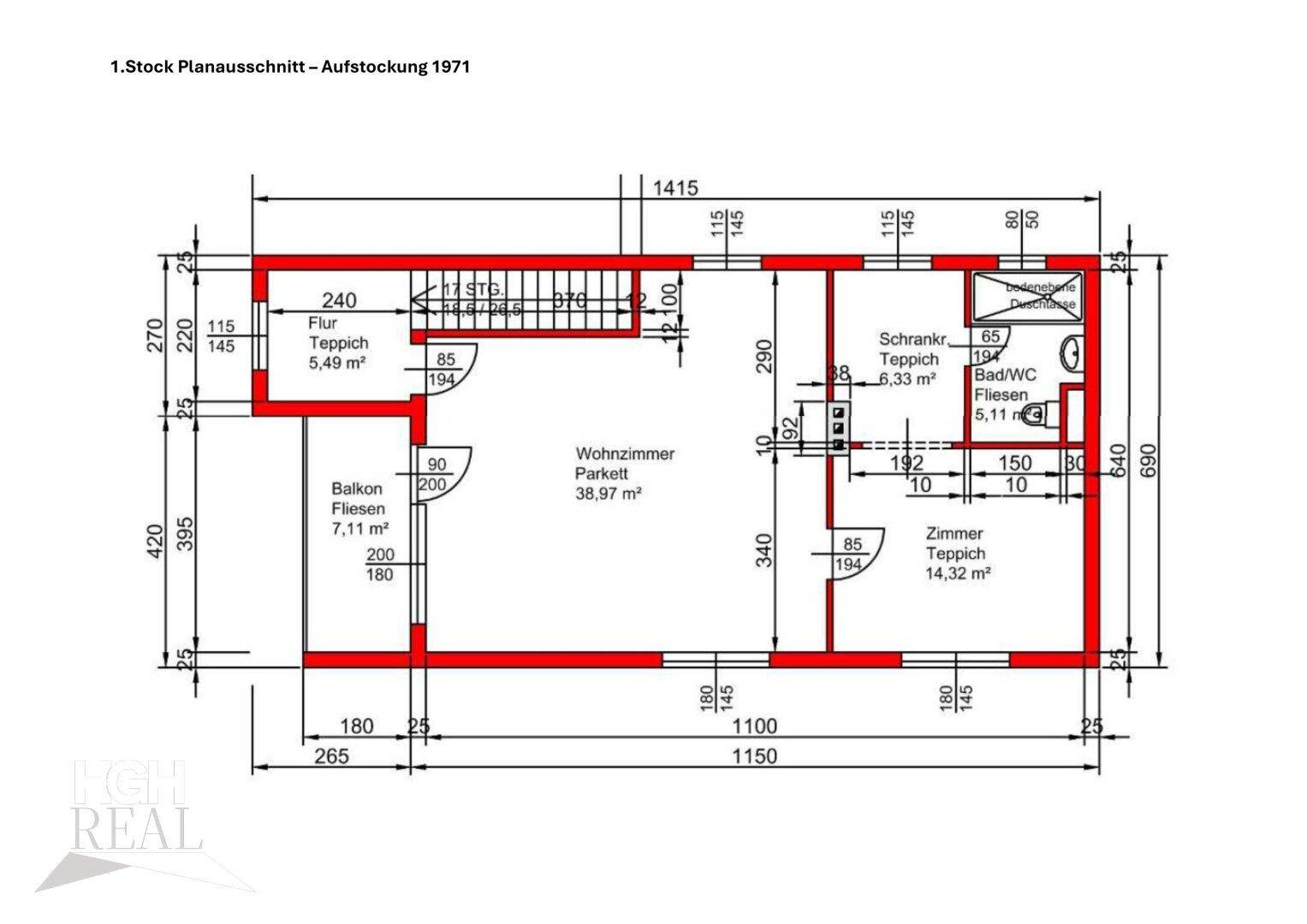
1. Stock

  • Flur
  • Großzügiges Wohnzimmer mit Ausgang auf den Balkon
  • Balkon, ca. 7 m²
  • Schlafzimmer
  • Schrankraum
  • Bad
  • WC

Keller

  • Vorraum
  • Waschküche
  • Sauna mit Dusche
  • Werkstattraum
  • Heizraum
  • Tankraum

Abstellräume, ca. 19 m² (ehemalige Garage)

Infrastruktur

Die ruhige Wohnlage bietet eine sehr gute Versorgung:

  • Supermarkt und Apotheke sind ca. 3 Autominuten entfernt, das Landesklinikum Baden ca. 4 Autominuten.
  • Kindergarten und Volksschule sind in ca. 8–10 Gehminuten erreichbar, der AHS Campus Baden mit Fokus auf Digitalisierung und Ökologie & Nachhaltigkeit in ca. 5 Gehminuten.
  • Ins Stadtzentrum von Baden mit seiner top Infrastruktur gelangen Sie bequem mit Citybussen, Stationen befinden sich in unmittelbarer Nähe des Hauses.
Verkehrsanbindungen
  • Der Hauptbahnhof Baden ist in ca. 10 Minuten zu Fuß erreichbar. Von dort gelangen Sie mit dem Cityjet Express bzw. Regionalexpress in 23-27 Min. zum Hauptbahnhof Wien bzw. in 13-24 Min. zum Hauptbahnhof Wiener Neustadt.
  • Per Auto gelangen Sie in nur ca. 5 Minuten über die Badener Straße 210 zur A2 Südautobahn (E59) und sind somit von zu Hause in ca. 20 Autominuten an der Stadtgrenze Wiens!
Kontakt

Bei Interesse senden Sie uns bitte eine Anfrage über die Plattform oder rufen Sie uns an. Wir freuen uns auf Ihre Anfrage!

Hans Georg Homolatsch, Immobilienfachberater, tel: Anbieter kontaktieren

Der Vermittler ist als Doppelmakler tätig.


Alle Angaben sind ohne Gewähr und basieren ausschließlich auf Informationen, die uns von unserem Auftraggeber übermittelt wurden. Eine Weitergabe der übermittelten Daten an Dritte ist nicht gestattet. Wir übernehmen keine Gewähr für die Vollständigkeit, Richtigkeit und Aktualität dieser Angaben. Bei den Plänen handelt es sich um unverbindliche Skizzen, Originalpläne werden bei Interesse gerne übermittelt. Irrtum und Zwischenverkauf vorbehalten. Die Nebenkosten, wie Grunderwerbsteuer, Vertragserrichtungskosten, Notar- und Grundbuchkosten, sind vom Käufer zu tragen, es wird auch ausdrücklich auf die Nebenkostenübersicht hingewiesen. Der Maklervertrag kommt durch schriftliche Vereinbarung oder Inanspruchnahme unserer Maklertätigkeit zustande. Der Makler kann als Doppelmakler tätig werden. Sollte das von uns nachgewiesene Objekt bereits bekannt sein, teilen Sie uns dies bitte unverzüglich mit. Die Provision in Höhe von 3 % des Gesamtkaufpreises zzgl. gesetzl. USt. ist ausschließlich bei Zustandekommen eines gültigen Rechtsgeschäfts fällig und ist vom Käufer an HGH Real GmbH zu zahlen.

Kann ich mir diese Immobilie leisten?

  • % Nebenkosten
    0 €/ Monat
  • % Zinsen
    0 €/ Monat
  • % Kaufpreis
    0 €/ Monat
*
pro Monat
* errechnete monatliche Kreditrate bei einem angenommenen Effektivzins von 1.6% p.a. Die Berechnung stellt einen unverbindlichen Richtwert dar und ist von der Bonität, Kredithöhe, Laufzeit, Verwendungszweck und Besicherung abhängig.

Kontaktieren

GewerblichHGH Real GmbHHerr Hans Georg Homolatsch
Nachricht
Anrede
Vorname
Nachname
E-Mail
Telefon
Ich bin Eigentümer:in einer Immobilie
GewerblichHGH Real GmbHHerr Hans Georg Homolatsch
 Verifiziert von ImmoScout24
Gold Partner