{"obj_regio1":"005","obj_regio2":"005003","obj_regio3":"005003037","obj_ityp":"2","obj_zipCode":"5303","obj_title":"Gemütliche 2 Zimmer Dachgeschoßwohnung mit Balkon und Carport in Thalgau - mtl. Rückzahlung ab EUR 673,-","obj_picture":"https://pictures.immobilienscout24.de/prod.www.immobilienscout24.at/pictureserver/loadPicture?q=70&id=012.0012000001E3qoQ-1760091262-bc5b273e8d09403bae589809ed1b345c","obj_exclusiveExpose":"false","obj_cwId":null,"obj_purchasePrice":190000,"obj_purchasePriceRange":"4","obj_baseRentRange":null}
  • Provisionsfrei
  • Parkplatz
  • Etagenwohnung
  • Balkon

Gemütliche 2 Zimmer Dachgeschoßwohnung mit Balkon und Carport in Thalgau - mtl. Rückzahlung ab EUR 673,-

190.000
 
62 m²2 ZimmerBalkon
Preis / m²3.059,09 €
Etage-
Baujahr1.4.1991
Salzburg Wohnbau GmbHHerr Wolfgang Strasser
Zehenthofweg 1, 5303 Thalgau
Das Wohnen in der Gemeinde Thalgau bedeutet, das Beste aus einem idyllischen Dorfleben mit modernem Ambiente zu verbinden. Thalgau zählt zu den aufstrebenden Orten im Bundesland und bietet zahlreiche Möglichkeiten, sich sportlich zu betätigen. Gleichzeitig bleibt genügend Raum, um das lebendige Dorfleben zu genießen.

Alle wichtigen infrastrukturellen Einrichtungen wie Nahversorger, Kindergarten, Volksschule, Apotheke, Bank, Post, Kirche, Freibad, Sportplatz und Restaurants sind bequem zu Fuß erreichbar.

Einmalige Kosten

Kaufpreis190.000 €
Kaufpreis pro m²3.059,09 €
Kalkuliert von ImmoScout24
Provision zzgl. 20% USt.: nein

Laufende Kosten

Steuersatz20 %
Hausgeld219,22 €
USt. enthalten

Hallo neues Zuhause!

Kenne deine Chance mit Plus

Online seit120Gesehen80Kontaktiert40Gemerkt63
Plus locked

Merkmale

Verfügbar ab ab sofort
Etagenwohnung
Baujahr 1.4.1991, Gepflegt, Unterkellert, Insgesamt 3 Etagen
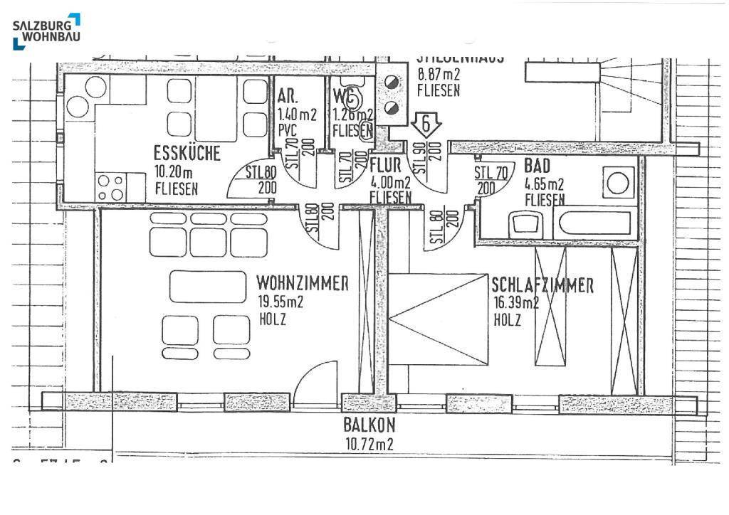
Wohnfläche 62,11 m²
Nutzfläche 62,11 m², beheizbare Fläche 1 m², Fassadenlänge 1 m, 1 Wohneinheit
1 Balkon
2 Zimmer
1 Schlafzimmer, 1 Badezimmer, 1 Toilette, 1 Gewerbeeinheit
Carport
1 Parkmöglichkeit

Ausstattung

Badewanne, Wäschetrockenraum

Heizung

Heizwärmebedarf (HWB)
176,00 kWh/(m²a)
E
Gesamtenergieeffizienzfaktor (fGEE)
2,31
D

Beschreibung

Willkommen in Ihrem neuen Zuhause! Dieses gemütliche Wohnzimmer lädt zum Entspannen ein und bietet einen herrlichen Blick ins Grüne – perfekt, um die Seele baumeln zu lassen. Das große Schlafzimmer sorgt für ausreichend Platz und Komfort, während die großzügige Küche mit Essbereich zum gemeinsamen Kochen und Verweilen einlädt.

Das Badezimmer ist mit einem Fenster, einer Wanne und einem Waschmaschinenanschluss ausgestattet, was den Alltag angenehm gestaltet. Der Flur mit Garderobenbereich bietet ausreichend Stauraum für Jacken und Schuhe. Ein separates WC sorgt für zusätzlichen Komfort.

Praktische Extras wie ein Abstellraum und ein Kellerabteil bieten viel Stauraum für Ihre Utensilien. Für Ihren PKW steht ein fixer Carportplatz bereit, der Ihr Fahrzeug sicher und geschützt unterstellt.

Dieses Zuhause verbindet Komfort, Funktionalität und eine schöne Lage – perfekt für ein angenehmes Wohnen!
Es handelt sich hier um keinen Zweitwohnsitz! Die Wohnung muss als Hauptwohnsitz benutzt werden und unterliegt dem WGG und ist daher nur eine Eigennutzung möglich.

Kaufpreis Wohnung: EUR 190.000,-

Finanzierungsbeispiel:
KP Whg. EUR 190.000,-
Eigenmittel EUR 38.000,-

Finanzierungsbetrag: EUR 152.000,-

Monatliche Rate: EUR 673,- (Laufzeit 35 Jahre) - wir beraten Sie gerne!

Alle Angaben ohne Gewähr!

Gerne helfen wir Ihnen bei der Finanzierung der gegenständlichen Wohnung.

Kann ich mir diese Immobilie leisten?

  • % Nebenkosten
    0 €/ Monat
  • % Zinsen
    0 €/ Monat
  • % Kaufpreis
    0 €/ Monat
*
pro Monat
* errechnete monatliche Kreditrate bei einem angenommenen Effektivzins von 1.6% p.a. Die Berechnung stellt einen unverbindlichen Richtwert dar und ist von der Bonität, Kredithöhe, Laufzeit, Verwendungszweck und Besicherung abhängig.

Kontaktieren

GewerblichSalzburg Wohnbau GmbHHerr Wolfgang Strasser
Nachricht
Anrede
Vorname
Nachname
E-Mail
Telefon
Ich bin Eigentümer:in einer Immobilie
GewerblichSalzburg Wohnbau GmbHHerr Wolfgang Strasser
 Verifiziert von ImmoScout24
Silber Partner