{"obj_regio1":"006","obj_regio2":"006001","obj_regio3":"006001004","obj_ityp":"0","obj_zipCode":"8010","obj_title":"Terrassen-WG **4 getrennt begehbare Zimmer im Herzen von Graz - Provisionsfrei**","obj_picture":"https://pictures.immobilienscout24.de/prod.www.immobilienscout24.at/pictureserver/loadPicture?q=70&id=012.001P900000DZOPt-64f820fa29084df4ab1237980b50f28b","obj_exclusiveExpose":"false","obj_cwId":null,"obj_purchasePrice":null,"obj_purchasePriceRange":null,"obj_baseRentRange":"7"}
  • Provisionsfrei
  • Erdgeschosswohnung
  • Altbau
  • Terrasse

Terrassen-WG **4 getrennt begehbare Zimmer im Herzen von Graz - Provisionsfrei**

1.249
 
100 m²5 ZimmerTerrasse
Etage-
Befristung-
Kaution-
PrivatDr. Gerda Breitsching
Glacisstraße 37, 8010 Graz

Laufende Kosten

Monatliche Kosten1.249 €
Preis pro m²12,49 €
Kalkuliert von ImmoScout24

Hallo neues Zuhause!

Kenne deine Chance mit Plus

Online seit120Gesehen80Kontaktiert40Gemerkt63
Plus locked

Merkmale

Verfügbar ab sofort, verhandelbar
Erdgeschosswohnung
Altbau, Parkett
Gesamtfläche 100 m²
1 Terrasse
Terrasse
5 Zimmer
1 Badezimmer, 2 Toiletten

Ausstattung

Einbauküche, Dusche

Heizung

FernwärmeFernwärme

Beschreibung

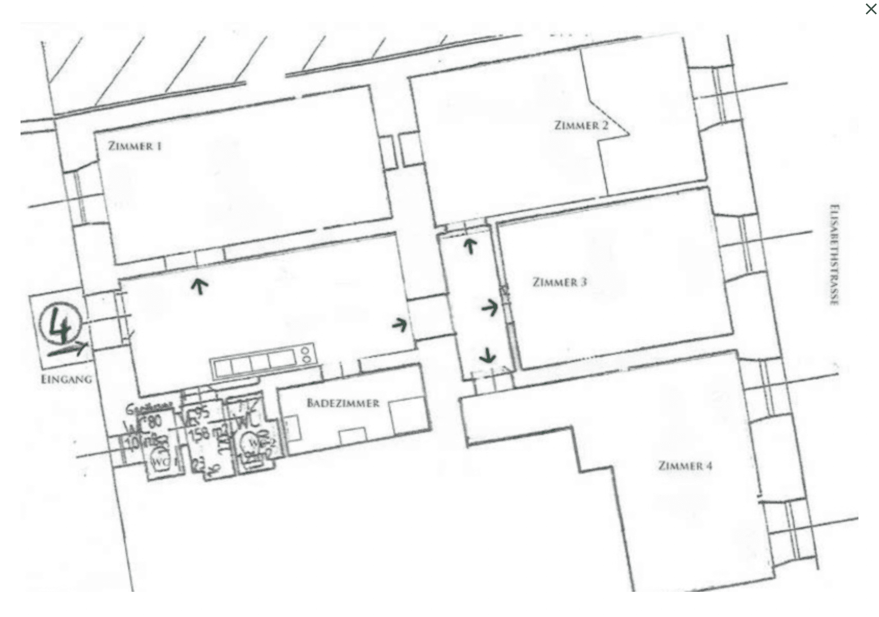
**Ruhige und Helle im Innenhof gelegene Erdgeschoss Wohnung im Herzen von Graz mit Terrasse**

4 getrennt begehbare Zimmer und Küche/Wohnzimmer plus 2 WCs.

Große Terrasse im Grünen und absolut ruhigen Innenhof.

Unverbindliche Besichtigung
• einfach Termin vereinbaren: Via E-Mail oder via Tel. Nr.: (siehe Kontaktinformationen, Anbieter kontaktieren)

Die Wohnung ist unmöbliert und bietet:

• 1 großen Vorraum mit Wohnküche (inkl. allen E-Geräten)
• 1 kleiner Vorraum
• 4 getrennt begehbare Zimmer
• 1 Bad mit Dusche (90 x 90 cm) und Waschmaschinenanschluss
• 2 getrennt begehbare WC

Der Bereich vor der Wohnung lädt zum Sitzen und Genießen im ruhigen Innenhof ein.
Haustiere sind nicht möglich, Wohnung und Haus sind Allergiker geeignet.

Weitere Informationen:

• In der Gesamtmiete sind die Betriebskosten und 10 % UST bereits enthalten
• Keine Maklerprovision
• Keine Vertragserrichtungskosten
• Zentral und unmittelbar in der Nähe der Universitäten bzw. der Grazer Innenstadt
• Nutzungsmöglichkeiten: Wohnung - Atelier - Büro
• Aufgrund der zentralen Lage und Aufteilung eignet sich die Wohnung besonders gut für Paare, Studenten, Selbstständige

Vertrag wird je nach Wunsch auf 3 bis 5 Jahre befristet mit Option auf Verlängerung.

Achtung vor Betrug!

  • Überweise kein Geld ins Ausland oder über einen Treuhandservice!
  • Übermittle niemals deinen Ausweis vor einer Besichtigung!
  • Bezahle nie vor einer Besichtigung, auch keine Provision!

Du wirst dennoch aufgefordert eines dieser Dinge zu tun oder hast Zweifel?

Kontaktieren

PrivatDr. Gerda Breitsching
Nachricht
PrivatDr. Gerda Breitsching