{"obj_regio1":"001","obj_regio2":"001006","obj_regio3":"001006006","obj_ityp":"0","obj_zipCode":"7210","obj_title":"3-Zimmerwohnung mit Garten und Terrasse ","obj_picture":"https://pictures.immobilienscout24.de/prod.www.immobilienscout24.at/pictureserver/loadPicture?q=70&id=012.0012000001gOxpJ-1760370072-b4a40010cc0041c797769981657e597c","obj_exclusiveExpose":"false","obj_cwId":null,"obj_purchasePrice":null,"obj_purchasePriceRange":null,"obj_baseRentRange":"5"}
  • Genossenschaft
  • Provisionsfrei
  • Terrasse
  • Garten

3-Zimmerwohnung mit Garten und Terrasse

782
 
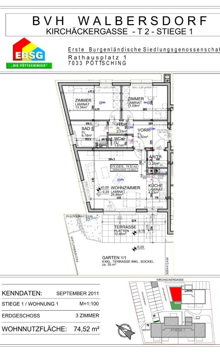
75 m²3 ZimmerGartenTerrasse
Finanzierungsbeitrag23.455 €
Ablöse-
Befristung-
EBSGMercedes Hawle
Kirchäckergasse 4 WE 1/1, 7210 Walbersdorf

Laufende Kosten

Miete782 €
Preis pro m²10,43 €
Kalkuliert von ImmoScout24

Einmalige Kosten

Finanzierungsbeitrag23.455 €

Hallo neues Zuhause!

Kenne deine Chance mit Plus

Online seit120Gesehen80Kontaktiert40Gemerkt63
Plus locked

Merkmale

Verfügbar ab 2025-10-01
Wohnung
Wohnfläche 75 m²
Gartenfläche 35 m²
1 Terrasse
Garten, Terrasse
3 Zimmer

Beschreibung

Verfügbar ab 01.10.2025
Besichtigung nach telefonischer Vereinbarung!

Finanzierungsbeitrag: € 23455.37

Kontaktieren

GewerblichEBSGMercedes Hawle
Nachricht
Anrede
Vorname
Nachname
E-Mail
Telefon
GewerblichEBSGMercedes Hawle
 Verifiziert von ImmoScout24
Silber Partner