{"obj_regio1":"009","obj_regio2":"009001","obj_regio3":"009001001","obj_ityp":"8","obj_zipCode":"1010","obj_title":"Einzigartige Geschäftsfläche im Herzen von Wien – Palais Esterházy zu mieten","obj_picture":"https://pictures.immobilienscout24.de/prod.www.immobilienscout24.at/pictureserver/loadPicture?q=70&id=012.0012000001E83Vc-232e6a93fe3140b09e839ffebb130d33","obj_exclusiveExpose":"true","obj_cwId":"ADS0017893138","obj_purchasePrice":null,"obj_purchasePriceRange":null,"obj_baseRentRange":"9"}
  • Altbau
  • Video Live-Besichtigung

Einzigartige Geschäftsfläche im Herzen von Wien – Palais Esterházy zu mieten

4.046
 
22 m²
JP ImmobilienFrau Kathrin Fercher
Wallnerstrasse 4/Naglergasse 9, 1010 Wien

Laufende Kosten

Monatliche Kosten4.045,96 €
Preis pro m²150 €
Gesamtbelastung Netto3.371,63 €
USt. Gesamtbelastung674,33 €
Miete3.310,5 €
USt. Hauptmietzins662,1 €
Betriebskosten61,13 €
USt. Betriebskosten12,23 €

Einmalige Kosten

Provision: 3 BMM
Provision12.137,87 €
Provision Netto10.114,89 €
USt. Provision2.022,98 €
Kaution: 6 MM
Kaution24.275,76 €

Hallo neues Zuhause!

Kenne deine Chance mit Plus

Online seit120Gesehen80Kontaktiert40Gemerkt63
Plus locked

Merkmale

Verfügbar ab sofort
befristet auf 10 Jahre
Einzelhandel
Altbau
Nutzfläche 22,07 m²

Heizung

Heizwärmebedarf (HWB)
210.50 kWh/(m²a)
F
Gesamtenergieeffizienzfaktor (fGEE)
1.43
C

Beschreibung

Flächen- und Kostenübersicht
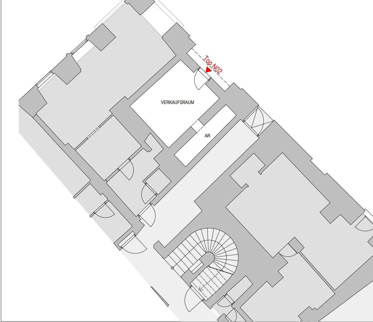
Geschoss/Top: EG/Top 2
Nutzfläche: 22,07 m²
Nettomiete/m²: € 150
Betriebskosten/m²/netto: € 2,77

Allgemeine Objektübersicht
Im geschichtsträchtigen Palais Esterházy, einem Ort von unvergleichlicher Eleganz und Tradition, wartet ein erstklassiges, repräsentatives Geschäftslokal darauf, Ihr Unternehmen zu beherbergen. Mitten im Herzen der Wiener Innenstadt, in der prestigeträchtigen Naglergasse 9, bietet dieses Juwel eine exklusive Bühne für Ihren Erfolg.

Die Einheit im Erdgeschoss (Top 2) umfasst eine Nutzfläche von 22,07 m², die sich intelligent in einen Hauptverkaufsraum und einen praktischen Abstellraum gliedert. Die Fläche wird durch ein leistungsstarkes Split-Klimagerät gekühlt. Diese kompakte und effiziente Raumaufteilung ist ideal für eine kleine, feine Boutique, oder ein Atelier, das von der hochfrequentierten Lage profitiert.

Verfügbarkeit: ab sofort
Kaution: 6 BMM
Provision:3 BMM
Kündigungsverzicht: 3 Jahre
Befristung: 10 Jahre

Energieausweis
HWB: 210,5 kWh/m².a

Lage
Die Lage ist einfach unschlagbar: Sie sind umgeben von Luxusgeschäften, kulturellen Sehenswürdigkeiten und der pulsierenden Energie der Wiener Innenstadt. Die Erreichbarkeit ist dank der hervorragenden Anbindung an den öffentlichen Nahverkehr makellos. Die U-Bahn-Stationen Herrengasse (U3) und Stephansplatz (U3, U4) sowie die Buslinien 1A, 2A und 3A befinden sich in unmittelbarer Nähe und garantieren eine stetige Kundenfrequenz. Für Autofahrer besteht die Möglichkeit, Stellplätze in den nahegelegenen Garagen, wie etwa der Freyung, anzumieten.

Nutzen Sie diese seltene Gelegenheit, Ihr Geschäft an einer der begehrtesten Adressen Wiens zu etablieren.

Öffentliche Verkehrsanbindung
U-Bahn:U3 (Station Herrengasse)
U3,U4 (Station Stephansplatz)
Bus: 1A, 2A, 3A

Ansprechpartner:
Frau Kathrin Fercher
Tel.: Anbieter kontaktieren

Mehr Objekte finden Sie unter:
www.jpi.at

Wir haben was für Sie

Wir weisen darauf hin, dass wir mit dem Abgeber in ständiger Geschäftsbeziehung stehen und schon aus diesem Grund ein wirtschaftliches Naheverhältnis vorliegt.

Kontaktieren

GewerblichJP ImmobilienFrau Kathrin Fercher
Nachricht
Anrede
Vorname
Nachname
E-Mail
Telefon
GewerblichJP ImmobilienFrau Kathrin Fercher
Video Live-Besichtigung
 Verifiziert von ImmoScout24
Gold PartnerSales Professional AwardImmo Expert ***** Award