{"obj_regio1":"009","obj_regio2":"009001","obj_regio3":"009001003","obj_ityp":"7","obj_zipCode":"1030","obj_title":"DPC | Moderne Office Lofts Nähe Rennweg","obj_picture":"https://pictures.immobilienscout24.de/prod.www.immobilienscout24.at/pictureserver/loadPicture?q=70&id=012.0012000001E84eG-00249071bdbc4aa990cb611dfa0e3517","obj_exclusiveExpose":"false","obj_cwId":null,"obj_purchasePrice":null,"obj_purchasePriceRange":null,"obj_baseRentRange":"9"}

    DPC | Moderne Office Lofts Nähe Rennweg

    3.632
     
    163 m²
    Danube Property Consulting Immobilien GmbHFirma
    1030 Wien
    Öffentliche Verkehrsanbindung:
    Bus 4A, 77A
    Schnellbahn: Rennweg (S1, S2, S3, S7, S15, CAT)
    Straßenbahn Linie O, 71

    Laufende Kosten

    Monatliche Kosten3.631,97 €
    Preis pro m²22,28 €
    Kalkuliert von ImmoScout24
    Gesamtbelastung Netto3.026,64 €
    USt. Gesamtbelastung605,33 €
    Miete2.608 €
    USt. Miete521,6 €
    Miete3.129,6 €
    Betriebskosten418,64 €
    USt. Betriebskosten83,73 €

    Hallo neues Zuhause!

    Kenne deine Chance mit Plus

    Online seit120Gesehen80Kontaktiert40Gemerkt63
    Plus locked

    Merkmale

    befristet auf 10 Jahre
    Büro
    Baujahr 1900, 3. Etage
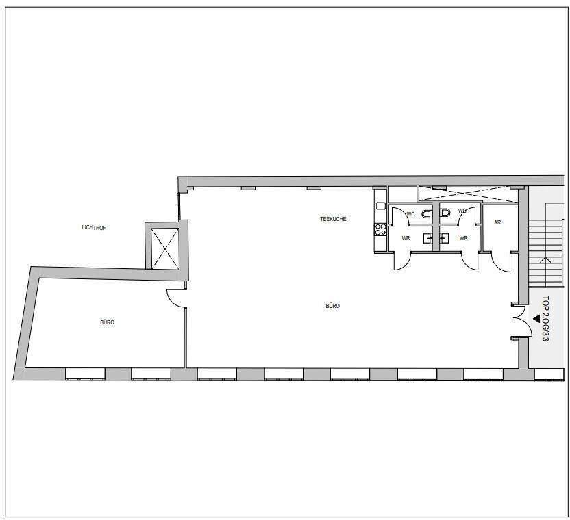
    Nutzfläche 163 m²

    Ausstattung

    Klimatisiert

    Heizung

    Fernwärme
    Heizwärmebedarf (HWB)
    61.00 kWh/(m²a)
    C
    Gesamtenergieeffizienzfaktor (fGEE)
    1.11
    C

    Beschreibung

    Büroflächen nähe Schnellbahn Rennweg

    Zur Vermietung gelangt eine moderne Bürofläche in der Fabricatur im 2. Stock.

    Der Standort verfügt über eine gute Infrastruktur und eine sehr gute Erreichbarkeit sowohl im öffentlichen Verkehrsnetz als auch im Individualverkehr.

    Der Gebäudekomplex verfügt über einen Haupteingang in der Ungargasse und einem weiteren in der Barichgasse. Im Innenhof stehen ausreichend Stellplätze zur Verfügung.

    Ausstattung:
    • Teeküche
    • CAT 7 Verkabelung
    • Bürobeleuchtung
    • Heizung: Fernwärme
    • Klima
    - Lift
    Heiz- und Kühlkosten: EUR 186,23 netto/Monat

    Kaution 6 BMM
    Provision 3 BMM

    Kontaktieren

    GewerblichDanube Property Consulting Immobilien GmbHFirma
    Nachricht
    Anrede
    Vorname
    Nachname
    E-Mail
    Telefon
    GewerblichDanube Property Consulting Immobilien GmbHFirma
     Verifiziert von ImmoScout24
    Silber Partner