{"obj_regio1":"009","obj_regio2":"009001","obj_regio3":"009001009","obj_ityp":"8","obj_zipCode":"1090","obj_title":"Charmantes Geschäftslokal auf der Porzellangasse verfügbar","obj_picture":"https://pictures.immobilienscout24.de/prod.www.immobilienscout24.at/pictureserver/loadPicture?q=70&id=012.0015I00000KlFio-943d670c054f44238e6c1d294c17152c","obj_exclusiveExpose":"true","obj_cwId":"ADS0017893840","obj_purchasePrice":null,"obj_purchasePriceRange":null,"obj_baseRentRange":"9"}
  • Video Live-Besichtigung

Charmantes Geschäftslokal auf der Porzellangasse verfügbar

2.988
 
68 m²
EHL Gewerbeimmobilien GmbHFrau Franziska Patay, MSc
Porzellangasse 9, 1090 Wien
Dank der hervorragenden Anbindung an den öffentlichen Verkehr ist das Geschäftslokal mühelos erreichbar.
Mehrere Straßenbahn- (1,D, 37, 38, 40, 41, 42), Buslinien (N38, N41, 40A) und U-Bahn (U2, U4) verbinden den Stadtteil mit dem Rest der Stadt und machen es für Kunden einfach, das Geschäft zu besuchen.

Laufende Kosten

Monatliche Kosten2.988,42 €
Preis pro m²35 €
Gesamtmiete Netto2.490,35 €
Monatliche Kosten117,3 €
Miete2.392,6 €
USt. Miete478,52 €
Miete2.871,12 €
Betriebskosten97,75 €
USt. Betriebskosten19,55 €

Einmalige Kosten

Provision: 3 Bruttomonatsmieten zzgl. 20% USt.
Kaution: 6 BMM

Hallo neues Zuhause!

Kenne deine Chance mit Plus

Online seit120Gesehen80Kontaktiert40Gemerkt63
Plus locked

Merkmale

Verfügbar ab 01.09.2025
Einzelhandel
Baujahr 1901
Nutzfläche 68,36 m²

Heizung

Zentralheizung
Heizwärmebedarf (HWB)
247.30 kWh/(m²a)
F
Gesamtenergieeffizienzfaktor (fGEE)
1.34
C

Beschreibung

Dieses charmante Geschäftslokal entfaltet seinen besonderen Charakter in einem prachtvollen Gebäude aus dem Jahr 1901 und steht Ihnen ab dem 1. September 2025 zur Miete zur Verfügung.

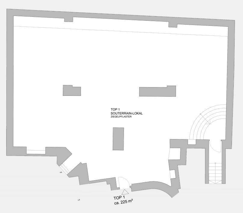
Das Objekt besticht mit einer Verkaufsfläche von ca. 48 m² im Erdgeschoss und Galerie sowie einem zusätzlichen Technik- und Abstellraum von ca. 20 m² im Keller.
Es wird zusätzlich eine Abstellfläche im Erdgeschoss mit ca. 235 m² mit vermietet. Hier würde ein eigener Abstellflächen Mietvertrag aufgesetzt werden.

Für wohlige Wärme sorgt eine effiziente Gaszentralheizung.
Der Mietvertrag bietet Ihnen Planungssicherheit mit einer Befristung von 10 Jahren und einem Kündigungsverzicht von 3 Jahren.

Diese Immobilie vereint Geschichte mit Funktionalität und eignet sich ideal für Einzelhändler, die einen etablierten Standort in einer pulsierenden Umgebung suchen.

Dieses charakteristische Geschäftslokal befindet sich in einem der begehrtesten Viertel des 9. Bezirks von Wien.
Die attraktive Lage zieht nicht nur Einheimische, sondern auch zahlreiche Besucher an, die das charmante Flair der Umgebung schätzen.
Der 9. Bezirk ist bekannt für seine historische Architektur, vielfältige Gastronomie und eine lebendige Kulturszene, die ein dynamisches Umfeld für Geschäftsaktivitäten bietet.
Wir weisen darauf hin, dass zwischen dem Vermittler und dem Auftraggeber ein wirtschaftliches Naheverhältnis besteht. Der Vermittler ist als Doppelmakler tätig.

Kontaktieren

GewerblichEHL Gewerbeimmobilien GmbHFrau Franziska Patay, MSc
Nachricht
Anrede
Vorname
Nachname
E-Mail
Telefon
GewerblichEHL Gewerbeimmobilien GmbHFrau Franziska Patay, MSc
Video Live-Besichtigung
 Verifiziert von ImmoScout24
Immo Expert *** Award