{"obj_regio1":"009","obj_regio2":"009001","obj_regio3":"009001009","obj_ityp":"8","obj_zipCode":"1090","obj_title":"Geschäftslokal in toller Lage - Servitenviertel - Edelrohbau","obj_picture":"https://pictures.immobilienscout24.de/prod.www.immobilienscout24.at/pictureserver/loadPicture?q=70&id=012.0012000001E83rb-1755707987-e73e639b386d434ca652cdf1afe4d873","obj_exclusiveExpose":"true","obj_cwId":"ADS0017893741","obj_purchasePrice":null,"obj_purchasePriceRange":null,"obj_baseRentRange":"9"}
  • Altbau

Geschäftslokal in toller Lage - Servitenviertel - Edelrohbau

2.988
 
70 m²
Hubner Immobilien GmbHHerr Robert Fried
1090 Wien

Laufende Kosten

Monatliche Kosten2.988,42 €
Preis pro m²42,69 €
Kalkuliert von ImmoScout24
Gesamtbelastung Netto2.490,35 €
USt. Gesamtbelastung498,07 €
Monatliche Kosten117,3 €
Miete2.392,6 €
USt. Miete478,52 €
Betriebskosten97,75 €
USt. Betriebskosten19,55 €
Steuersatz20 %

Hallo neues Zuhause!

Kenne deine Chance mit Plus

Online seit120Gesehen80Kontaktiert40Gemerkt63
Plus locked

Merkmale

Verfügbar ab sofort
befristet auf 10 Jahre
Einzelhandel
Altbau, Erstbezug
Nutzfläche 70 m²
Verkaufsfläche 70 m²
1 Toilette

Heizung

ZentralheizungGas
Heizwärmebedarf (HWB)
244. kWh/(m²a)
F
Gesamtenergieeffizienzfaktor (fGEE)
1.390
C

Beschreibung

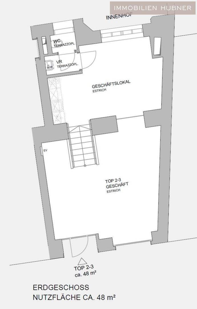
Zur Vermietung gelangt dieses Geschäftslokal mit Straßenzugang am Beginn der Porzellangasse im 9. Bezirk.
=================
ACHTUNG: Im hinteren Teil können zusätzlich zwei Lagerflächen gemietet werden mit jeweils 235m²+225m²!
=================


INFRASTRUKTUR + HIGHLIGHTS AUF EINEN BLICK
• sehr schöner Altbau
• tolle Lage
• WC und Waschraum
• Technikraum
• Edelrohhbau (ohne Beläge, ohne Lampen)


ERSTZAHLUNG UND VERTRAGSKONDITIONEN
• Befristung 10J (Option auf Verlängerung)
• Kaution 6 BMM (oder nach Absprache, bonitätsabhängig)
• Provision 3 BMM
• Kündigungsverzicht 3 J
• Kündigungsfrist 6 M
• Vergebührung beim Finanzamt
• Monatliches Akonto Gaszentralheizung: € 86,81 netto zzgl 20% MwSt.


Für Rückfragen stehe ich Ihnen selbstverständlich gerne zur Verfügung!



KONTAKT
Robert Fried, Anbieter kontaktieren, Anbieter kontaktieren

Für nähere Informationen und um einen Besichtigungstermin zu vereinbaren stehe ich Ihnen sehr gerne zur Verfügung.


____
Angaben gemäß gesetzlichem Erfordernis:

Miete € 2392,6 zzgl 20% USt.
Betriebskosten € 97,75 zzgl 20% USt.
Umsatzsteuer € 498,07

------------------------------------------------------------------

Gesamtbetrag € 2988,42

------------------------------------------------------------------

Heizwärmebedarf: 244.1 kWh/(m²a)
Klasse Heizwärmebedarf: F
Faktor Gesamtenergieeffizienz: 1.39
Klasse Faktor Gesamtenergieeffizienz: C

Kontaktieren

GewerblichHubner Immobilien GmbHHerr Robert Fried
Nachricht
Anrede
Vorname
Nachname
E-Mail
Telefon
GewerblichHubner Immobilien GmbHHerr Robert Fried
 Verifiziert von ImmoScout24
Gold Partner