{"obj_regio1":"009","obj_regio2":"009001","obj_regio3":"009001022","obj_ityp":"8","obj_zipCode":"1220","obj_title":"++ TOP GEWERBEFLÄCHE mit AUSLAGE ++ PROJEKT KARL74\r","obj_picture":"https://pictures.immobilienscout24.de/prod.www.immobilienscout24.at/pictureserver/loadPicture?q=70&id=012.0012000001E84Jq-e3cdcd4382724d9dba55fa6766f8ddb2","obj_exclusiveExpose":"false","obj_cwId":null,"obj_purchasePrice":355000,"obj_purchasePriceRange":"7","obj_baseRentRange":null}
  • Terrasse
  • Video Live-Besichtigung

++ TOP GEWERBEFLÄCHE mit AUSLAGE ++ PROJEKT KARL74

355.000
 
123 m²Terrasse
Prima Service PS ImmobilienFrau PS Immo
Erzherzog Karl Strasse, 1220 Wien

Einmalige Kosten

Kaufpreis355.000 €
Kaufpreis pro m²2.894,89 €
Provision: 3%
Provision12.780 €
Provision Netto10.650 €
USt. Provision2.130 €

Hallo neues Zuhause!

Kenne deine Chance mit Plus

Online seit120Gesehen80Kontaktiert40Gemerkt63
Plus locked

Merkmale

Verfügbar ab sofort
Einzelhandel
Baujahr 2025, Neubau
Nutzfläche 122,63 m²
Terrasse

Ausstattung

Barrierefrei

Heizung

Zentralheizung
Heizwärmebedarf (HWB)
29.00 kWh/(m²a)
B

Beschreibung

++ TOP GEWERBEFLÄCHE mit AUSLAGE ++ PROJEKT KARL74

++ Erzherzog-Karl-Straße | Bezugsfertig ab September 2025 ++

++ BESICHTIGUNGEN bereits MÖGLICH ++

Inmitten der begehrten Donaustadt wurde ein stilvolles Neubauprojekt realisiert.
Insgesamt wurden 33 freifinanzierte Eigentumswohnungen sowie eine Gewerbefläche errichtet – ergänzt durch eine hauseigene Tiefgarage mit 18 Stellplätzen, teils vorbereitet für E-Mobilität.

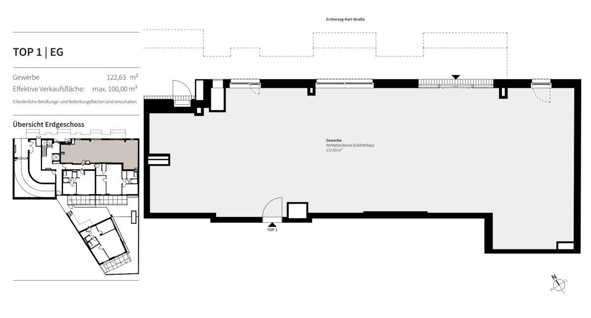
Top 1:
Attraktive Geschäftsfläche im Erdgeschoss mit Auslagefront und Straßenzugang:

Nutzfläche: ca. 122,63 m² | 1 großer Raum

Edelrohbau, flexible Gestaltung möglich!

Vielseitig nutzbare Geschäftsfläche im Erdgeschoss und überzeugt durch eine großzügige Auslagenfront zur Straße sowie einen direkten Straßenzugang – ideal für Einzelhandel, Büro oder Dienstleistungsbetriebe.

Lage:
Erdgeschoss mit direktem Zugang zur Straße

Ausstattung:
Edelrohbau – individuelle Innenraumgestaltung möglich

Nutzung:
Flexibel nutzbar (Einzelhandel, Büro, Praxis etc.)

Besonderheiten:
Große Fensterfront für optimale Sichtbarkeit und Tageslicht

Die Fläche wird im Edelrohbau verkauft, was Ihnen maximale Freiheit bei der Planung und Umsetzung Ihrer Geschäftsidee ermöglicht. Ob modernes Showroom-Konzept, Boutique oder stilvolles Büro – hier sind Ihren Vorstellungen keine Grenzen gesetzt.

Kaufpreis:
Der Kaufpreis der Gewerbefläche beträgt EUR 355.000.-

PKW Tiefgaragenplatz optional um EUR 35.000.- möglich!


Ausstattungshighlights:
- Barrierefreier Zugang zu allen Geschossen inkl. Tiefgarage
- Echtholzparkett in den Wohnräumen
- Großformatige Fliesen & Feinsteinzeug in den Nassbereichen
- Hochwertige Sanitärausstattung
- Vorbereitung für Klimaanlage in allen Wohnungen
- Klimageräte im Dachgeschoss serienmäßig
- 3-fach-verglaste Kunststofffenster für optimalen Wärme- & Schallschutz
- Wohnungseingangstüren Sicherheitsklasse RC3/WK3
- Holzböden auf Balkonen & Terrassen
- Wasseranschluss auf allen Freiflächen
- Luft/Wasser-Wärmepumpe
- Eigener Einlagerungsraum + Fahrrad- & Kinderwagenabstellräume mit E-Bike-Steckdosen
- 18 Tiefgaragenplätze

Lage – Erzherzog trifft Lebensqualität:
Die Erzherzog-Karl-Straße überzeugt durch ihre zentrale Lage mit perfekter Infrastruktur.
Nur 15 Minuten ins Stadtzentrum oder zum Gänsehäufel.
Donauzentrum, Alte Donau und Kaisermühlen sind fußläufig erreichbar.
Nahversorger, Kindergärten und Schulen befinden sich in unmittelbarer Nähe.
Straßenbahnlinie 25, mehrere Buslinien und S-Bahn S80 in Gehdistanz.U1 und U2 in wenigen Minuten erreichbar – ideal für Pendler und Stadtmenschen.

Ich freue mich auf Ihre Anfrage - für eine Besichtigung stehe ich jederzeit zur Verfügung!

Ansprechpartnerin:
Frau Franziska Schmutz
Tel: Anbieter kontaktieren
Mail: Anbieter kontaktieren
Homepage: www.ps-immo.co.at

Nebenkosten:
Grunderwerbssteuer: 3,5% vom Kaufpreis
Grundbucheintragungsgebühr: 1,1% vom Kaufpreis
Kosten der Vertragserrichtung: 1,5% vom Kaufpreis + Ust. (Anwaltsgebunden)
Maklerprovision: 3,0% vom Kaufpreis + Ust.

Wir halten fest, dass kein wirtschaftliches Naheverhältnis zum Abgeber besteht - eine Weitergabe an andere Interessenten ohne Rücksprache mit uns ist nicht gestattet.Prima Service PS Immobilien tritt als Doppelmakler auf. Alle Angaben sind ohne Gewähr und basieren ausschließlich auf Informationen, die uns von unserem Auftraggeber zur Verfügung gestellt wurden.Wir übernehmen keine Gewähr für die Vollständigkeit, Richtigkeit und Aktualität dieser Angaben.

Kann ich mir diese Immobilie leisten?

  • % Nebenkosten
    0 €/ Monat
  • % Zinsen
    0 €/ Monat
  • % Kaufpreis
    0 €/ Monat
*
pro Monat
* errechnete monatliche Kreditrate bei einem angenommenen Effektivzins von 1.6% p.a. Die Berechnung stellt einen unverbindlichen Richtwert dar und ist von der Bonität, Kredithöhe, Laufzeit, Verwendungszweck und Besicherung abhängig.

Kontaktieren

GewerblichPrima Service PS ImmobilienFrau PS Immo
Nachricht
Anrede
Vorname
Nachname
E-Mail
Telefon
Ich bin Eigentümer:in einer Immobilie
GewerblichPrima Service PS ImmobilienFrau PS Immo
Video Live-Besichtigung
 Verifiziert von ImmoScout24
Premium Partner 2023 Award