{"obj_regio1":"004","obj_regio2":"004001","obj_regio3":"004001003","obj_ityp":"0","obj_zipCode":"4020","obj_title":"Außergewöhnliche Altbauwohnung mit Domblick in Bestlage","obj_picture":"https://pictures.immobilienscout24.de/prod.www.immobilienscout24.at/pictureserver/loadPicture?q=70&id=012.001P900000U4SSq-fd839214faee42c58b1e32161b8b5b45","obj_exclusiveExpose":"false","obj_cwId":null,"obj_purchasePrice":null,"obj_purchasePriceRange":null,"obj_baseRentRange":"8"}
  • Provisionsfrei
  • Altbau

Außergewöhnliche Altbauwohnung mit Domblick in Bestlage

1.825
 
165 m²5 Zimmer
Etage3
Befristung3 Jahre
Kaution3 Monatsmieten
PrivatH K
4020 Linz

Laufende Kosten

Monatliche Kosten1.825 €
Preis pro m²11,06 €
Kalkuliert von ImmoScout24

Einmalige Kosten

Kaution: 3 Monatsmieten

Hallo neues Zuhause!

Kenne deine Chance mit Plus

Online seit120Gesehen80Kontaktiert40Gemerkt63
Plus locked

Merkmale

befristet auf 3 Jahre
Altbau
Saniert, Dielen, Parkett, 3. Etage, Insgesamt 3 Etagen
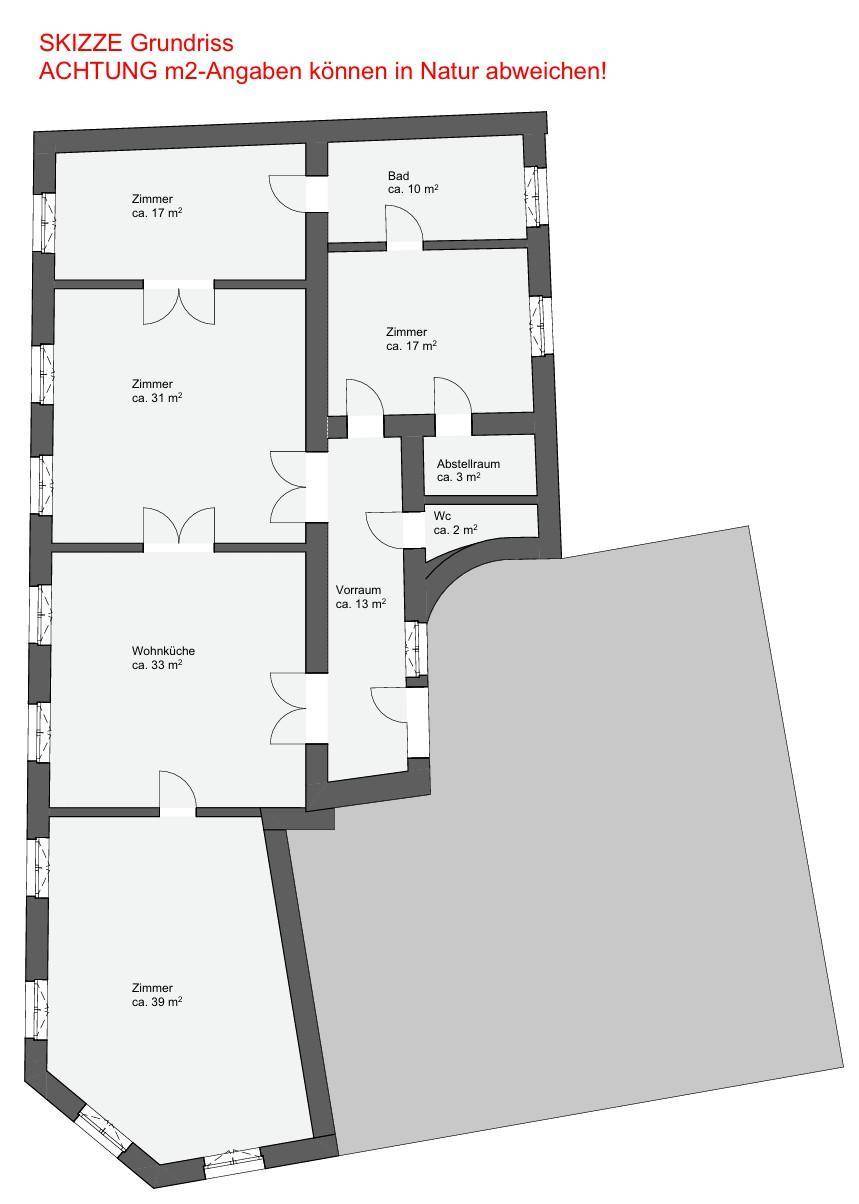
Gesamtfläche 165 m²
5 Zimmer
1 Badezimmer, Abstellraum

Ausstattung

Badewanne, Dusche

Heizung

EtagenheizungGas
Heizwärmebedarf (HWB)
74.9 kWh/(m²a)
C

Beschreibung

Die einzigartige, sanierte Altbauwohnung befindet sich im innersten Herzen von Linz, dem bekannten Domviertel. Die Wohnung besteht aus 4 Zimmern und großer Küche, einem Bad mit Badewanne und Dusche, extra WC, einem Vorraum und einem Abstellraum. Eine Raumhöhe von ca. 3,70 m ist beeindruckend und bietet viele Möglichkeiten das Raumgefühl positiv zu verstärken. Der Großteil der Böden ist als edler, großformatiger Holzdielenboden ausgeführt. Die Wohnung besticht durch ihren atemberaubenden Blick auf den Dom, der jeden Morgen für einen guten Start in den Tag sorgt.

Lage
Von der Wohnung aus hat man einen direkten Blick auf den Haupteingang des neuen Doms. Das Herz der Linzer City, einschließlich der Landstraße, des Hauptplatzes, des Taubenmarkts, der Theater- und der Promenadengalerien, ist in wenigen Minuten zu Fuß erreichbar.

Sonstiges
Diese Wohnung eignet sich auch bestens für ein Büro. Das Haus ist ein sehr ruhiges Haus und deshalb suchen wir ruhige Mieter.

Wir möchten sie darauf hinweisen, dass bei gewerblicher Vermietung eine Mehrwertsteuer von 20 % anfällt.

!!! Bitte bei Kontaktaufnahme die Telefonnummer hinterlassen !!!

Achtung vor Betrug!

  • Überweise kein Geld ins Ausland oder über einen Treuhandservice!
  • Übermittle niemals deinen Ausweis vor einer Besichtigung!
  • Bezahle nie vor einer Besichtigung, auch keine Provision!

Du wirst dennoch aufgefordert eines dieser Dinge zu tun oder hast Zweifel?

Kontaktieren

PrivatH K
Nachricht
PrivatH K