{"obj_regio1":"009","obj_regio2":"009001","obj_regio3":"009001003","obj_ityp":"7","obj_zipCode":"1030","obj_title":"Industrial-Style Open-Space-Office in der Fabricatur","obj_picture":"https://pictures.immobilienscout24.de/prod.www.immobilienscout24.at/pictureserver/loadPicture?q=70&id=012.0012000001E3r8F-3f6071fe043a422fbf53bf77e900b1cc","obj_exclusiveExpose":"true","obj_cwId":"ADS0017892621","obj_purchasePrice":null,"obj_purchasePriceRange":null,"obj_baseRentRange":"9"}

    Industrial-Style Open-Space-Office in der Fabricatur

    3.797
     
    163 m²3 Zimmer
    ColliersHerr Florian Bogner
    1030 Wien

    Laufende Kosten

    Monatliche Kosten3.796,6 €
    Preis pro m²16 €
    Gesamtbelastung Netto3.163,83 €
    USt. Gesamtbelastung632,77 €
    Gesamtmiete3.593,17 €
    Gesamtmiete Netto2.994,31 €
    Miete2.608 €
    USt. Hauptmietzins521,6 €
    Betriebskosten386,31 €
    USt. Betriebskosten77,26 €
    Heizkosten Netto169,52 €
    USt. Heizkosten33,9 €

    Einmalige Kosten

    Provision: 3BMM
    Provision10.779,52 €
    Provision Netto8.982,93 €
    USt. Provision1.796,59 €
    Kaution: 6BMM
    Kaution17.965,86 €

    Hallo neues Zuhause!

    Kenne deine Chance mit Plus

    Online seit120Gesehen80Kontaktiert40Gemerkt63
    Plus locked

    Merkmale

    Verfügbar ab Ab sofort
    befristet auf 10 Jahre
    Büro
    Baujahr 1900
    Nutzfläche 163 m²
    3 Zimmer
    2 Toiletten, Abstellraum

    Ausstattung

    Barrierefrei, Personenaufzug

    Heizung

    Zentralheizung
    Heizwärmebedarf (HWB)
    63.20 kWh/(m²a)
    C
    Gesamtenergieeffizienzfaktor (fGEE)
    1.13
    C

    Beschreibung

    BESCHREIBUNG
    Im 3.OG dieses Hauses gelangt ein gut aufgeteiltes Open-Space-Büro in die Vermarktung:

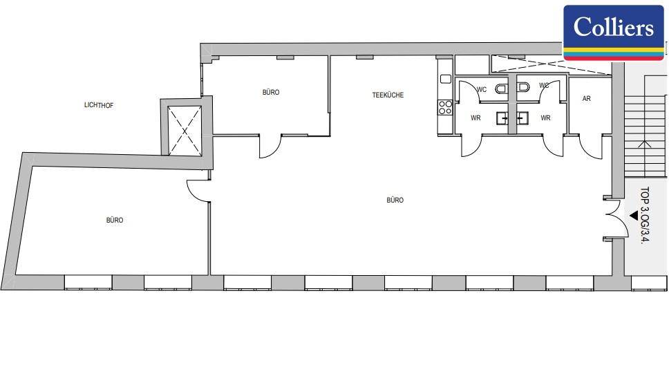
    Das Büro bietet auf ca. 163 m² einen Open Space inklusive voll ausgestatteter Teeküche, 2 WCs, einen Server/Abstellraum inkl. Serverschrank und ein Chefbüro. Das Büro verfügt außerdem über einen klimatisierten Besprechungsraum.

    Das Büro steht ab sofort zur Anmietung zur Verfügung, die Kaution beträgt 6 Bruttomonatsmieten.

    VERFÜGBARKEIT
    ab sofort

    VERFÜGBARE MIETFLÄCHEN
    2.OG 163 m² € 16,00

    Betriebskosten inkl. Heizung: 3,41 €/m² p.m.

    AUSSTATTUNG
    getrennte WCs
    Teeküche
    Klimaanlage im Besprechungsraum
    Serverschrank inkl. CAT-7 Verkabelung
    außenliegende Beschattung


    TECHNISCHE DETAILS
    Neubau

    Energiekennwerte:
    Energieklasse C
    Heizwärmebedarf 63,20 kWh/m²a

    LAGE UND VERKEHRSANBINDUNG
    öffentlicher Verkehr:
    U-Bahn: U3
    Schnellbahn: Rennweg
    Straßenbahn: 71, O
    Bus: 4A, 77A

    INFRASTRUKTUR
    In der unmittelbaren Umgebung sind zahlreiche Geschäfte und Restaurants zu finden.

    KAUTION
    6 Bruttomonatsmieten

    PROVISION
    Im Falle eines Vertragsabschlusses beträgt unser Honorar lt. Maklerverordnung für Immobilienmakler, BGBI.262 und 297/1996, 3 Bruttomonatsmieten zzgl. 20 % Ust. Weiters möchten wir auf unsere allgemeinen Geschäftsbedingungen und den ausschließlichen Gerichtsstand Wien, Innere Stadt verweisen.
    Alle Preisangaben verstehen sich pro Monat, zzgl. der gesetzlichen Ust. und Betriebskosten.

    Weitere Objekte finden Sie auch auf unserer Website http://www.colliers.com/

    Kontaktieren

    GewerblichColliersHerr Florian Bogner
    Nachricht
    Anrede
    Vorname
    Nachname
    E-Mail
    Telefon
    GewerblichColliersHerr Florian Bogner
     Verifiziert von ImmoScout24
    Gold Partner