{"obj_regio1":"009","obj_regio2":"009001","obj_regio3":"009001020","obj_ityp":"2","obj_zipCode":"1200","obj_title":"PROVISIONSFREI - Modernes wohnen am Donauufer mit Donaublick!","obj_picture":"https://pictures.immobilienscout24.de/prod.www.immobilienscout24.at/pictureserver/loadPicture?q=70&id=012.0012000001MjIj0-1747143141-891a8d83820d41d8b291e579b319717e","obj_exclusiveExpose":"true","obj_cwId":"ADS0017892453","obj_purchasePrice":1078700,"obj_purchasePriceRange":"11","obj_baseRentRange":null}
  • Balkon
  • Terrasse
  • Video Live-Besichtigung

PROVISIONSFREI - Modernes wohnen am Donauufer mit Donaublick!

1.078.700
 
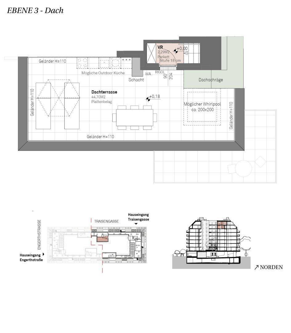
126 m²4 ZimmerBalkonTerrasse 45 m²
Preis / m²8.563,15 €
Etage7
Projektstatus-
Haring Group Bauträger GmbHHaring Immobilien Treuhand GmbH
Traisengasse 20-22, 1200 Wien

Einmalige Kosten

Kaufpreis1.078.700 €
Kaufpreis pro m²8.563,15 €
Kalkuliert von ImmoScout24
Provision: Provision bezahlt der Abgeber

Hallo neues Zuhause!

Kenne deine Chance mit Plus

Online seit120Gesehen80Kontaktiert40Gemerkt63
Plus locked

Merkmale

Verfügbar ab 30.6.2028
Wohnung
Baujahr 2026, Neubau, Erstbezug, Unterkellert, 7. Etage, Insgesamt 9 Etagen
Wohnfläche 125,97 m²
Gesamtfläche 201,23 m², Nutzfläche 125,97 m²
1 Terrasse 44,7 m²
1 Balkon 30,56 m², Freiflächen 75,26 m²
4 Zimmer
Kellerfläche 1,55 m², 1 Badezimmer, 1 Toilette

Heizung

Heizwärmebedarf (HWB)
20.4 kWh/(m²a)
A
Gesamtenergieeffizienzfaktor (fGEE)
0.72
A+

Beschreibung

Urbanes Lebensgefühl mit Donaublick

Direkt am malerischen Donauufer entfaltet sich das prestigeträchtige Wohnprojekt, Traisengasse 20–22. Der moderne Neubau beeindruckt mit eleganter Architektur, begrüntem Innenhof und spektakulärem Donaublick. 269 Eigentumswohnungen bieten vielfältige Wohnungsvarianten für alle Lebensstile und Generationen. Die Nähe zur Donauinsel und die schnelle Anbindung ans Stadtzentrum versprechen ein privilegiertes Lebensgefühl in einem der lebendigsten Bezirke Wiens.

Die modernen 2-Zimmer-Wohnungen sind ideal für Singles und Paare. Mit 37 bis 45 m² vereinen sie einen offenen Wohn-/Essbereich, ein separates Schlafzimmer sowie Zugang zur Terrasse oder zum eigenen Garten. Höchsten Wohnkomfort bieten auch die Maisonette-, Garten- und Hofwohnungen mit 3 oder 4 Zimmern. Die Gartenwohnungen verfügen über private Grünflächen, während Hofwohnungen direkten Zugang zum begrünten Innenhof haben. Die Dachgeschoßwohnungen und Penthouses bieten luxuriöses Wohnen mit 43 bis 126 m² und 2 bis 4 Zimmern. Atemberaubende Ausblicke und ein begehrter Rückzugsort im Herzen der Stadt zeichnen diese Einheiten aus.

Nachhaltigkeit durch Qualität

Im Mittelpunkt dieses Neubauprojekts stehen die Erschaffung von nachhaltigem Lebensraum und das Wohlbefinden der zukünftigen Bewohner. Die DGNB GOLD Nachhaltigkeits-Zertifikat und die angestrebte EU-Taxonomie-Verifizierung unterstreichen unser Engagement für umweltgerechtes Bauen.

Provisionsfrei bis zum Baustart!

Kaufen Sie Ihr zukünftiges Zuhause bereits vor dem Baustart und sparen dabei die Provision! Gerne steht Ihnen unser Vertrieb für Informationen zur Verfügung.

Alle Infos zu diesem Projekt finden Sie unter www.traisengasse20.at

Sparen Sie jetzt bis zu 5,9% Nebengebühren!

Ihr Vorteil beim Erwerb einer Haring Group Immobilie:

• Provisionsfrei! Alle Eigentumsobjekte werden ohne Provision (3,6% inkl. MwSt.) angeboten!
• Keine Eintragungsgebühr: Von 1.7.2024 bis 1.7.2026 entfallen die Gebühren für die Grundbucheintragung (1,1%) und die Eintragungsgebühren des Pfandrechts (1,2%).*

• Laut Wohn- & Baupaket der Regierung entfallen die Eintragungsgebühren ins Grundbuch bei einem Kaufpreis von bis zu € 500.000,- pro Käufer:in komplett, wenn der Immobilienerwerb für den Hauptwohnsitz dient. Kaufen zwei Personen eine Immobilie, verdoppelt sich die Obergrenze auf € 1.000.000,-.

Renderings: Symbolbilder Außenansichten (c) zoom.at, Innenraumansichten (c) JAMJAM - Kreativagentur für Immobilien

Wir weisen darauf hin, dass zwischen dem Vermittler und dem zu vermittelnden Dritten ein familiäres oder wirtschaftliches Naheverhältnis besteht.

Der Vermittler ist als Doppelmakler tätig.


Infrastruktur / Entfernungen

Gesundheit
Arzt <250m
Apotheke <450m
Klinik <550m
Krankenhaus <550m

Kinder & Schulen
Schule <225m
Kindergarten <250m
Universität <1.025m
Höhere Schule <1.825m

Nahversorgung
Supermarkt <25m
Bäckerei <200m
Einkaufszentrum <600m

Sonstige
Geldautomat <525m
Bank <600m
Post <700m
Polizei <475m

Verkehr
Bus <100m
U-Bahn <675m
Straßenbahn <625m
Bahnhof <600m
Autobahnanschluss <1.000m

Angaben Entfernung Luftlinie / Quelle: OpenStreetMap

Kann ich mir diese Immobilie leisten?

  • % Nebenkosten
    0 €/ Monat
  • % Zinsen
    0 €/ Monat
  • % Kaufpreis
    0 €/ Monat
*
pro Monat
* errechnete monatliche Kreditrate bei einem angenommenen Effektivzins von 1.6% p.a. Die Berechnung stellt einen unverbindlichen Richtwert dar und ist von der Bonität, Kredithöhe, Laufzeit, Verwendungszweck und Besicherung abhängig.

Kontaktieren

GewerblichHaring Group Bauträger GmbHHaring Immobilien Treuhand GmbH
Nachricht
Anrede
Vorname
Nachname
E-Mail
Telefon
Ich bin Eigentümer:in einer Immobilie
GewerblichHaring Group Bauträger GmbHHaring Immobilien Treuhand GmbH
Video Live-Besichtigung
 Verifiziert von ImmoScout24
Premium Partner 2023 Award