{"obj_regio1":"009","obj_regio2":"009001","obj_regio3":"009001014","obj_ityp":"7","obj_zipCode":"1140","obj_title":"All Inclusiv Miete | Kleinbüros unweit Bahnhof Hütteldorf","obj_picture":"https://pictures.immobilienscout24.de/prod.www.immobilienscout24.at/pictureserver/loadPicture?q=70&id=012.0010J000020IZ2Y-1691492019-d807f60a724347848dbe1793521cd875","obj_exclusiveExpose":"true","obj_cwId":"ADS0017951705","obj_purchasePrice":null,"obj_purchasePriceRange":null,"obj_baseRentRange":"3"}
  • Terrasse

All Inclusiv Miete | Kleinbüros unweit Bahnhof Hütteldorf

475
 
12 ZimmerTerrasse 323 m²
Badura Immobilien GmbHHerr Thomas Nawara
1140 Wien,Penzing

Laufende Kosten

Miete475 €
Gesamtbelastung Netto695 €
USt. Gesamtbelastung139 €
USt. Miete95 €
Betriebskosten220 €
USt. Betriebskosten44 €

Einmalige Kosten

Provision: 1.668,00 € inkl. 20% USt.
Kaution: 2.502,00 €

Hallo neues Zuhause!

Kenne deine Chance mit Plus

Online seit120Gesehen80Kontaktiert40Gemerkt63
Plus locked

Merkmale

Verfügbar ab ab sofort
befristet auf 5 Jahre
Büro
Neubau, Gepflegt, Teppich, Laminat, 1. Etage
1 Terrasse 322,79 m² südseitig
südseitig
12 Zimmer
2 Toiletten

Ausstattung

Einbauküche, Klimatisiert

Beschreibung

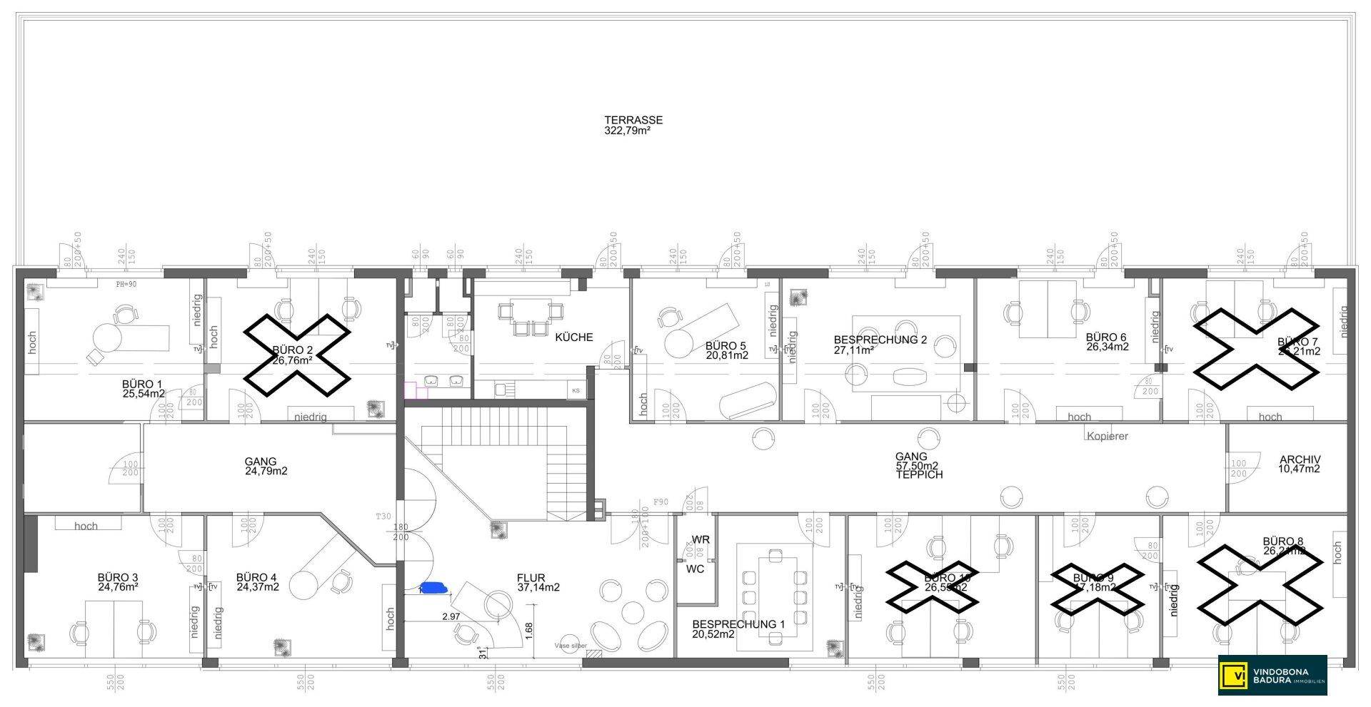
Moderne Büroflächen im 14. Wiener Gemeindebezirk direkt beim Hütteldorfer Bahnhof zu vermieten

Vor dem Allianz Stadion des SK Rapid Wien befindet sich dieses Gewerbeobjekt welches aus 10 Büros sowie 2 Besprechungszimmer besteht. Entsprechende moderne Möblierung in den einzelnen Büros sowie in der Gemeinschaftsküche ist vorhanden. Die Büroflächen befinden sich im 1. Stock des Hauses - eine herrliche Terrasse steht ebenfalls zur Verfügung. Strom- und Heizkosten sind bereits inkludiert!

Übersicht auf einen Blick:

Büroflächen: ca. 17m² - 27m²
Miete: ab € 523,-- netto/mtl.

2 Besprechungszimmer: ca. 20m² & 27m²
Mietdauer: 5 Jahre
Mietbeginn: ab sofort
Kaution: 2 Bruttomonatsmieten
Provision: 3 Bruttomonatsmieten

Hinweis gemäß Energieausweisvorlagegesetz: Ein Energieausweis wurde vom Eigentümer bzw. Verkäufer, nach unserer Aufklärung über die generell geltende Vorlagepflicht, sowie Aufforderung zu seiner Erstellung noch nicht vorgelegt. Daher gilt zumindest eine dem Alter und der Art des Gebäudes entsprechende Gesamtenergieeffizienz als vereinbart. Wir übernehmen keinerlei Gewähr oder Haftung für die tatsächliche Energieeffizienz der angebotenen Immobilie.


Infrastruktur / Entfernungen

Gesundheit
Arzt <500m
Apotheke <500m
Klinik <2.500m
Krankenhaus <1.000m

Kinder & Schulen
Schule <500m
Kindergarten <1.000m
Universität <2.000m
Höhere Schule <4.500m

Nahversorgung
Supermarkt <500m
Bäckerei <500m
Einkaufszentrum <4.000m

Sonstige
Geldautomat <500m
Bank <1.000m
Post <1.500m
Polizei <1.000m

Verkehr
Bus <500m
Straßenbahn <500m
U-Bahn <500m
Bahnhof <500m
Autobahnanschluss <3.500m

Angaben Entfernung Luftlinie / Quelle: OpenStreetMap


Alle Angaben wurden von uns sorgfältig kontrolliert und geprüft, eine Gewähr für die Richtigkeit, Vollständigkeit und Letztstand müssen wir allerdings ausschließen.

Aufgrund der Nachweispflicht gegenüber dem Eigentümer sowie in Entsprechung des FAGG (Fern- und Auswärtsgeschäfte-Gesetz) und des VRUG (Verbraucherrechte-Richtlinie Umsetzungsgesetz) können Termine sehr gerne nach Erhalt einer schriftlichen Anfrage mit vollständigen Kontaktangaben (Name, Adresse, Telefon, Email) vereinbart werden. Dies gilt auch für die Weitergabe relevanter Informationen des Objektes.

Herzlichen Dank für Ihr Verständnis!

Wir freuen uns Sie bald als Kunde begrüßen zu dürfen!

Unser Immobilienangebot finden Sie unter: http://www.badura-immobilien.at

***WICHTIG***

Manches Mal verirrt sich unsere Antwortmail im Spam- oder Werbungsordner.

Bitte prüfen Sie diesen - Wir antworten in der Regel innerhalb von 24h.

Kontaktieren

GewerblichBadura Immobilien GmbHHerr Thomas Nawara
Nachricht
Anrede
Vorname
Nachname
E-Mail
Telefon
GewerblichBadura Immobilien GmbHHerr Thomas Nawara
 Verifiziert von ImmoScout24
Bronze Partner