{"obj_regio1":"003","obj_regio2":"003006","obj_regio3":"003006003","obj_ityp":"2","obj_zipCode":"2540","obj_title":"Clever investieren – Ihre attraktive 2 Zimmer-Anlegerwohnung wartet\rKÄUFER provisionsfrei","obj_picture":"https://pictures.immobilienscout24.de/prod.www.immobilienscout24.at/pictureserver/loadPicture?q=70&id=012.0012000001E83gn-a7b69c8203be439d8a44dd741f948c62","obj_exclusiveExpose":"false","obj_cwId":null,"obj_purchasePrice":395856,"obj_purchasePriceRange":"7","obj_baseRentRange":null}
  • Parkplatz
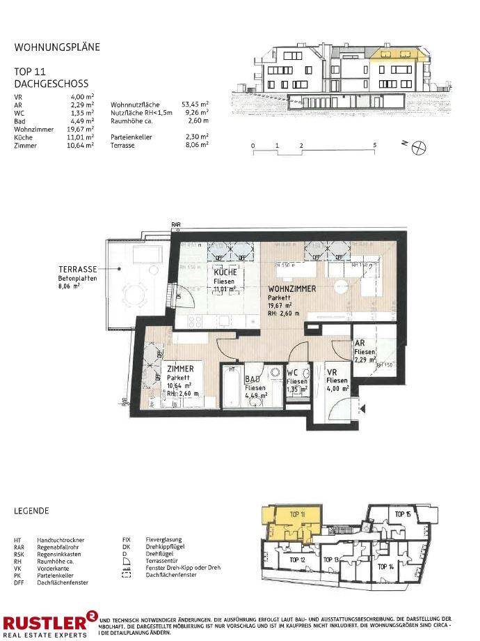
  • Dachgeschosswohnung
  • Terrasse

Clever investieren – Ihre attraktive 2 Zimmer-Anlegerwohnung wartet KÄUFER provisionsfrei

395.856
 
62 m²2 ZimmerTerrasse 8 m²
Preis / m²6.341,81 €
Etage-
Projektstatus-
Rustler ImmobilientreuhandFrau Ulrike Rösch
21, 2540 Bad Vöslau

Einmalige Kosten

Kaufpreis395.856 €
Kaufpreis pro m²6.341,81 €

Hallo neues Zuhause!

Kenne deine Chance mit Plus

Online seit120Gesehen80Kontaktiert40Gemerkt63
Plus locked

Merkmale

Dachgeschosswohnung
Wohnfläche 62,42 m²
1 Terrasse 8,24 m²
2 Zimmer
1 Badezimmer, 1 Toilette, Abstellraum
1 Garage
1 Parkmöglichkeit

Ausstattung

Personenaufzug

Heizung

Heizwärmebedarf (HWB)
25.90 kWh/(m²a)
B
Gesamtenergieeffizienzfaktor (fGEE)
0.76
A

Beschreibung

Gerne können wir Ihnen auf Anfrage weitere Informationen zu den anderen verfügbaren Tops übersenden!

Dieses Neubauprojekt umfasst insgesamt vier Häuser, die jeweils zwischen 7 und 15 Eigentumswohnungen bieten.
Jede Wohnung verfügt über großzügige Freiflächen wie Gärten, Terrassen oder Balkone und erstreckt sich von der Hügelgasse bis zur Hochstraße. Insgesamt werden 48 hochwertige Eigentumswohnungen errichtet, von denen nur noch 14 verfügbar sind!

Nicht nur die tolle Lage, sondern auch die Wohnungen überzeugen mit ihrer modernen Architektur sowie hochwertigen Ausstattung. Beheizt wird mit Fernwärme, die durch eine Fußbodenheizung eine angenehme Raumtemperatur schafft. Weiters sorgen großflächige Fenster für lichtdurchflutete Räume und teils herrliche Weit- und Ausblicke.

Haus A ist bereits erfolgreich abgeschlossen

Das Haus B gliedert sich wie folgt:
- Erdgeschoss: 5 Eigentumswohnungen
- 1. Obergeschoss: 5 Eigentumswohnungen
- Dachgeschoss: 5 Eigentumswohnungen
- Kellergeschoss: 23 Garagenstellplätze, Parteienkeller, Müllraum, KIWA

- Haus C teilt sich wie folgt aus:
- Erdgeschoss: 5 Eigentumswohnungen
- 1. Obergeschoss: 5 Eigentumswohnungen
- Dachgeschoss: 4 Eigentumswohnungen
- Kellergeschoss: 34 Garagenstellplätze, Parteienkeller, Müllraum, KIWA

- Das Haus D gliedert sich wie folgt:
- Erdgeschoss: 1 Geschäftslokal, 1 Eigentumswohnung, Fahrradabstellplätze, Müllraum
- 1. Obergeschoss: 4 Eigentumswohnungen
- Dachgeschoss: 3 Eigentumswohnungen
- Kellergeschoss: Parteienkeller, KIWA

Der Baubeginn ist im zweiten Quartal 2023 erfolgt.
Die Fertigstellung ist im Frühjahr/Sommer 2025 geplant, während die Außenanlagen spätestens Ende 2025 abgeschlossen sein werden.

Highlights des Projekts:

- großzügige Freiflächen
- barrierefreier Lift
- Niedriger Energiebedarf durch Fernwärme - Fußbodenheizung
- Tiefgarage
- ausreichend Fahrrad- und Kinderwagenabstellplätze
- schlüsselfertige Übergabe

Spezifischer Heizwärmebedarf (Änderungen zufolge technischer Notwendigkeiten vorbehalten):
Baukörper B: HWB Ref.SK 25,9 kWh/m²a | fGEE, SK = 0,76
Baukörper C: HWB Ref.SK 30,9 kWh/m²a | fGEE, SK = 0,73
Baukörper D: HWB Ref.SK 32,8 kWh/m²a | fGEE, SK = 0,70

Lage und Infrastruktur: Diese exklusiven und modernen Eigentumswohnungen liegen zentral in Bad Vöslau und bieten eine ideale Lage – das Thermalbad sowie das Rathaus sind nur wenige Gehminuten entfernt, und auch der Bahnhof ist in rund fünf Minuten mit dem Auto erreichbar.

Kindergärten und Volksschulen sind bequem zu Fuß zugänglich, und für weiterführende Schulbildung stehen in der Nähe, etwa in Baden, Mittelschulen und berufsbildende höhere Schulen zur Verfügung. Die Stadt Bad Vöslau bietet außerdem eine Volkshochschule und eine öffentliche Bibliothek, die vielfältige Weiterbildungsmöglichkeiten eröffnet. In der unmittelbaren Umgebung befinden sich zahlreiche Geschäfte und gastronomische Betriebe, und die ärztliche Versorgung ist durch diverse Praxen und Apotheken gesichert. Das nahegelegene Thermalbad und der Kurpark laden zu Erholung und Freizeitaktivitäten im Grünen ein, während örtliche Sportvereine zahlreiche Freizeitoptionen bieten. Die A2 Südautobahn ist in wenigen Minuten erreichbar und sorgt für eine optimale Verkehrsanbindung.

Kann ich mir diese Immobilie leisten?

  • % Nebenkosten
    0 €/ Monat
  • % Zinsen
    0 €/ Monat
  • % Kaufpreis
    0 €/ Monat
*
pro Monat
* errechnete monatliche Kreditrate bei einem angenommenen Effektivzins von 1.6% p.a. Die Berechnung stellt einen unverbindlichen Richtwert dar und ist von der Bonität, Kredithöhe, Laufzeit, Verwendungszweck und Besicherung abhängig.

Kontaktieren

GewerblichRustler ImmobilientreuhandFrau Ulrike Rösch
Nachricht
Anrede
Vorname
Nachname
E-Mail
Telefon
Ich bin Eigentümer:in einer Immobilie
GewerblichRustler ImmobilientreuhandFrau Ulrike Rösch
 Verifiziert von ImmoScout24
Silber Partner