{"obj_regio1":"006","obj_regio2":"006023","obj_regio3":"006023081","obj_ityp":"2","obj_zipCode":"8082","obj_title":"Exklusives Wohnerlebnis in Kirchbach-Zerlach, Steiermark - Erstbezug!","obj_picture":"https://pictures.immobilienscout24.de/prod.www.immobilienscout24.at/pictureserver/loadPicture?q=70&id=012.0015I00000Zv3xW-1731312607-ddd701f9d02b447789d788c4aadde690","obj_exclusiveExpose":"false","obj_cwId":null,"obj_purchasePrice":364900,"obj_purchasePriceRange":"7","obj_baseRentRange":null}
  • Parkplatz
  • Penthouse
  • Terrasse
  • Video Live-Besichtigung

Exklusives Wohnerlebnis in Kirchbach-Zerlach, Steiermark - Erstbezug!

364.900
 
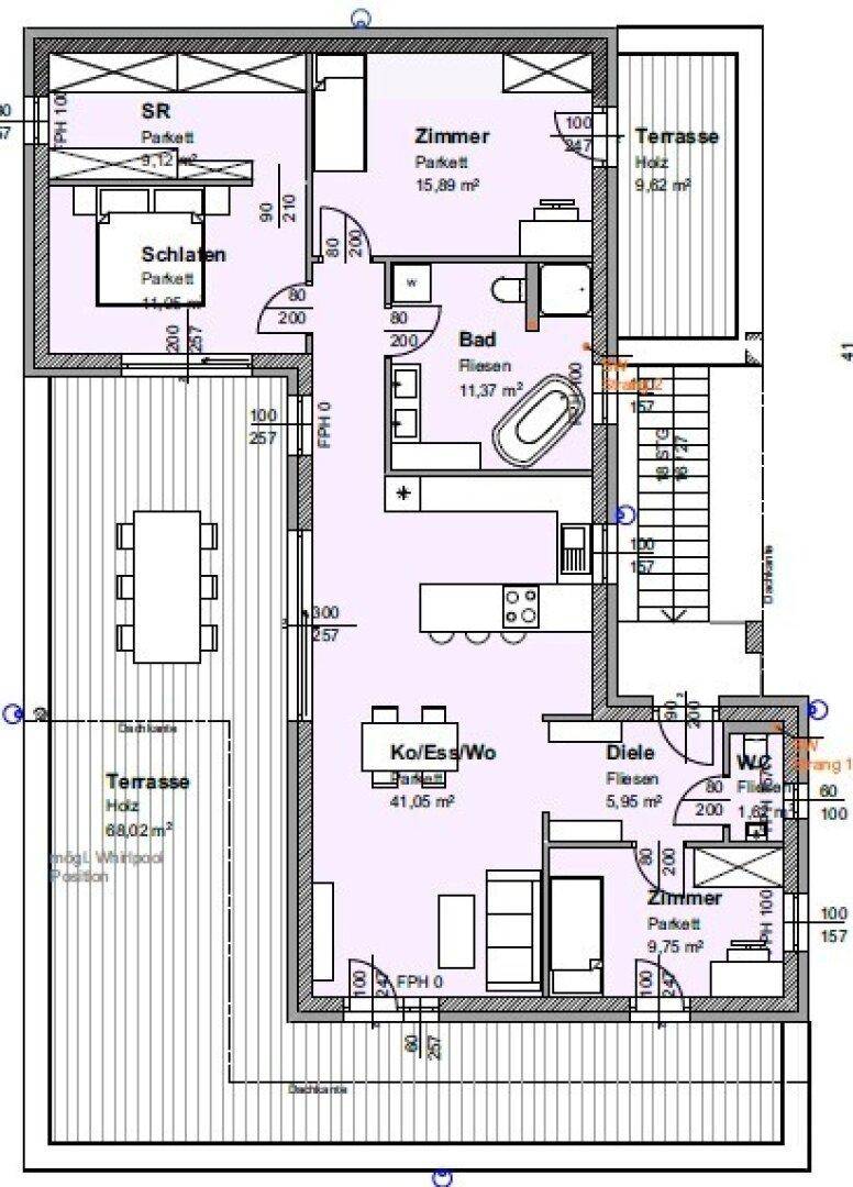
107 m²Terrasse 78 m²
Preis / m²3.416,99 €
Etage1
Baujahr2024
GT7 Prime Holding GmbHFrau Ruzica Antunovic
Kirchbacher Straße, 8082 Kirchbach-Zerlach
Kirchbach-Zerlach liegt im Herzen der Südoststeiermark und bietet eine ideale Kombination aus ländlicher Idylle und guter Infrastruktur.

Verkehrsanbindung:
Kirchbach-Zerlach liegt verkehrsgünstig zwischen den Städten Feldbach und Graz. Über die Landesstraße und Autobahn A2 erreichen Sie Graz in ca. 30–40 Minuten. Auch öffentliche Verkehrsmittel wie Busverbindungen in die umliegenden Gemeinden und nach Graz stehen zur Verfügung.

Einkaufsmöglichkeiten:
Im Ortskern von Kirchbach finden Sie alle wichtigen Einrichtungen des täglichen Bedarfs, darunter Supermärkte, Bäckereien, Banken und eine Postfiliale. Zusätzliche Einkaufs- und Freizeitmöglichkeiten bietet die nahegelegene Stadt Feldbach.

Bildung:
Familienfreundlichkeit wird hier großgeschrieben. Kirchbach-Zerlach verfügt über mehrere Bildungseinrichtungen, darunter eine Volksschule und eine Mittelschule. Weiterführende Schulen sowie Berufsschulen befinden sich in der Umgebung, beispielsweise in Feldbach oder Gleisdorf.

Medizinische Versorgung:
Neben einer Hausarztpraxis gibt es in der Region auch Apotheken und Fachärzte. Das nächstgelegene Krankenhaus befindet sich in Feldbach.

Einmalige Kosten

Kaufpreis364.900 €
Kaufpreis pro m²3.416,99 €
Kalkuliert von ImmoScout24
Kaufpreis Netto304.083,33 €
USt. Kaufpreis60.816,67 €
Provision: 3% des Kaufpreises zzgl. 20% USt.

Hallo neues Zuhause!

Kenne deine Chance mit Plus

Online seit120Gesehen80Kontaktiert40Gemerkt63
Plus locked

Merkmale

Verfügbar ab Q4/2025
Penthouse
Baujahr 2024, Neubau, Erstbezug, Fertigteilbauweise, Schlüsselfertig mit Bodenplatte, Flachdach, Parkett, 1. Etage, Insgesamt 2 Etagen
Wohnfläche 106,79 m²
Lagerfläche 7,33 m²
1 Terrasse 77,64 m²
1 Badezimmer
1 Toilette, Abstellraum
Carport
1 Parkplatz, 1 Parkmöglichkeit

Ausstattung

Rolläden

Heizung

FußbodenheizungFernwärme

Beschreibung

Zum Verkauf steht eine moderne 106 m² große Eigentumswohnung in einer neu errichteten Wohnanlage. Die Wohnung überzeugt durch ihre durchdachte Raumaufteilung, hochwertige Ausstattung und eine zentrale Lage, die keine Wünsche offen lässt. Ideal für Singles, Paare oder Familien, die komfortables Wohnen schätzen.

Objektdetails
  • Wohnfläche: 106 m²
  • Zimmeranzahl: 4 Zimmer (Wohn-Essküche, Schlafzimmer mit begehbarem Schrankraum, 2 Arbeits-/Kinderzimmer)
  • Etage: Erdgeschoss 
  • Terrasse: 77 m² Dachterrasse
  • Kellerabteil: Kellerersatz
  • Stellplatz: Tiefgaragenplatz inklusive

Ausstattung:

  • Offener Wohn-/Essbereich mit Zugang zum Balkon
  • Moderne Einbauküche mit hochwertigen Geräten
  • Tageslichtbad mit Dusche und Badewanne
  • Fußbodenheizung und Parkettboden
  • Dreifachverglaste Fenster

Wir weisen darauf hin, dass zwischen dem Vermittler und dem zu vermittelnden Dritten ein familiäres oder wirtschaftliches Naheverhältnis besteht.

Der Vermittler ist als Doppelmakler tätig.


Infrastruktur / Entfernungen

Gesundheit
Arzt <2.750m
Apotheke <2.500m

Kinder & Schulen
Schule <2.500m
Kindergarten <2.500m

Nahversorgung
Supermarkt <2.500m
Bäckerei <3.250m

Sonstige
Bank <2.250m
Geldautomat <2.250m
Post <2.500m
Polizei <3.500m

Verkehr
Bus <250m

Angaben Entfernung Luftlinie / Quelle: OpenStreetMap

Kann ich mir diese Immobilie leisten?

  • % Nebenkosten
    0 €/ Monat
  • % Zinsen
    0 €/ Monat
  • % Kaufpreis
    0 €/ Monat
*
pro Monat
* errechnete monatliche Kreditrate bei einem angenommenen Effektivzins von 1.6% p.a. Die Berechnung stellt einen unverbindlichen Richtwert dar und ist von der Bonität, Kredithöhe, Laufzeit, Verwendungszweck und Besicherung abhängig.

Kontaktieren

GewerblichGT7 Prime Holding GmbHFrau Ruzica Antunovic
Nachricht
Anrede
Vorname
Nachname
E-Mail
Telefon
Ich bin Eigentümer:in einer Immobilie
GewerblichGT7 Prime Holding GmbHFrau Ruzica Antunovic
Video Live-Besichtigung
 Verifiziert von ImmoScout24
Premium Partner 2023 Award