{"obj_regio1":"006","obj_regio2":"006001","obj_regio3":"006001003","obj_ityp":"8","obj_zipCode":"8020","obj_title":"Attraktive Geschäftsflächen in variablen Größen - flexibel und anpassbar - 8020 Graz","obj_picture":"https://pictures.immobilienscout24.de/prod.www.immobilienscout24.at/pictureserver/loadPicture?q=70&id=012.0012000001E3rCm-1728386120-070c389de24c4396a80415b0d36810cb","obj_exclusiveExpose":"false","obj_cwId":null,"obj_purchasePrice":null,"obj_purchasePriceRange":null,"obj_baseRentRange":"9"}

    Attraktive Geschäftsflächen in variablen Größen - flexibel und anpassbar - 8020 Graz

    6.499
     
    398 m²
    Herr Swjatoslaw Sumann
    8020 Graz
    Mehrere Buslinien verbinden Reininghausgründe mit anderen Stadtteilen und dem Stadtzentrum. Der Hauptbahnhof ist mit dem öffentlichen Nahverkehr gut erreichbar und bietet Verbindungen zu nationalen und Internationalen Zielen. Die Straßenbahnlinie 4, die das Stadtzentrum und andere wichtige Orte verbindet, ist bequem erreichbar. Der Standort ist über die umliegenden Straßen und die Autobahn gut erreichbar, was sowohl den Individualverkehr als auch Lieferungen erleichtert.

    Laufende Kosten

    Monatliche Kosten6.499,29 €
    Preis pro m²16,32 €
    Kalkuliert von ImmoScout24
    Gesamtbelastung Netto5.416,07 €
    USt. Gesamtbelastung1.083,22 €
    Miete4.380,64 €
    USt. Miete876,13 €
    Betriebskosten1.035,43 €
    USt. Betriebskosten207,09 €

    Einmalige Kosten

    Provision inkl. USt.: 3 BMM zzgl. 20% Ust.
    Kaution: 3 BMM zzgl. Ust.

    Hallo neues Zuhause!

    Kenne deine Chance mit Plus

    Online seit120Gesehen80Kontaktiert40Gemerkt63
    Plus locked

    Merkmale

    Verfügbar ab ab sofort
    Einzelhandel
    Baujahr 2018, Erdgeschoss
    Gesamtfläche 398,24 m²

    Ausstattung

    Klimatisiert
    Die Geschäftsflächen werden im Edelrohbau vermietet. Der Ausbau nach Ihren Wünschen und Anforderungen - kann vereinbart werden.

    Heizung

    Heizwärmebedarf (HWB)
    69.50 kWh/(m²a)
    C
    Gesamtenergieeffizienzfaktor (fGEE)
    0.57
    A+

    Beschreibung

    Attraktive Geschäftsfläche - mit variablen Größen, teilbar und anpassbar!

    Diese modernen Geschäftsflächen bieten ihnen die Möglichkeit, Ihre Geschäftsräume nach individuellen Bedürfnissen zu gestalten - sei es durch Teilung, Kombination oder unterschiedliche Ausbaustufen. Die Räume können je nach Bedarf unterteilt werden oder miteinander verbunden werden, um perfekte Größe für Ihre Geschäftsidee zu schaffen.

    Das Stadtgebiet Reininghaus mit rd. 12.000 Einwohner - was zu einem enormen Bedarf von neuen Handelsflächen für Nahversorgung und Dienstleistung führen wird.

    Optimale Erreichbarkeit durch öffentliche Verkehrsmittel, nahegelegene Straßenbahn und Buslinien sowie Anbindung an die Hauptverkehrsstraßen und die Autobahn.

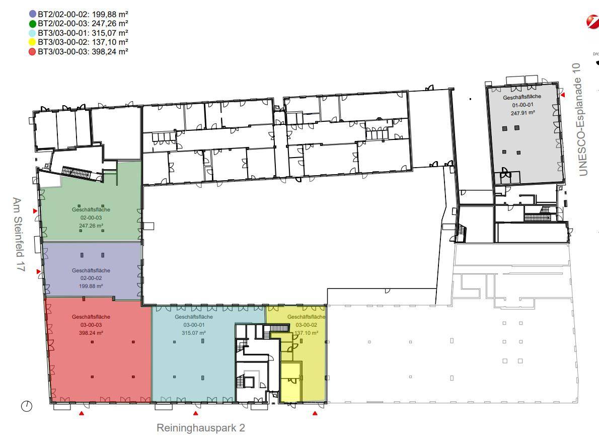
    Verfügbare Geschäftsflächen: Bauplatz 1B

    TOP 1B-01-00-01: ca. 248 m²
    TOP 1B-03-00-02: ca. 137 m², Raumhöhe: ca. 3,81 m
    TOP 1B-03-00-01: ca. 315 m², Raumhöhe: ca. 3,81 m
    TOP 1B-03-00-03: ca. 398 m², Raumhöhe: ca. 3,81 m
    TOP 1B-02-00-02: ca. 200 m², Raumhöhe: ca. 3,81 m
    TOP 1B-02-00-03: ca. 247 m², Raumhöhe: ca. 3,81 - 4,64 m

    Nettomiete/m²/Monat: € 11,00
    Betriebskosten/m²/Monat: € 2,60
    Wir sind eine Tochtergesellschaft der ÖRAG-Österreichische Realitäten AG, Wien, genannt ÖRAG, und es besteht daher unter Umständen ein sonstiges wirtschaftliches Naheverhältnis im Sinne des Maklergesetzes zur ÖRAG und ihren anderen Tochtergesellschaften in Österreich. Das Naheverhältnis zur ÖRAG ergibt sich zB aus der Tatsache, dass die ÖRAG das Objekt für den Eigentümer verwaltet. Es kann aber auch ein wirtschaftliches Naheverhältnis im Sinne des Maklergesetzes zum Auftraggeber, also dem bzw. den Eigentümern bestehen, wenn wir laufend bzw. regelmäßig für diesen Auftraggeber als Makler tätig werden. Sollten Sie diesbezüglich Fragen haben oder eine weitere Aufklärung wünschen, wenden Sie sich bitte direkt an unseren Mitarbeiter.
    Die ÖRAG Immobilien Vermittlung GmbH wird als Doppelmakler tätig.
    Weitere Immobilien finden Sie auf unserer Website www.oerag.at.

    Kontaktieren

    GewerblichHerr Swjatoslaw Sumann
    Nachricht
    Anrede
    Vorname
    Nachname
    E-Mail
    Telefon
    GewerblichHerr Swjatoslaw Sumann
     Verifiziert von ImmoScout24
    Bronze Partner