{"obj_regio1":"003","obj_regio2":"003018","obj_regio3":"003018026","obj_ityp":"0","obj_zipCode":"2734","obj_title":"Seniorenwohnhaus Puchberg am Schneeberg","obj_picture":"https://pictures.immobilienscout24.de/prod.www.immobilienscout24.at/pictureserver/loadPicture?q=70&id=012.0012000001E3qm4-1763645900-29d43cc82c5f482db394508cc0eab074","obj_exclusiveExpose":"false","obj_cwId":null,"obj_purchasePrice":null,"obj_purchasePriceRange":null,"obj_baseRentRange":"5"}
  • Genossenschaft
  • Provisionsfrei
  • Garten

Seniorenwohnhaus Puchberg am Schneeberg

657
 
52 m²2 ZimmerGarten
Finanzierungsbeitrag5.469,54 €
Ablöse-
Befristung-
SGN Gemeinnützige Wohnungs- u. Siedlungsgenossenschaft Neunkirchen reg.Gen.m.b.H.Frau Daniela Lehner
Immobilie hat viele AnfragenMit Plus stichst du positiv hervor!
Leo Arnoldigasse 4, 2734 Puchberg am Schneeberg
Puchberg am Schneeberg, Leo Arnoldigasse 4.
Die Ortschaft selbst bietet eine ausgezeichnete Infrastruktur. Eine Vielfalt an Geschäften, sowie Ärzte und eine Apotheke decken den täglichen Bedarf des Alltages harmonisch ab . Natürlich darf hier ein Kaffeehaus nicht fehlen.
In der Nähe
Puchberg/Schneeberg Burggasse363 m
350
Puchberg/Schneeberg Bahnhof461 m
350
N, R

Laufende Kosten

Monatliche Kosten656,98 €
Preis pro m²12,68 €
Kalkuliert von ImmoScout24
Gesamtbelastung Netto597,26 €
USt. Gesamtbelastung59,72 €
Miete352,62 €
USt. Miete35,26 €
Betriebskosten244,64 €
USt. Betriebskosten24,46 €

Einmalige Kosten

Finanzierungsbeitrag5.469,54 €
Preisinformation: Der Finanzierungsbeitrag wird nach Aufkündigung wieder rückerstattet. Abzgl. 1% pro Jahr.

Hallo neues Zuhause!

Kenne deine Chance mit Plus

Online seit120Gesehen80Kontaktiert40Gemerkt63
Plus locked

Merkmale

Verfügbar ab sofort
unbefristet
Wohnung
Baujahr 2013, Neubau, Gepflegt, Massivbauweise, Niedrigenergiebauweise, Unterkellert, Walmdach, Grundstück voll erschlossen, Laminat, Fliesen, Insgesamt 3 Etagen
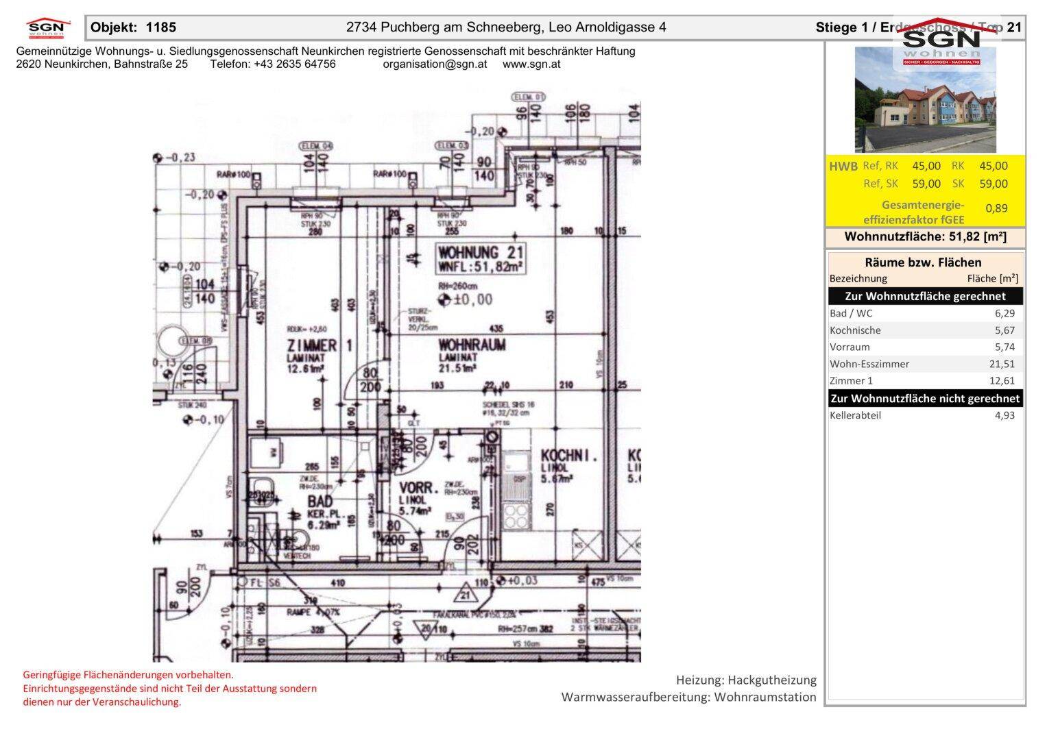
Wohnfläche 51,82 m²
Garten
2 Zimmer
Kellerfläche 4,93 m², 1 Badezimmer, 1 Toilette
Fahrradabstellraum

Ausstattung

Offene Küche, Dusche, Gartennutzung, Wäschetrockenraum
Barrierefrei, Seniorengerecht, Personenaufzug

Heizung

ZentralheizungAlternativSolarPellet
Heizwärmebedarf (HWB)
59 kWh/(m²a)
C

Beschreibung

Seniorenwohnhaus Puchberg

Diese barrierefreie 2-Zimmerwohnung befindet sich im Erdgeschoss des Gebäudes und bietet auf knapp 52 m² Wohnfläche ein sehr geräumiges Wohn- Esszimmer mit einer Kochnische, ein separates Schlafzimmer mit 2 Fenster, ein Badezimmer mit Dusche & WC sowie einen Waschmaschinenanschluss und geräumiges Vorzimmer. Des Weiteren ist der Wohnung ein knapp 5 m² großes Kellerabteil zugeordnet.

Ein paar Eckdaten im Überblick: SAT-Anlage, Personenlift, Kunststofffenster, Innenjalousien, Zentrale-Hackgutheizung, Solar-Kollektoren, kontrollierte Wohnraumlüftung, Gegensprechanlage, Barrierefrei, Lage: Ruhige Seitengasse.

Eine nette Wohngemeinschaft und eine gute Infrastruktur machen dieses Zuhause zum Wohlfühlort.

Ein paar Eckdaten im Überblick:

  • SAT-Anlage
  • Personenlift
  • Kunststofffenster
  • Innenjalousien
  • Zentrale Hackgutheizung
  • Solar-Kollektoren
  • kontrolliere Wohnraumlüftung
  • Gegensprechanlage
  • Barrierefrei
  • Lage: Ruhige Seitengasse
  • Befristeter Mietvertrag auf 3 Jahre (unbefristet auf Anfrage möglich)
  • Da speziell Wohnungen im Sinne des betreuten Wohnens gut gefördert werden, stehe ich Ihnen gerne für Fragen bezüglich Wohnzuschuss zur Verfügung. 

Eine nette Wohngemeinschaft und eine gute Infrastruktur machen dieses Zuhause zum Wohlfühlort.

 

Infrastruktur / Entfernungen

Gesundheit
Arzt <450m
Apotheke <450m

Kinder & Schulen
Kindergarten <50m
Schule <675m

Nahversorgung
Supermarkt <300m
Bäckerei <275m

Sonstige
Geldautomat <425m
Bank <425m
Post <325m
Polizei <375m

Verkehr
Bus <175m
Bahnhof <125m

Angaben Entfernung Luftlinie / Quelle: OpenStreetMap


HINWEIS: sämtliche Vorschreibungskosten können sich aufgrund von Index, Betriebskosten und Darlehensanpassungen ändern. HINWEIS: sämtliche Vorschreibungskosten können sich aufgrund von Index, Betriebskosten und Darlehensanpassungen ändern.

Förderungskriterien

Geförderte Wohnungen dürfen nur an Förderungswürdige Personen vergeben werden.

Kriterien

  • österreichische Staatsbürger oder Gleichgestellte
  • die dringenden Wohnbedarf haben ( Nachweis über die Aufgabe des bisherigen Hauptwohnsitzes binnen 6 Monaten nach Bezug der geförderten Wohnung)
  • und folgende Obergrenzen des Familieneinkommens nicht übersteigen:

Personenanzahl  Jahreseinkommen

1 Person                               50.000,00 Eur

2 Personen  70.000,00 Eur

Jede weitere Person       10.000,00 Eur

Kontaktieren

GewerblichSGN Gemeinnützige Wohnungs- u. Siedlungsgenossenschaft Neunkirchen reg.Gen.m.b.H.Frau Daniela Lehner
Nachricht
Anrede
Vorname
Nachname
E-Mail
Telefon
Bewerbungsmappe
Erhöhe deine Chancen mit mehr Infos zu dir.
GewerblichSGN Gemeinnützige Wohnungs- u. Siedlungsgenossenschaft Neunkirchen reg.Gen.m.b.H.Frau Daniela Lehner
 Verifiziert von ImmoScout24
Bronze Partner