{"obj_regio1":"009","obj_regio2":"009001","obj_regio3":"009001014","obj_ityp":"2","obj_zipCode":"1140","obj_title":"WOHNEN BEIM CASINOPARK","obj_picture":"https://pictures.immobilienscout24.de/prod.www.immobilienscout24.at/pictureserver/loadPicture?q=70&id=012.0012000001E83hZ-1759225127-5a5dec0442f8436da49852f4c6c299a6","obj_exclusiveExpose":"true","obj_cwId":"ADS0017893508","obj_purchasePrice":518400,"obj_purchasePriceRange":"9","obj_baseRentRange":null}
  • Balkon
  • Terrasse

WOHNEN BEIM CASINOPARK

518.400
 
73 m²3 ZimmerBalkonTerrasse
Preis / m²7.102,34 €
Etage-
Projektstatus-
FAMILIENWOHNBAU gemeinnützige Bau- und Siedlungsges.m.b.H.Herr Alexander Breinhölder
Linzer Straße 286-288, 1140 Wien

Einmalige Kosten

Kaufpreis518.400 €
Kaufpreis pro m²7.102,34 €
Preisinformation: Betriebskosten, Verwaltung, Rücklage

Laufende Kosten

Monatliche Kosten243,4 €
USt. nicht enthalten

Hallo neues Zuhause!

Kenne deine Chance mit Plus

Online seit120Gesehen80Kontaktiert40Gemerkt63
Plus locked

Merkmale

Verfügbar ab Kurzfristig
Wohnung
Neubau, Erstbezug
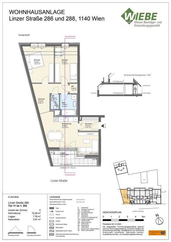
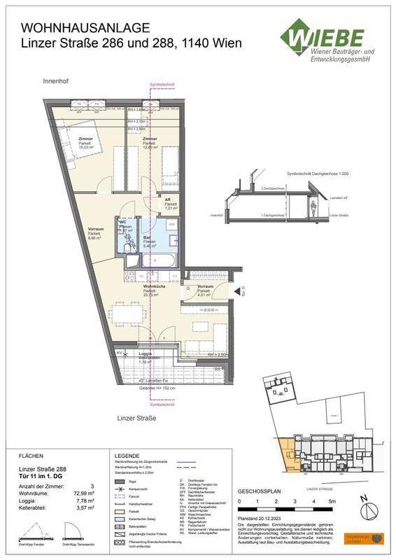
Wohnfläche 72,99 m²
Gesamtfläche 72,99 m²
1 Balkon
Loggia 7,78 m², Loggia, Terrasse
3 Zimmer
Kellerfläche 3,57 m², 2 Schlafzimmer, 1 Badezimmer, 1 Toilette

Heizung

Erdwärme
Heizwärmebedarf (HWB)
26.1 kWh/(m²a)
B
Gesamtenergieeffizienzfaktor (fGEE)
0.75
A++

Beschreibung

Erstbezug: Moderne Neubauwohnung mit hochwertiger Ausstattung


Raumaufteilung:



  • Vorraum

  • Wohnküche mit Ausgang auf die Loggia/Terrasse

  • Schlafzimmer

  • Zimmer

  • Abstellraum

  • Bad mit Badewann, Waschbecken, Handtuchwärmer, Waschmaschinenanschluss

  • extra WC mit Handwaschbecken


Die Niedrigenergiebauweise sorgt für leistbare moderate Heiz- und Warmwasserkosten:

Deckenheizung und -kühlung

Wärmepumpenanlage mit Geothermie (Tiefenbohrungen) und Sonnenkollektoren


Wohnen beim Casino-Park


Besichtigungen sind gegen Voranmeldung ab sofort möglich – wir freuen uns über Ihren Anruf!!!


Das Projekt

Die WIEBE Wiener Bauträger- und EntwicklungsgesmbH hat in der Linzer Straße eine neue Wohnhausanlage mit 34 Eigentumswohnungen samt dazugehöriger hauseigener Tiefgarage mit 23 Stellplätzen errichtet.


Wohnungsgrößen

2 - 4 Zimmer-Wohnungen, für jede Lebenslage ist etwas dabei, ideale Freiräume wie Loggia, Terrasse oder Garten.


Die Details

Ein straßenseitiges Wohngebäude mit 31 Wohnungen mit 2-4 Zimmern, zusätzlich wird ein Einzelhaus mit 4 Zimmern, sowie ein Doppelhaus mit zwei 4-Zimmer Maisonette-Wohnungen und integrierten Büros errichtet. Die Wohnungen werden Schlüsselfertig übergeben. Das Angebot wird den unterschiedlichsten Ansprüchen mehr als gerecht: geschmackvolle Ausstattung, die Verwendung von erstklassigen Materialien durchdachte Raumaufteilung und Parkettböden in den Wohnräumen. Sämtliche Wohnungen verfügen über attraktive Freiflächen wie Balkone oder Terrassen sowie nette Eigengärten im Erdgeschoß.


Stellplätze in der hauseigenen Tiefgarage können ab € 34.500,-- dazu gekauft werden.



Die Fenster erhalten einen außenliegenden Sonnenschutz in Form von Raffstores.

Ausnahme: Die straßenseitigen Fenster im 1. Dachgeschoß verfügen über eine Tuchbeschattung.

Die Bedienung erfolgt mittels Funkfernbedienung.


Die barrierefreie Erreichbarkeit der Wohnungen vom Keller bis zur jeweiligen Wohnetage wird durch die Liftanlage ermöglicht.


Die Infrastruktur

Das Projekt bietet eine sehr gute Infrastruktur durch Nahversorger des täglichen Bedarfs in der unmittelbaren Umgebung, zahlreiche Geschäfte entlang der Hütteldorfer Straße bzw. die Shoppingmall Auhofcenter mit seinem großen Angebot an Gastronomie und Entertainment; die Volksschule in der Hochsatzengasse liegt in Gehweite, höhere Schulen sind mit Öffis leicht zu erreichen.

Eine ausgezeichnete öffentliche Verkehrs-Anbindung ist durch die Straßenbahnlinie 52 gegeben, welche sich fast direkt vor der Haustüre befindet, ebenso die Autobuslinie 47A, die Sie zur U4-Station Ober St.Veit bringt. Ein paar Schritte weiter gelangt man zur Linie 49, die wiederum eine Anbindung an die U3 ermöglicht. Auch die A1-Autobahnauffahrt Auhof liegt nicht weit entfernt


Der Zeitplan:

Die Wohnungen können kurzfristig bezogen werden.


Energiedaten:
 Energieausweis: liegt vor
 HWB: 26,10
 HWB Klasse: B

Dokumente

Kann ich mir diese Immobilie leisten?

  • % Nebenkosten
    0 €/ Monat
  • % Zinsen
    0 €/ Monat
  • % Kaufpreis
    0 €/ Monat
*
pro Monat
* errechnete monatliche Kreditrate bei einem angenommenen Effektivzins von 1.6% p.a. Die Berechnung stellt einen unverbindlichen Richtwert dar und ist von der Bonität, Kredithöhe, Laufzeit, Verwendungszweck und Besicherung abhängig.

Kontaktieren

GewerblichFAMILIENWOHNBAU gemeinnützige Bau- und Siedlungsges.m.b.H.Herr Alexander Breinhölder
Nachricht
Anrede
Vorname
Nachname
E-Mail
Telefon
Ich bin Eigentümer:in einer Immobilie
GewerblichFAMILIENWOHNBAU gemeinnützige Bau- und Siedlungsges.m.b.H.Herr Alexander Breinhölder
 Verifiziert von ImmoScout24
Gold Partner