{"obj_regio1":"003","obj_regio2":"003017","obj_regio3":"003017025","obj_ityp":"7","obj_zipCode":"2351","obj_title":"Attraktive Büroflächen Wiener Neudorf zu mieten!","obj_picture":"https://pictures.immobilienscout24.de/prod.www.immobilienscout24.at/pictureserver/loadPicture?q=70&id=012.0012000001E3qzt-1729003451-441811d616b94d27bdc99550185f205c","obj_exclusiveExpose":"true","obj_cwId":"ADS0017892489","obj_purchasePrice":null,"obj_purchasePriceRange":null,"obj_baseRentRange":"1"}

    Attraktive Büroflächen Wiener Neudorf zu mieten!

    12,5 €/m²
     
    416 m²
    Modesta Real EstateFrau Antonia Vrcic, MA
    2351 Wiener Neudorf
    Die Lage bietet eine optimale Verkehrsanbindung an die Südautobahn A2 (Wr. Neudorf), S1 und A21 sowie A23 über
    Knoten Vösendorf. Der Flughafen Wien Schwechat ist innerhalb von 20 Minuten mit dem Auto zu erreichen. In der
    Tiefgarage stehen bis zu 74 Stellplätze zur Verfügung und auch im Freien sind Kundenparkplätze verfügbar. Ebenfalls gibt
    es ausreichend Fahrradstellplätze.

    Verkehrsanbindung:
    Bus: 2A & 2B (Mödling Bahnhof), 214 (Wiener Neudorf Buchenweg - Mödling Badstraße)
    Bahnhof: Wr. Neudorf Bahnhof
    Badner Bahn
    Autobahn: Ausfahrt Wr. Neudorf, A2

    Laufende Kosten

    Preis pro m²12,5 €
    Betriebskosten2,8 €

    Hallo neues Zuhause!

    Kenne deine Chance mit Plus

    Online seit120Gesehen80Kontaktiert40Gemerkt63
    Plus locked

    Merkmale

    Verfügbar ab ab sofort
    Bürogebäude
    Gesamtfläche 416,01 m²
    Bürofläche 416,01 m², Nutzfläche 416,01 m², Teilbar ab 143 m²

    Ausstattung

    Fernwärme
    Edelrohbau - individueller Ausbau möglich
    Flexible bzw. mieterspezifische Grundrissgestaltung
    Getrennte Sanitärbereiche
    Öffenbare Fenster
    Großzügige Liftanlagen
    Ausreichende Parkmöglichkeiten
    Kühlung über Fan Coils
    Terassenflächen

    Heizung

    Heizwärmebedarf (HWB)
    27,31 kWh kWh/(m²a)
    B
    Gesamtenergieeffizienzfaktor (fGEE)
    0,85
    A++

    Beschreibung

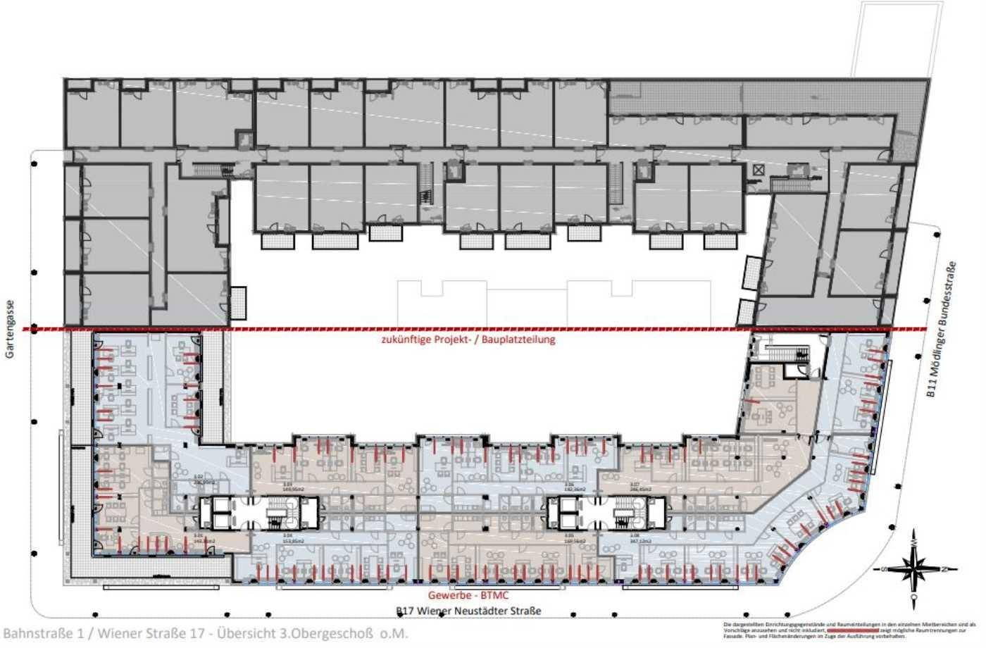
    Der Baustart des modernen Gewerbeobjektes in Wiener Neudorf erfolgte im November 2020. Das Bürohaus verfügt über 4 Obergeschosse an Büroflächen - insgesamt ca. 5.840,10 m. Im Erdgeschoss befinden sich 4 Geschäftslokale mit insgesamt ca. 2.103,10 m. Das Gewerbeobjekt eignet sich für einen Single Tenant, kann aber auch mieterspezifisch geteilt werden. Das Projekt ist grundsätzlich in 2 Bauteile gegliedert. Der östliche Bauteil umfasst die Büro- und Geschäftsflächen, der westliche Bauteil umfasst Wohnungen. Die beiden Bauteile werden sowohl Brandschutztechnisch, als auch in Bezug auf Haustechnikanlagen voneinander getrennt. Beide Bauteile werden mit einer Tiefgarage mit Mischnutzung miteinander verbunden. Die Übernahme der Büroeinheit erfolgt grundsätzlich im Edelrohbau. Falls eine weitere Ausbaustufe erwünscht ist, kann dies mit dem Eigentümer vereinbart werden. Die Renderings bieten schon einen Einblick in mögliche Ausbaustufen.

    Kontaktieren

    GewerblichModesta Real EstateFrau Antonia Vrcic, MA
    Nachricht
    Anrede
    Vorname
    Nachname
    E-Mail
    Telefon
    Bewerbungsmappe
    Erhöhe deine Chancen mit mehr Infos zu dir.
    GewerblichModesta Real EstateFrau Antonia Vrcic, MA
     Verifiziert von ImmoScout24
    Gold Partner