{"obj_regio1":"003","obj_regio2":"003016","obj_regio3":"003016051","obj_ityp":"0","obj_zipCode":"2122","obj_title":"Top 8 | Wohnen im idyllischen Weinviertel - 86 m²","obj_picture":"https://pictures.immobilienscout24.de/prod.www.immobilienscout24.at/pictureserver/loadPicture?q=70&id=012.0012000001E83wb-1768302185-6d0c35d44fdc4bb2abb5f96190407f71","obj_exclusiveExpose":"false","obj_cwId":null,"obj_purchasePrice":null,"obj_purchasePriceRange":null,"obj_baseRentRange":"7"}
  • Provisionsfrei
  • Parkplatz
  • Balkon
  • Terrasse

Top 8 | Wohnen im idyllischen Weinviertel - 86 m²

1.270
 
86 m²3 ZimmerBalkonTerrasse
Etage1
Befristung-
Kaution3 Bruttomonatsmieten
AC WOHNEN • RP Projektentwicklung GmbHHerr Friedrich Pacejka
2122 Ulrichskirchen
Mitten im Ortskern, aber ruhig, nahe Bahnhof, Kindergarten, Schloss, Kellergassen, Heurigen, optimale Verkehrsanbindung nach Wien

Laufende Kosten

Monatliche Kosten1.270,43 €
Preis pro m²14,85 €
Kalkuliert von ImmoScout24
Gesamtbelastung Netto1.154,93 €
USt. Gesamtbelastung115,5 €
Miete941,08 €
USt. Miete94,11 €
Betriebskosten213,85 €
USt. Betriebskosten21,39 €

Einmalige Kosten

Preisinformation: exkl. Kfz Abstellplatz 54,00 inkl. BK und Ust
Kaution: 3 Bruttomonatsmieten

Hallo neues Zuhause!

Kenne deine Chance mit Plus

Online seit120Gesehen80Kontaktiert40Gemerkt63
Plus locked

Merkmale

Wohnung
Neubau, Erstbezug, Niedrigenergiebauweise, Unterkellert, Flachdach, Parkett, Fliesen, 1. Etage
Wohnfläche 85,55 m²
1 Balkon 6,97 m²
Terrasse
3 Zimmer
Kellerfläche 1,95 m², 1 Badezimmer, 1 Toilette, Abstellraum
Tiefgarage
Fahrradabstellraum, 1 Garage, 1 Parkmöglichkeit

Ausstattung

Dusche
Rollstuhlgerecht, Personenaufzug

Heizung

ZentralheizungFußbodenheizungLuftwärmepumpe
Heizwärmebedarf (HWB)
37 kWh/(m²a)
B
Gesamtenergieeffizienzfaktor (fGEE)
0.72
A

Beschreibung

Mitten im Ortskern von Ulrichskirchen – Wiener Straße 2A – haben wir ein Niedrigenergiewohnhaus mit sechzehn Wohnungen in den Größen von 62 bis 123 m² Wohnnutzfläche gebaut. Durch die gut geplante Ausrichtung in den grünen Innenhof, sind die Wohnungen angenehm ruhig. Das nahegelegene, denkmalgeschützte Schloss mit seinem vorgelagerten Park sowie mehrere Kellergassen laden zu einem Spaziergang in der idyllischen Landschaft des Weinviertels ein. Hier kann man also getrost die Seele baumeln lassen.

Raumaufteilung und Ebene(n)   

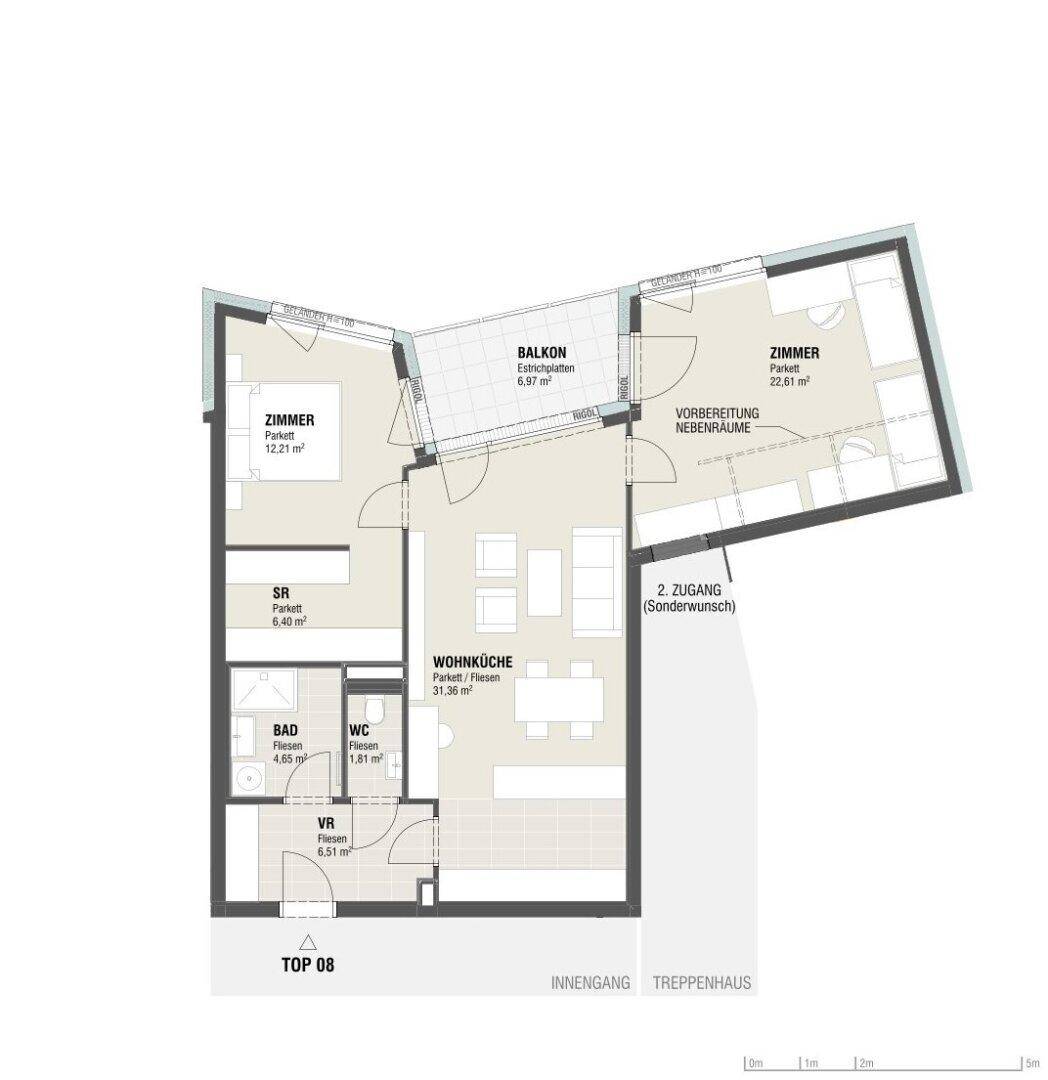
1. OG | ca. 86 m² Wohnnutzfläche | ca. 7 m² Terrasse | 3 Zimmer

  • Wohnzimmer mit Küche, zwei Schlafzimmer, Vorraum, Schrankraum, Bad, getrenntes WC
  • Kfz-Stellplatz in Tiefgarage (29) oder im Hof (4)
  • Kellerabteil im UG
  • Fahrradabstellplatz und Müllraum im Innenhof überdacht
  • Kinderwagenabstellraum im UG
  • Ein weiterer Stellplatz kann erworben werden.

Infrastruktur / Entfernungen

Gesundheit
Arzt <1.500m
Klinik <3.000m
Apotheke <3.000m

Kinder & Schulen
Schule <1.500m
Kindergarten <500m

Nahversorgung
Supermarkt <2.500m
Bäckerei <2.500m
Einkaufszentrum <7.000m

Sonstige
Bank <500m
Geldautomat <500m
Post <2.500m
Polizei <3.000m

Verkehr
Bus <500m
Autobahnanschluss <1.500m
Bahnhof <500m

Angaben Entfernung Luftlinie / Quelle: OpenStreetMap

Kontaktieren

GewerblichAC WOHNEN • RP Projektentwicklung GmbHHerr Friedrich Pacejka
Nachricht
Anrede
Vorname
Nachname
E-Mail
Telefon
Bewerbungsmappe
Erhöhe deine Chancen mit mehr Infos zu dir.
GewerblichAC WOHNEN • RP Projektentwicklung GmbHHerr Friedrich Pacejka
 Verifiziert von ImmoScout24
Bronze Partner