{"obj_regio1":"004","obj_regio2":"004001","obj_regio3":"004001002","obj_ityp":"2","obj_zipCode":"4030","obj_title":"** Am BIBERWEG ** - Wohnen im Herzen von Pichling!","obj_picture":"https://pictures.immobilienscout24.de/prod.www.immobilienscout24.at/pictureserver/loadPicture?q=70&id=012.0015I00000WDXLV-1768228021-61d2290e83704557b5276959615737af","obj_exclusiveExpose":"false","obj_cwId":null,"obj_purchasePrice":200335,"obj_purchasePriceRange":"5","obj_baseRentRange":null}
  • Dachgeschosswohnung
  • Balkon

** Am BIBERWEG ** - Wohnen im Herzen von Pichling!

200.335
 
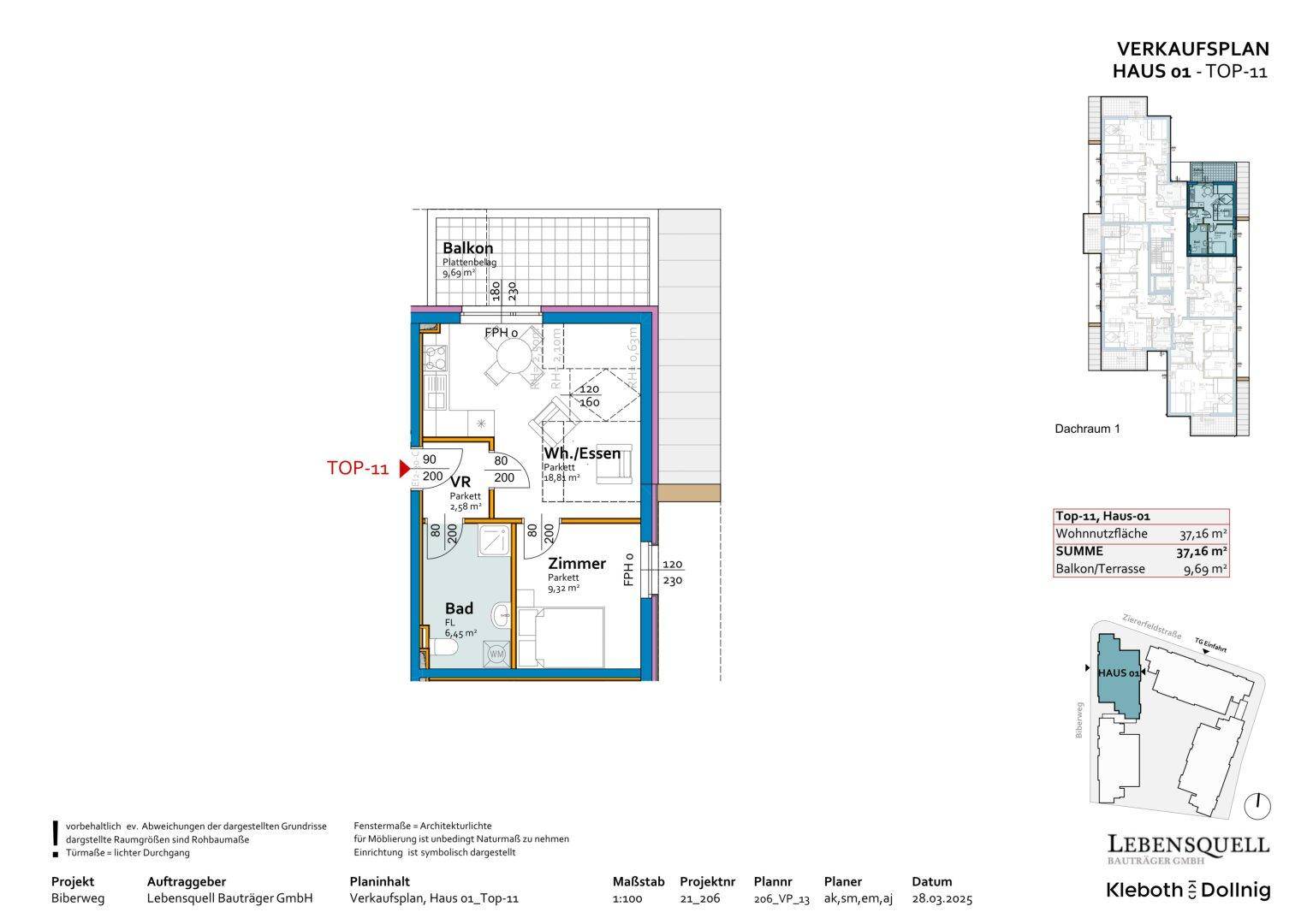
37 m²2 ZimmerBalkon 10 m²
Preis / m²5.391,15 €
Etage2
Projektstatus-
HIMA Immobilien GmbHFrau Bianca Bauer
4030 Linz

Einmalige Kosten

Kaufpreis200.335 €
Kaufpreis pro m²5.391,15 €
Kalkuliert von ImmoScout24

Hallo neues Zuhause!

Kenne deine Chance mit Plus

Online seit120Gesehen80Kontaktiert40Gemerkt63
Plus locked

Merkmale

Dachgeschosswohnung
Baujahr 2026, Neubau, Unterkellert, 2. Etage, Insgesamt 4 Etagen
Wohnfläche 37,16 m²
Balkon 9,69 m²
Balkon
2 Zimmer
Kellerfläche 4,97 m²

Ausstattung

Barrierefrei

Beschreibung

 Exklusives Wohnprojekt "BIBERWEG"  in Top-Lage im Herzen von Pichling
    62 moderne Wohneinheiten | 33 – 143 m² |  Design & Living

In bester Lage, einer ruhigen Siedlungsgegend in Pichling, entsteht das architektonisch ansprechende Wohnprojekt "BIBERWEG".
Das Projekt besteht insgesamt aus vier Häusern, welche unterirdisch durch eine gemeinsame Tiefgarage verbunden sind.

In Haus 1 und Haus 2 entstehen insgesamt 32 Eigentumswohnungen.
Haus 3 und Haus 4 werden als Mietwohnungen errichtet und gelangen zu einem späteren Zeitpunkt in die Vermarktung (Frühling 2027)

Was Sie erwartet

  • TOP-Lage - im Herzen von Pichling, perfekte Infrastruktur
  • Ansprechendes Erscheinungsbild - Architektur by Kleboth & Dollnig 
  • Freiflächen - die Wohnungen verfügen über großzügige Gärten im EG und geräumige Terrassen/Balkone in den oberen Etagen
  • Flexible Wohnungsgrößen - von der kleinen Starterwohnung bis zur geräumigen Dachgeschoßwohnung
  • Tiefgarage - ausreichend Stellplätze in der Tiefgarage verfügbar
  • Nachhaltiges Heizsystem - Wärmepumpe kombiniert PV-Anlage

Alle Wohnungen sind hochwertig & modern ausgestattet mit Echtholzböden, Großformatfliesen und Sonnenschutz.
Egal ob Single, Pärchen oder Familien - dieses Projekt bietet für jeden das Passende. 

Jetzt anfragen & Traumwohnung sichern!

Der Baubeginn ist bereits erfolgt, die Fertigstellung ist voraussichtlich im 4. Quartal 2027 geplant.
Die Errichtung erfolgt nach den Vorgaben des Bauträgervertragsgesetzes.
Die Wohnungen sind freifinanziert.

Symbole und Grafiken können abweichen.

Wir weisen darauf hin, dass zwischen dem Vermittler und dem zu vermittelnden Dritten ein familiäres oder wirtschaftliches Naheverhältnis besteht.

Der Vermittler ist als Doppelmakler tätig.


Infrastruktur / Entfernungen

Gesundheit
Arzt <1.000m
Apotheke <1.000m
Klinik <3.000m
Krankenhaus <6.500m

Kinder & Schulen
Kindergarten <500m
Schule <1.000m
Universität <7.000m
Höhere Schule <8.000m

Nahversorgung
Supermarkt <1.000m
Bäckerei <1.000m
Einkaufszentrum <3.500m

Sonstige
Bank <1.000m
Geldautomat <1.000m
Post <1.000m
Polizei <1.000m

Verkehr
Bus <500m
Straßenbahn <1.000m
Bahnhof <1.500m
Autobahnanschluss <4.500m
Flughafen <6.000m

Angaben Entfernung Luftlinie / Quelle: OpenStreetMap

Kann ich mir diese Immobilie leisten?

  • % Nebenkosten
    0 €/ Monat
  • % Zinsen
    0 €/ Monat
  • % Kaufpreis
    0 €/ Monat
*
pro Monat
* errechnete monatliche Kreditrate bei einem angenommenen Effektivzins von 1.6% p.a. Die Berechnung stellt einen unverbindlichen Richtwert dar und ist von der Bonität, Kredithöhe, Laufzeit, Verwendungszweck und Besicherung abhängig.

Kontaktieren

GewerblichHIMA Immobilien GmbHFrau Bianca Bauer
Nachricht
Anrede
Vorname
Nachname
E-Mail
Telefon
Ich bin Eigentümer:in einer Immobilie
Bewerbungsmappe
Erhöhe deine Chancen mit mehr Infos zu dir.
GewerblichHIMA Immobilien GmbHFrau Bianca Bauer
 Verifiziert von ImmoScout24
Bronze Partner