{"obj_regio1":"003","obj_regio2":"003015","obj_regio3":"003015022","obj_ityp":"0","obj_zipCode":"3671","obj_title":"3-Zimmerwohnung im 2.OG mit Balkon","obj_picture":"https://pictures.immobilienscout24.de/prod.www.immobilienscout24.at/pictureserver/loadPicture?q=70&id=012.0012000001gOxpJ-1771090434-484eb7cac25943518a2e85af680bf017","obj_exclusiveExpose":"false","obj_cwId":null,"obj_purchasePrice":null,"obj_purchasePriceRange":null,"obj_baseRentRange":"4"}
  • Genossenschaft
  • Provisionsfrei
  • Parkplatz
  • Balkon

3-Zimmerwohnung im 2.OG mit Balkon

575
 
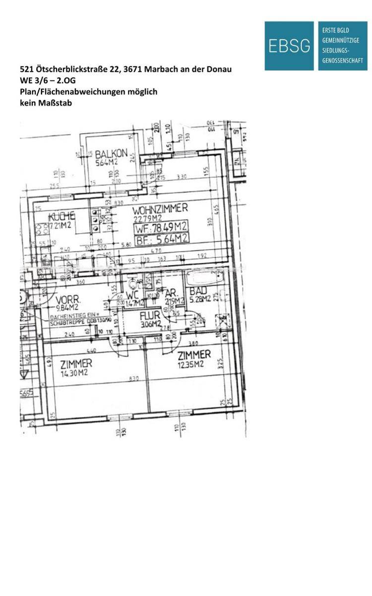
78 m²3 ZimmerBalkon
Finanzierungsbeitrag14.693 €
Ablöse-
Befristung-
EBSGDominik Bauer
Ötscherblickstraße 22 WE 3/6, 3671 Marbach an der Donau
In der Nähe
Krummnußbaum an der Donauuferbahn Kriegerdenkmal411 m
785, 788

Laufende Kosten

Miete575 €
Preis pro m²7,37 €
Kalkuliert von ImmoScout24

Einmalige Kosten

Finanzierungsbeitrag14.693 €

Hallo neues Zuhause!

Kenne deine Chance mit Plus

Online seit120Gesehen80Kontaktiert40Gemerkt63
Plus locked

Merkmale

Verfügbar ab 2026-04-01
Wohnung
2. Etage
Wohnfläche 78 m²
1 Balkon
3 Zimmer
Garage
1 Parkmöglichkeit

Beschreibung

Verfügbar ab 01.04.2026
Besichtigung nach telefonischer Vereinbarung!

Finanzierungsbeitrag: € 14693.42

Kontaktieren

GewerblichEBSGDominik Bauer
Nachricht
Anrede
Vorname
Nachname
E-Mail
Telefon
Bewerbungsmappe
Erhöhe deine Chancen mit mehr Infos zu dir.
GewerblichEBSGDominik Bauer
 Verifiziert von ImmoScout24
Silber Partner