{"obj_regio1":"003","obj_regio2":"003016","obj_regio3":"003016033","obj_ityp":"3","obj_zipCode":"2130","obj_title":"Seltene Gelegenheit in Mistelbach - sanierungsbedürftiges Wohnhaus auf ehemaligen Presshaus","obj_picture":"https://pictures.immobilienscout24.de/prod.www.immobilienscout24.at/pictureserver/loadPicture?q=70&id=012.001P900000Gknsb-1758537851-6464f7bdd0af4f16b0899498add3e1be","obj_exclusiveExpose":"false","obj_cwId":null,"obj_purchasePrice":149000,"obj_purchasePriceRange":"3","obj_baseRentRange":null}
  • Parkplatz
  • Einfamilienhaus

Seltene Gelegenheit in Mistelbach - sanierungsbedürftiges Wohnhaus auf ehemaligen Presshaus

149.000
 
175 m²4 Zimmer
Preis / m²851,43 €
Grundstücksfläche362 m²
Baujahr1950
JA Maklerei GmbHFrau Jennifer Barna
2130 Mistelbach

Einmalige Kosten

Kaufpreis149.000 €
Kaufpreis pro m²851,43 €
Kalkuliert von ImmoScout24
Provision: 5.364,00 € inkl. 20% USt.

Hallo neues Zuhause!

Kenne deine Chance mit Plus

Online seit120Gesehen80Kontaktiert40Gemerkt63
Plus locked

Merkmale

Einfamilienhaus
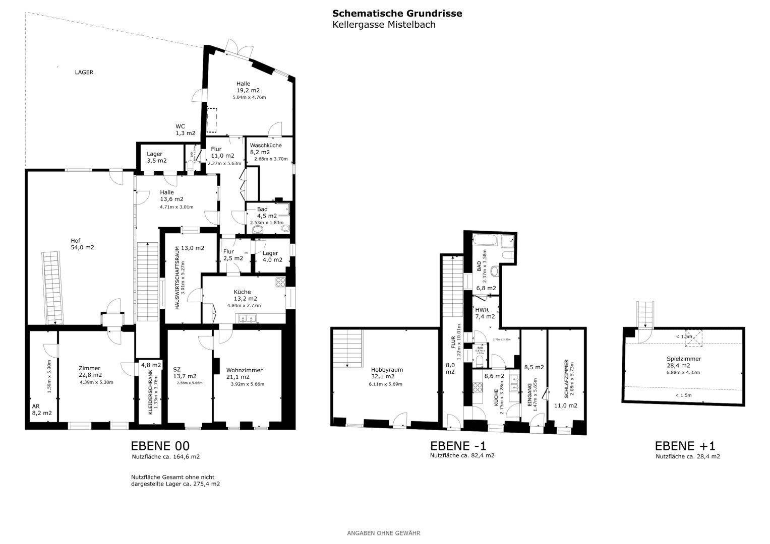
Baujahr 1950, Neubau, Renovierungsbedürftig, Unterkellert, Satteldach, Dielen, Stein, Fliesen
Wohnfläche 175 m²
Nutzfläche 51 m², Grundstücksfläche 362 m²
4 Zimmer
1 Badezimmer, 1 Toilette
Parkplatz
1 Parkplatz, 1 Parkmöglichkeit

Ausstattung

Fenster, Rolläden

Heizung

OfenheizungEtagenheizungZentralheizungGasElektro
Heizwärmebedarf (HWB)
348 kWh/(m²a)
G
Gesamtenergieeffizienzfaktor (fGEE)
5.25
G

Beschreibung

Hallo und herzlich Willkommen bei der JA Maklerei :)

Wir freuen uns, Ihnen dieses interessante Objekt DIREKT in Mistelbach anbieten zu dürfen.
Bei dieser Liegenschaft handelt es sich um ein echtes Kellerstöckl – und damit um eine Rarität!
Solche Objekte sind im Weinviertel nur sehr selten am Markt zu finden! Hier wurde in den 1950er Jahren aufgestockt & ausgebaut und zwei Wohneinheiten geschaffen.

Und gleich zu den Fakten:

Dieses renovierungsbedürftige Haus, mit ca. 174m² Wohnfläche, wurde um 1950 errichtet und bietet sehr viel Potential und Möglichkeiten:
• ) 4 Zimmern + 2 Küchen 
• ) 2 Badezimmer + 2 WCs
• ) 2 Kellerröhren (straßenseitig begehbar)
• ) einem kleinen Innenhof zum genießen
• ) extra Zufahrt zum Objekt
• ) 2 Garagen

Heizung: Die Liegenschaft wird mittels Gaskonvektoren beheizt.

Das Grundstück ist ca. 360 m² groß und liegt in Zentrumsnähe.
Besonders zu erwähnen ist der ruhige Park direkt hinter der Liegenschaft der zum verweilen einlädt und für Ruhe sorgt.

Die Liegenschaft bietet Ihnen außerdem noch:
• ) eine Parkmöglichkeit 
• ) zwei Garagen
• ) Nebengebäude für Hobbys, Bastler, usw.

Zusammengefasst handelt es sich hier um eine herzhafte Liegenschaft, für alle, die bereit sind mit ein bisschen Liebe sich den Traum von Eigenheim erfüllen zu wollen.

Nutzen Sie die Möglichkeit und vereinbaren Sie einen Besichtigungstermin, um sich persönlich von der Liegenschaft überzeugen zu können.

Wir freuen uns auf Ihre Anfrage, gerne auch per WhatsApp :)

Kaufpreis: 149.000,-

Lage:
Die Bezirkshauptstadt Mistelbach zeichnet sich durch rund 12.000 Einwohner aus, die Stadt liegt nur ca. 35 Autominuten nördlich von Wien und bietet eine perfekte Kombination aus urbaner Infrastruktur und ländlicher Lebensqualität.
Neben vielfältigen Einkaufsmöglichkeiten, Schulen und medizinischer Versorgung ist Mistelbach bekannt für ein reges Kulturleben, z. B. mit dem MAMUZ Museum, und zahlreiche Heurige und Feste. Durch die gute Anbindung an die S-Bahn und die Autobahn A5 ist Mistelbach ein beliebter Wohn- und Wirtschaftsstandort in der Region.

Sonstiges:

Finanzierungshilfe wird geboten!

Alle Angaben sind ohne Gewähr und basieren ausschließlich auf Informationen, die uns von dem Verkäufer übermittelt wurden. Eine Weitergabe der übermittelten Daten an Dritte ist nicht gestattet. Da wir diese Informationen nur weitergeben, wird unsererseits für die Richtigkeit, Vollständigkeit und Aktualität der Objektinformationen keinerlei Haftung übernommen.

Bitte beachten Sie, dass wir aufgrund der Nachweispflicht gegenüber dem Eigentümer nur Anfragen mit vollständigen Kontaktdaten bearbeiten können.

Haben auch Sie eine Immobilie zu verkaufen? Dann sind wir Ihr Ansprechpartner mit dem Service, der weit über die übliche Vermarktung hinausgeht.

Bei uns bekommen Sie, dank unserem breit gefächerten Netzwerk an Professionisten alles aus einer Hand:
• ) Entrümpelung & Reinigung der Liegenschaft
• ) Aufbereitung von Garten & Grünflächen
• ) Home Staging
• ) uvm.

Sie erreichen uns unter: Anbieter kontaktieren (gerne auch per WhatsApp)

Wir weisen darauf hin, dass zwischen dem Vermittler und dem zu vermittelnden Dritten ein familiäres oder wirtschaftliches Naheverhältnis besteht.

Der Vermittler ist als Doppelmakler tätig.


Infrastruktur / Entfernungen

Gesundheit
Arzt <500m
Apotheke <500m
Klinik <1.000m
Krankenhaus <1.000m

Kinder & Schulen
Schule <1.000m
Kindergarten <1.000m

Nahversorgung
Supermarkt <500m
Bäckerei <500m

Sonstige
Bank <500m
Geldautomat <500m
Polizei <500m
Post <1.000m

Verkehr
Bus <500m
Bahnhof <1.000m
Autobahnanschluss <4.500m

Angaben Entfernung Luftlinie / Quelle: OpenStreetMap

Kann ich mir diese Immobilie leisten?

  • % Nebenkosten
    0 €/ Monat
  • % Zinsen
    0 €/ Monat
  • % Kaufpreis
    0 €/ Monat
*
pro Monat
* errechnete monatliche Kreditrate bei einem angenommenen Effektivzins von 1.6% p.a. Die Berechnung stellt einen unverbindlichen Richtwert dar und ist von der Bonität, Kredithöhe, Laufzeit, Verwendungszweck und Besicherung abhängig.

Kontaktieren

GewerblichJA Maklerei GmbHFrau Jennifer Barna
Nachricht
Anrede
Vorname
Nachname
E-Mail
Telefon
Ich bin Eigentümer:in einer Immobilie
GewerblichJA Maklerei GmbHFrau Jennifer Barna
 Verifiziert von ImmoScout24
Bronze Partner