{"obj_regio1":"001","obj_regio2":"001007","obj_regio3":"001007013","obj_ityp":"14","obj_zipCode":"7100","obj_title":"807 m² großes Baugrundstück in ruhiger Wohnlage von Neusiedl am See","obj_picture":"https://pictures.immobilienscout24.de/prod.www.immobilienscout24.at/pictureserver/loadPicture?q=70&id=012.0012000001E849s-ceaf1517a2804c02baf2fcb853a7e45d","obj_exclusiveExpose":"false","obj_cwId":null,"obj_purchasePrice":363150,"obj_purchasePriceRange":"7","obj_baseRentRange":null}

    807 m² großes Baugrundstück in ruhiger Wohnlage von Neusiedl am See

    363.150
     
    807 m²
    Realitäten Ehrengruber GmbHGerhard Böhm
    7100 Neusiedl am See
    Die Lage am Ortsrand von Neusiedl am See bietet Ruhe und Erholung, gleichzeitig kurze Wege zum Zentrum, zum See, zu Einkaufsmöglichkeiten sowie eine sehr gute Verkehrsanbindung. Ein ideales Grundstück für alle, die Lebensqualität, Naturnähe und moderne Wohnkonzepte verbinden möchten.

    Einmalige Kosten

    Kaufpreis363.150 €
    Kaufpreis pro m²450 €
    Provision: 3 % vom Kaufpreis zzgl. 20 % gesetzl. USt.

    Hallo neues Zuhause!

    Kenne deine Chance mit Plus

    Online seit120Gesehen80Kontaktiert40Gemerkt63
    Plus locked

    Merkmale

    Grundstück
    Grundstücksfläche 807 m²

    Beschreibung

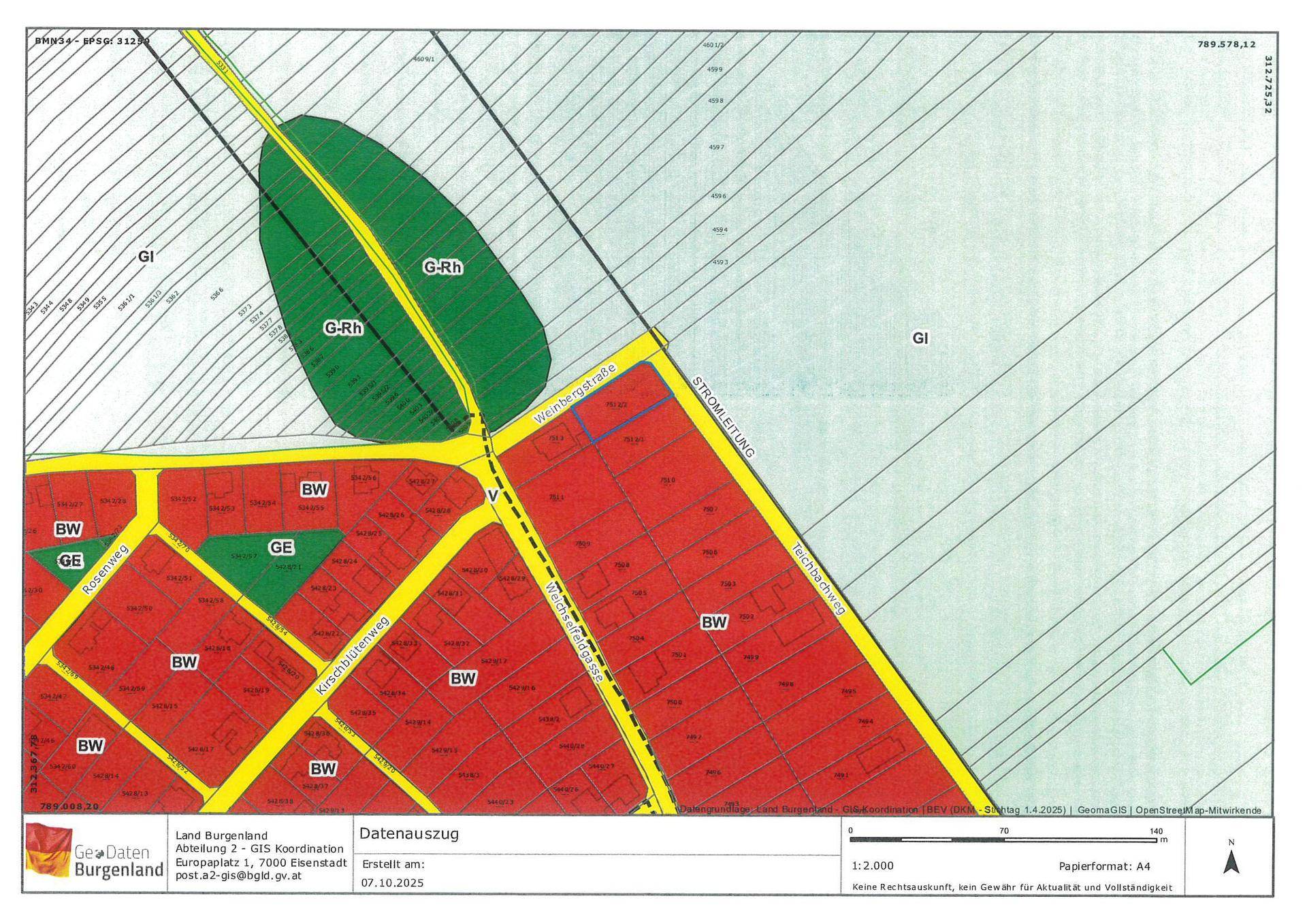
    Zum Verkauf steht ein 807 m² großes, vollständig erschlossenes Baugrundstück in einer ruhigen und attraktiven Wohngegend von Neusiedl am See. Die Süd-West-Ausrichtung bietet ganztägig Sonne und ideale Bedingungen für ein lichtdurchflutetes Zuhause.

    Vom 1. Obergeschoss aus wäre ein Seeblick möglich – perfekt für die Planung eines Hauses mit großflächigen Fensterfronten oder einer Panorama-Terrasse.

    Die Widmung lautet BW – Bauland Wohnen, was Ihnen vielseitige Nutzungsmöglichkeiten für ein Wohnobjekt eröffnet. Die offene bzw. halboffene Bauweise ermöglicht flexible architektonische Gestaltung.
    Der Teilbebauungsplan sowie der Verordnungstext liegen vor und sind im Exposé enthalten.

    Dokumente

    Kann ich mir diese Immobilie leisten?

    • % Nebenkosten
      0 €/ Monat
    • % Zinsen
      0 €/ Monat
    • % Kaufpreis
      0 €/ Monat
    *
    pro Monat
    * errechnete monatliche Kreditrate bei einem angenommenen Effektivzins von 1.6% p.a. Die Berechnung stellt einen unverbindlichen Richtwert dar und ist von der Bonität, Kredithöhe, Laufzeit, Verwendungszweck und Besicherung abhängig.

    Kontaktieren

    GewerblichRealitäten Ehrengruber GmbHGerhard Böhm
    Nachricht
    Anrede
    Vorname
    Nachname
    E-Mail
    Telefon
    Ich bin Eigentümer:in einer Immobilie
    Bewerbungsmappe
    Erhöhe deine Chancen mit mehr Infos zu dir.
    GewerblichRealitäten Ehrengruber GmbHGerhard Böhm
     Verifiziert von ImmoScout24
    Silber Partner