{"obj_regio1":"003","obj_regio2":"003017","obj_regio3":"003017003","obj_ityp":"1","obj_zipCode":"2384","obj_title":"Ruhiger Bungalow mit Fernblick am Sperrberg","obj_picture":"https://pictures.immobilienscout24.de/prod.www.immobilienscout24.at/pictureserver/loadPicture?q=70&id=012.0012000001E3qnx-e96df8d502b94b7facaf13bf23f8c939","obj_exclusiveExpose":"false","obj_cwId":null,"obj_purchasePrice":null,"obj_purchasePriceRange":null,"obj_baseRentRange":"7"}
  • Provisionsfrei
  • Parkplatz
  • Einfamilienhaus
  • Terrasse
  • Garten
  • Möbliert

Ruhiger Bungalow mit Fernblick am Sperrberg

1.200
 
92 m²3 ZimmerGartenTerrasse
Preis / m²13,04 €
Grundstücksfläche-
Baujahr1963
Reischel Immobilien GmbHHerr Sasa Nika
Immobilie hat viele AnfragenMit Plus stichst du positiv hervor!
2384 Breitenfurt bei Wien
• Bus 254 nach Liesing, dort haben Sie die S-Bahn, Regionalzüge und weitere Busse
• Billa Plus, Hofer und viele Geschäfte in Breitenfurt Ost (ca. 10 Busminuten)
• Kindergarten in Gehweite
• Volkschule in Breitenfurt Ost, weitere Schulen in Wien Liesing mit dem Bus
- Apotheke und Ärztezentrum in Breitenfurt Ost

Laufende Kosten

Monatliche Kosten1.200 €
Preis pro m²13,04 €
Kalkuliert von ImmoScout24
Gesamtbelastung Netto1.184,92 €
USt. Gesamtbelastung15,08 €
Miete1.034,17 €
Betriebskosten150,75 €

Einmalige Kosten

Kaution4.800 €

Hallo neues Zuhause!

Kenne deine Chance mit Plus

Online seit120Gesehen80Kontaktiert40Gemerkt63
Plus locked

Merkmale

Verfügbar ab sofort
Einfamilienhaus
Baujahr 1963, Parkett, Fliesen
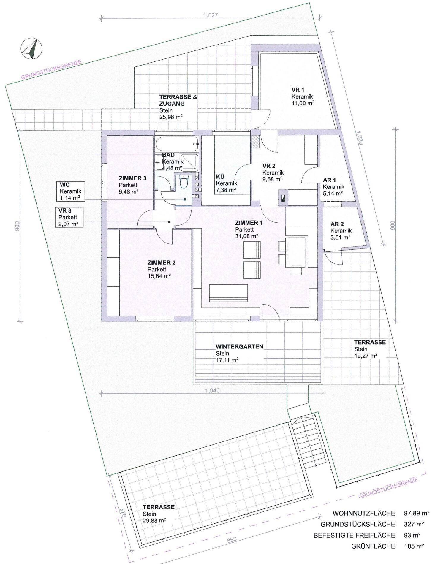
Wohnfläche 92,05 m²
Nutzfläche 108,35 m², Gartenfläche 105 m²
3 Terrassen
Garten, Terrasse, Wintergarten
3 Zimmer
1 Toilette, Abstellraum
Garage
1 Garage, 1 Parkmöglichkeit

Ausstattung

Vollmöbliert, Standardausstattung, Gartennutzung
• Einbauküche
• Parkettboden, Fliesen
• Kachelofen (mit Holz beheizbar)
• zusätzlich Nachtstrom-Elektroheizung
• Elektrischer Durchlauferhitzer für Warmwasser
• 3-fach-isolierverglaste Holzfenster mit Außenjalousien
• elektrische Markise im Wintergarten

• pflegeleichter Garten (ca. 105m² Grünfläche)
• 3 Terrassen (ca. 75,13m²)
• Wintergarten (ca. 17,11m²)
- Garage (ca. 15,75m²)

Heizung

OfenheizungElektro
Heizwärmebedarf (HWB)
187.40 kWh/(m²a)
E
Gesamtenergieeffizienzfaktor (fGEE)
2.45
D

Beschreibung

Dieser schöne Bungalow liegt am Anfang des Sperrbergs in Breitenfurt West.
Besonders schön ist die Aussicht, der herrliche Fernblick ins Grüne und die ruhige Lage.

Es ist ideal für Naturliebhaber, rund um sind schöne Spazierwege, Wald und Wiesen. Sie leben hier schon fast am Land, gemütlich und ruhig. Trotzdem ist es nahe zu Wien, die Bus Haltestelle ist nicht weit und alle wichtigen Geschäfte sind im nahegelegenen Breitenfurt Ost zu finden. Mit dem Auto, oder mit dem Rad, ist alles ganz schnell erreicht.

Das Haus hat ein großes Wohnzimmer und einen Wintergarten Richtung Südosten. Ein grüner Kachelofen sorgt für urgemütliche und günstige Wärme, als Zusatzheizung haben Sie noch eine Nachtspeicherheizung (elektrisch).

Zwei Zimmer sind ideal als Schlaf- und Kinderzimmer.

Der Eingangsbereich mit Fenster ist so groß wie ein 4tes Zimmer und kann zusätzlich auch gut für Home Office benützt werden.

Die Küche ist ebenfalls komplett ausgestattet.

Mehrere Nebenräume sind ebenerdig zugänglich und perfekt für alles, was Sie aufbewahren wollen.

Auch eine Garage und eine Werkstatt gehören dazu. Es ist viel zusätzlicher Platz vorhanden.

Die jetzige Einrichtung ist im Preis inkludiert, Sie können sie aber gerne gegen Ihre eigenen Möbel tauschen. Dekorieren oder ergänzen Sie modern, dann bekommt das Haus Ihren persönlichen Charakter. Leben und Arbeiten in einem Haus ist viel schöner, als in einer Wohnung ohne Freifläche.

Einzigartig sind die drei getrennten, nach unterschiedlichen Himmelsrichtungen orientierten, Terrassen und die Rasenfläche. Suchen Sie sich Ihren Wohlfühlplatz je nach Sonneneinfall. Laden Sie Freunde zum Grillen ein, oder verbringen Sie gemütliche Wochenenden mit Ihrer Familie.
Die monatliche Gesamtmiete beträgt € 1.200,- inkl. BK und MwSt., exkl. Heizung, WW und Strom.
(Nettomiete € 1.034,17; BK € 150,75; 10% MwSt. € 15,08).

Die Mietdauer ist auf 5 Jahre befristet, gerne mit Verlängerungsmöglichkeit.
Haustiere sind auf Anfrage erlaubt.

Einmal- und Nebenkostenübersicht:
Kaution Wohnung: € 4.800,-
Keine Ablöse!

Rufen Sie uns an und vereinbaren Sie Ihren persönlichen Besichtigungstermin mit Herr Sasa Nika unter Anbieter kontaktieren.

Kontaktieren

GewerblichReischel Immobilien GmbHHerr Sasa Nika
Nachricht
Anrede
Vorname
Nachname
E-Mail
Telefon
GewerblichReischel Immobilien GmbHHerr Sasa Nika
 Verifiziert von ImmoScout24
Bronze Partner