{"obj_regio1":"003","obj_regio2":"003015","obj_regio3":"003015033","obj_ityp":"0","obj_zipCode":"3380","obj_title":"Helle 2-Zimmer-Wohnung mit Loggia in Mitten von Pöchlarn","obj_picture":"https://pictures.immobilienscout24.de/prod.www.immobilienscout24.at/pictureserver/loadPicture?q=70&id=012.0012000001E3qym-1762855013-346f749426bc46b6bb89042624434785","obj_exclusiveExpose":"true","obj_cwId":"ADS0017892420","obj_purchasePrice":null,"obj_purchasePriceRange":null,"obj_baseRentRange":"5"}
  • Genossenschaft
  • Provisionsfrei

Helle 2-Zimmer-Wohnung mit Loggia in Mitten von Pöchlarn

711
 
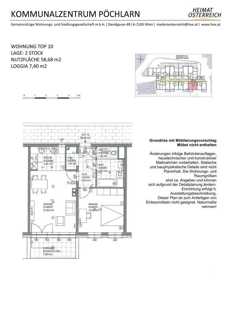
59 m²2 ZimmerLoggia 7 m²
Finanzierungsbeitrag26.628,16 €
Ablöse-
Befristung-
Heimat Österreich gemeinnützige Wohnungs- und Siedlungsgesellschaft m.b.H.Frau Zehra Yazgi
Thörringplatz, 3380 Pöchlarn
Die gegenständliche Liegenschaft befindet sich direkt im Zentrum von Pöchlarn. Pöchlarn liegt direkt an der Donau, ca. 100km westlich von Wien. Die Stadtgemeinde verfügt über eine gute Verkehrsanbindung, sowohl an die Westautobahn (A1) als auch an die Westbahnstrecke. Pöchlarn ist bekannt für seine malerische Altstadt. Besonders sehenswert ist die Pfarrkirche Maria Himmelfahrt. Genauso sehenswert ist jedoch das Freizeitangebot in Pöchlarn – egal ob Fischen, Wandern, Radfahren oder Tennis – ein breites Freizeitangebot wird in Pöchlarn großgeschrieben

Laufende Kosten

Miete710,7 €
Preis pro m²12,11 €
Kalkuliert von ImmoScout24

Einmalige Kosten

Finanzierungsbeitrag26.628,16 €

Hallo neues Zuhause!

Kenne deine Chance mit Plus

Online seit120Gesehen80Kontaktiert40Gemerkt63
Plus locked

Merkmale

Verfügbar ab 01.04.2025
unbefristet
Wohnung
Baujahr 2014, Neubau, Gepflegt, Unterkellert, Parkett, Fliesen
Wohnfläche 58,67 m²
1 Loggia 7,4 m²
2 Zimmer
1 Badezimmer, 1 Toilette, Abstellraum

Ausstattung

Badewanne
Personenaufzug

Heizung

FernwärmeFernwärme
Heizwärmebedarf (HWB)
36.4 kWh/(m²a)
B
Gesamtenergieeffizienzfaktor (fGEE)
0.71
A

Beschreibung

Willkommen in Ihrer Traumwohnung in Pöchlarn!

Diese 2-Zimmer-Wohnung mit ca. 56,68 m² Wohnfläche, bietet eine offene Wohnküche mit direktem Zugang zur Loggia. Das Badezimmer ist mit einer Badewanne, einem Waschbecken und einem Waschmaschinenanschluss ausgestattet. In den Sanitärbereichen sind Fliesen verlegt, die restlichen Räume sind mit hochwertigem Parkett ausgestattet.

Ein praktisches Kellerabteil sorgt für zusätzlichen Stauraum. Die kontrollierte Wohnraumlüftung garantiert ein angenehmes Raumklima, und die Wohnung wird über Fernwärme beheizt.

In Pöchlarn findet man eine ausgezeichnete Infrastruktur – NMS, Kindergarten, Arzt, Bank und Einkaufsmöglichkeiten befinden sich in unmittelbarer Nähe. Der wunderschöne Schlosspark liegt praktisch vor der Haustüre und lädt zum Spazieren ein. Darüber hinaus gibt es viele Freizeitmöglichkeiten wie Tennisplätze, Rad- und Wanderwege, ein beheiztes Freibad und vieles mehr. Hier wird es nie langweilig!

Die Wohnung bietet eine gute Anbindung an die A1 und die Westbahn (der Bahnhof befindet sich ebenfalls in der Nähe).

Befristung: unbefristet, 1 Jahr Kündigungsverzicht 3 Monate Kündigungsfrist

Bezug: ab 01.04.2026

Energiekennzahlen: Laut Energieausweis vom 15.1.2025 beträgt der Heizwärmebedarf 36,4 kWh/m²a Klasse B und der Gesamtenergieeffizienz-Faktor 0,71 Klasse A.

Der einmalige Finanzierungsbeitrag beträgt € 26.628,16 und die monatliche Miete beläuft sich auf € 710,70 inkl. BK und Ust.

Noch nichts gefunden? Wir informieren Sie über geeignete Immobilienangebote noch vor allen anderen.
Legen Sie jetzt Ihren individuellen Suchagenten unter folgendem Link an. Wir schicken Ihnen passende Immobilien exklusiv vorab zu.
Suchagent anlegen - https://heimat-oesterreich.service.immo/registrieren/de


Infrastruktur / Entfernungen

Gesundheit
Arzt <250m
Apotheke <250m
Krankenhaus <9.750m

Kinder & Schulen
Kindergarten <250m
Schule <250m
Universität <9.750m

Nahversorgung
Supermarkt <500m
Bäckerei <250m
Einkaufszentrum <4.250m

Sonstige
Bank <250m
Geldautomat <250m
Post <250m
Polizei <500m

Verkehr
Bus <250m
Autobahnanschluss <2.000m
Bahnhof <750m

Angaben Entfernung Luftlinie / Quelle: OpenStreetMap

Dokumente

Kontaktieren

GewerblichHeimat Österreich gemeinnützige Wohnungs- und Siedlungsgesellschaft m.b.H.Frau Zehra Yazgi
Nachricht
Anrede
Vorname
Nachname
E-Mail
Telefon
GewerblichHeimat Österreich gemeinnützige Wohnungs- und Siedlungsgesellschaft m.b.H.Frau Zehra Yazgi
 Verifiziert von ImmoScout24
Silber Partner