{"obj_regio1":"004","obj_regio2":"004011","obj_regio3":"004011021","obj_ityp":"3","obj_zipCode":"4382","obj_title":"Mehrparteienhaus mit Donaupanorama – Rendite sichern und/oder selbst nutzen","obj_picture":"https://pictures.immobilienscout24.de/prod.www.immobilienscout24.at/pictureserver/loadPicture?q=70&id=012.001P900000IsC3T-1761669326-7982a6da2df74dcc8c2d0cdf2e2471a6","obj_exclusiveExpose":"true","obj_cwId":"ADS0019149812","obj_purchasePrice":295000,"obj_purchasePriceRange":"6","obj_baseRentRange":null}
  • Einfamilienhaus
  • Altbau
  • Terrasse

Mehrparteienhaus mit Donaupanorama – Rendite sichern und/oder selbst nutzen

295.000
 
231 m²8 ZimmerTerrasse 76 m²
Preis / m²1.277,06 €
Grundstücksfläche493 m²
Baujahr1900
BL Immobroker GmbHHerr Michael Lindinger-Pesendorfer, BSc
4382 Sarmingstein
Das Mehrparteienhaus befindet sich in Sarmingstein (Gemeinde St. Nikola an der Donau), mitten im Donaustru­dengau – einer der landschaftlich reizvollsten Regionen Oberösterreichs.

Durch die erhöhte Situierung ergibt sich ein freier Blick auf die Donau und das umliegende Naturpanorama.
Alle wesentlichen Einrichtungen befinden sich in kurzer Distanz:
•Volksschule, Kindergarten, Nahversorger in St. Nikola bzw. Grein
•Ärzte, Apotheke, Einkaufsmöglichkeiten in Grein
•Bezirkshauptstadt Perg
•Amstetten – mit Bahnanschluss Richtung Linz & Wien

Die Lage verbindet Natur, Ruhe, Donaublick und gleichzeitig gute Verkehrsanbindung.

Einmalige Kosten

Kaufpreis295.000 €
Kaufpreis pro m²1.277,06 €
Provision: 3% des Kaufpreises zzgl. 20% USt.

Hallo neues Zuhause!

Kenne deine Chance mit Plus

Online seit120Gesehen80Kontaktiert40Gemerkt63
Plus locked

Merkmale

Verfügbar ab nach Vereinbarung
Einfamilienhaus
Baujahr 1900, Altbau, Modernisiert, Massivbauweise, Unterkellert, Satteldach, Grundstück voll erschlossen, letzte Modernisierung 2017, Insgesamt 4 Etagen
Wohnfläche 231 m²
Nutzfläche 404,29 m², Grundstücksfläche 493 m², Lagerfläche 118 m²
2 Terrassen 76 m² südwestseitig
südwestseitig
8 Zimmer
Kellerfläche 10 m²

Heizung

Luftwärmepumpe
Heizwärmebedarf (HWB)
140.6 kWh/(m²a)
E
Gesamtenergieeffizienzfaktor (fGEE)
1.63
C

Beschreibung

Dieses vielseitige Mehrparteienhaus besteht aus 3 vermieteten Wohneinheiten sowie zusätzlichen Räumen mit weiterem Ausbaupotenzial (z. B. zusätzliche Wohnung im Dachgeschoss uvm.). Es eignet sich sowohl als Renditeobjekt, als auch für Eigennutzer, die Wohnen, Gewerbe und Vermieten kombinieren möchten. Die derzeitigen Mieteinnahmen belaufen sich auf etwa € 1.300,- pro Monat. Diese Einnahmen können durch Vermietung der Leerstände, Aus- und Umbaupotenzial etc. deutlich aufgebessert werden.

Das Gebäude wurde ursprünglich als Geschäftshaus errichtet und im Laufe der letzten Jahre in mehreren Etappen saniert. Die tragende Bauweise ist massiv, das Dachgeschoss und Teile des Innenbereichs wurden modernisiert. Die Immobilie befindet sich in gepflegtem Zustand. Die Beheizung erfolgt über eine Luftwärmepumpe (Bj. 2020) – damit bleiben die Betriebskosten niedrig und nachhaltige Energieversorgung ist gegeben. Ausbaureserve: Dachgeschoss (potenziell nutzbar)

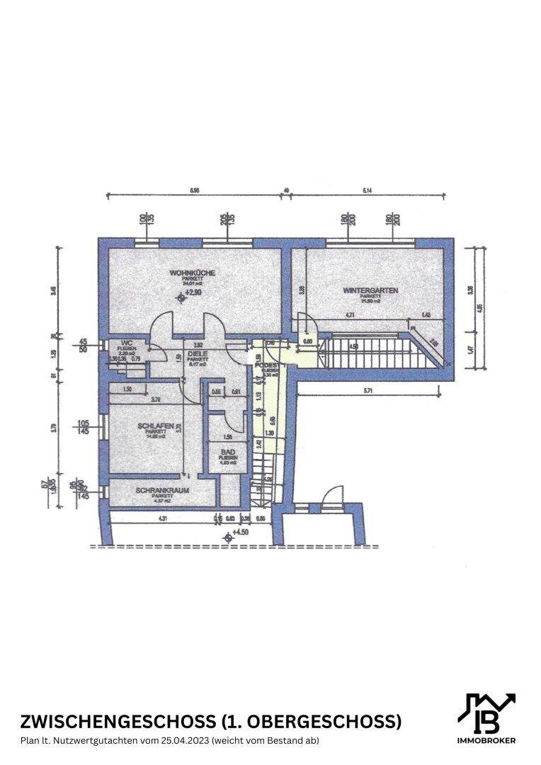
Raumaufteilung:

  • Top 1 im 1. OG (ca. 80 m²): Diele, Wohnküche, Schlafzimmer, Bad/WC, Wintergarten

  • Top 2 im Zwischengeschoss (ca. 61 m² + 30 m² Terrasse): Küche, Wohnzimmer, Schlafzimmer, Bad/WC

  • Top 3 ausbaubar im 2. OG (ca. 60 m²): Diele, Küche, Bad/WC, Wohnzimmer, Schlafzimmer + Südbalkon (derzeit nicht so ausgeführt)

  • Top 4 im DG (ca. 30m²)

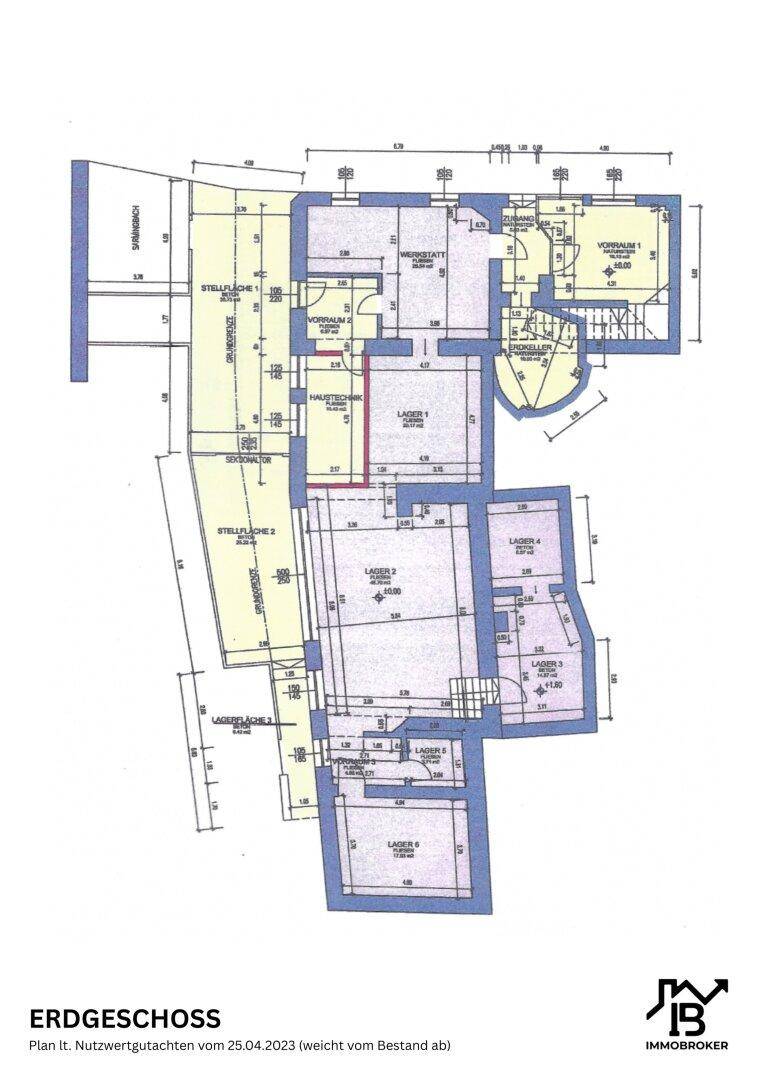
  • Top 5 im EG (ca. 144 m²): Vorraum, Werkstätte, Lager / Einstellraum (derzeit nicht genutzt)

  • Dachgeschoss ausbaubar

Außenbereich:

  • Südterrasse mit Donaublick

  • Überdachte Terrasse zum Bach/Wald

Die Immobilie bietet eine außergewöhnliche Kombination aus RenditeWohnqualität und Naturlage mit Donaublick.

Der Vermittler ist als Doppelmakler tätig.


Infrastruktur / Entfernungen

Gesundheit
Arzt <5.000m
Apotheke <6.500m

Kinder & Schulen
Schule <3.500m
Kindergarten <3.500m

Nahversorgung
Supermarkt <3.500m
Bäckerei <3.500m

Sonstige
Bank <5.000m
Geldautomat <5.000m
Post <3.500m
Polizei <7.000m

Verkehr
Bus <500m
Bahnhof <500m

Angaben Entfernung Luftlinie / Quelle: OpenStreetMap

Dokumente

Kann ich mir diese Immobilie leisten?

  • % Nebenkosten
    0 €/ Monat
  • % Zinsen
    0 €/ Monat
  • % Kaufpreis
    0 €/ Monat
*
pro Monat
* errechnete monatliche Kreditrate bei einem angenommenen Effektivzins von 1.6% p.a. Die Berechnung stellt einen unverbindlichen Richtwert dar und ist von der Bonität, Kredithöhe, Laufzeit, Verwendungszweck und Besicherung abhängig.

Kontaktieren

GewerblichBL Immobroker GmbHHerr Michael Lindinger-Pesendorfer, BSc
Nachricht
Anrede
Vorname
Nachname
E-Mail
Telefon
Ich bin Eigentümer:in einer Immobilie
GewerblichBL Immobroker GmbHHerr Michael Lindinger-Pesendorfer, BSc
 Verifiziert von ImmoScout24
Gold Partner