{"obj_regio1":"007","obj_regio2":"007005","obj_regio3":"007005013","obj_ityp":"25","obj_zipCode":"6330","obj_title":"Vielseitige Gewerbehalle im Zentrum Kufstein zu Kaufen","obj_picture":"https://pictures.immobilienscout24.de/prod.www.immobilienscout24.at/pictureserver/loadPicture?q=70&id=012.0010J00001xl4E4-1761721608-4410d23016a94f91bc8107625b006ae4","obj_exclusiveExpose":"false","obj_cwId":null,"obj_purchasePrice":1850000,"obj_purchasePriceRange":"11","obj_baseRentRange":null}

    Vielseitige Gewerbehalle im Zentrum Kufstein zu Kaufen

    1.850.000
     
    1052 m²
    RE/MAX FusionHerr Alexander Streicher
    6330 Kufstein

    Einmalige Kosten

    Kaufpreis1.850.000 €
    Kaufpreis pro m²1.758,56 €
    Kalkuliert von ImmoScout24
    Provision zzgl. 20% USt.: 3.00 % zuzüglich USt.

    Laufende Kosten

    Monatliche Kosten3.623 €
    Betriebskosten3.019,17 €
    USt. Betriebskosten603,83 €
    Steuersatz20 %

    Hallo neues Zuhause!

    Kenne deine Chance mit Plus

    Online seit120Gesehen80Kontaktiert40Gemerkt63
    Plus locked

    Merkmale

    Verfügbar ab ab sofort
    Industrie
    Baujahr ca. 1973, Gepflegt, Insgesamt 2 Etagen
    Nutzfläche 1.052 m²
    Lagerfläche 395,56 m²

    Heizung

    Heizwärmebedarf (HWB)
    133. kWh/(m²a)
    E
    Gesamtenergieeffizienzfaktor (fGEE)
    2.060
    D

    Beschreibung

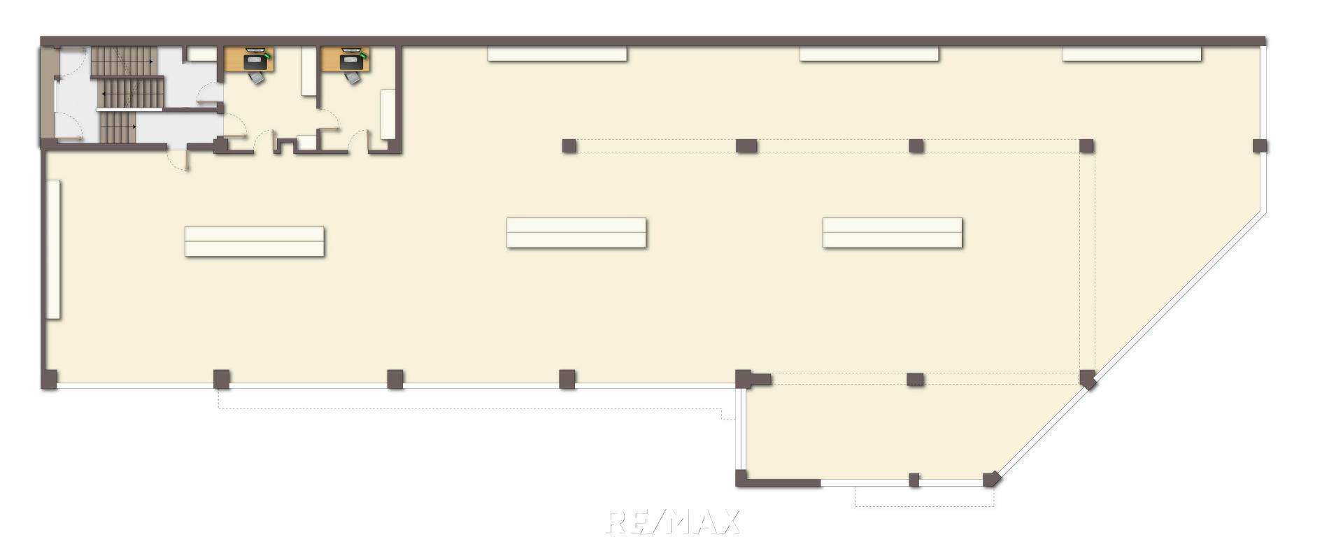
    Vielseitige Gewerbehalle mit Büro und Lager im Zentrum von Kufstein!


    Im Herzen von Kufstein befindet sich diese großzügige Werkshalle mit Lagerflächen und optimaler LKW-Infrastruktur. Diese Gewerbeimmobilie bietet auf ca. 1050 Quadratmetern eine multifunktionale Nutzungsmöglichkeit für Unternehmen aus Industrie, Handwerk, Logistik oder Handel. Dank der zentralen Lage ist eine exzellente Anbindung an das Verkehrsnetz sowie an die umliegende Infrastruktur gewährleistet.

    Flächenaufteilung:
    - Werkshalle: Die großzügige Halle bietet ausreichend Platz für Produktions-, Montage- oder Werkstattarbeiten. Dank der hohen Deckenhöhe können auch größere Maschinen oder Regalsysteme problemlos untergebracht werden.
    - Lagerflächen: Angrenzend an die Werkshalle befindet sich ein separates Lager, das ideal für die Lagerung von Materialien, Waren oder Rohstoffen geeignet ist.
    -LKW-Laderampen: Die Immobilie verfügt über mehrere LKW-Laderampen, die einen reibungslosen Warenein- und -ausgang ermöglichen. Durch die ebenerdigen Rampen ist ein unkompliziertes Be- und Entladen gewährleistet.

    Ausstattung:
    - Werkshalle mit Büro: 656 m² Nutzfläche
    - Deckenhöhe: 4,73 Meter hohe Werkshalle
    - UG-Lager: 395 m² Nutzfläche
    - Lichtverhältnisse: Große Fenster und ausreichend Beleuchtung sorgen für eine helle und angenehme Arbeitsatmosphäre.
    - Stromversorgung: Leistungsstarke Stromanschlüsse sind für Maschinen und Geräte vorhanden.
    - Bodenbelag: Robuster Industrieboden, geeignet für hohe Belastungen.
    - Laderampen: Zwei Rampen für LKWs verschiedener Größen.

    Lage:
    Die Immobilie befindet sich in einer erstklassigen Lage im Zentrum von Kufstein. Das Objekt ist sowohl über den Straßenverkehr als auch über die Autobahn ideal erreichbar. Die Nähe zur österreichisch-deutschen Grenze bietet strategische Vorteile für logistik- und exportorientierte Unternehmen. Auch der Bahnhof ist in wenigen Minuten erreichbar, was eine hervorragende Anbindung an den öffentlichen Nahverkehr ermöglicht.

    Vorteile auf einen Blick:
    - Zentrale Lage im Herzen von Kufstein
    - Großzügige Lager- und Produktionsfläche
    - Mehrere LKW-Laderampen für schnellen Warentransport
    - Flexible Nutzungsmöglichkeiten für verschiedene Branchen
    - Sehr gute Verkehrsanbindung (Autobahn, öffentlicher Nahverkehr)


    Diese Immobilie bietet ideale Voraussetzungen für Unternehmen, die eine funktionale, zentral gelegene Gewerbeeinheit suchen. Nutzen Sie diese Gelegenheit, um Ihr Geschäft im Zentrum von Kufstein zu etablieren. Kontaktieren Sie uns für eine Besichtigung oder weitere Informationen!
    Angaben gemäß gesetzlichem Erfordernis:

    Heizwärmebedarf: 133.5 kWh/(m²a)
    Klasse Heizwärmebedarf: E
    Faktor Gesamtenergieeffizienz: 2.06
    Klasse Faktor Gesamtenergieeffizienz: D

    Kann ich mir diese Immobilie leisten?

    • % Nebenkosten
      0 €/ Monat
    • % Zinsen
      0 €/ Monat
    • % Kaufpreis
      0 €/ Monat
    *
    pro Monat
    * errechnete monatliche Kreditrate bei einem angenommenen Effektivzins von 1.6% p.a. Die Berechnung stellt einen unverbindlichen Richtwert dar und ist von der Bonität, Kredithöhe, Laufzeit, Verwendungszweck und Besicherung abhängig.

    Kontaktieren

    GewerblichRE/MAX FusionHerr Alexander Streicher
    Nachricht
    Anrede
    Vorname
    Nachname
    E-Mail
    Telefon
    Ich bin Eigentümer:in einer Immobilie
    GewerblichRE/MAX FusionHerr Alexander Streicher
     Verifiziert von ImmoScout24
    Bronze Partner