{"obj_regio1":"009","obj_regio2":"009001","obj_regio3":"009001002","obj_ityp":"7","obj_zipCode":"1020","obj_title":"Altbau mit Charme im Karmeliterviertel - Ihr Eigentumsbüro","obj_picture":"https://pictures.immobilienscout24.de/prod.www.immobilienscout24.at/pictureserver/loadPicture?q=70&id=012.0015I00000KlFio-edbe44a0130e414681c030d53f986a9d","obj_exclusiveExpose":"true","obj_cwId":"ADS0017893840","obj_purchasePrice":254334,"obj_purchasePriceRange":"6","obj_baseRentRange":null}
  • Video Live-Besichtigung

Altbau mit Charme im Karmeliterviertel - Ihr Eigentumsbüro

254.334
 
55 m²
EHL Gewerbeimmobilien GmbHFrau Miriam Ratzberger
1020 Wien / Leopoldstadt
Die Büro- und Wohnanlage befindet sich in bester Lage im 2. Wiener Gemeindebezirk und profitiert von einer ausgezeichneten Nahversorgung sowie bester Infrastruktur. Das Gebäude liegt unweit des Karmeliterplatzes (Taborstraße) und nur drei Gehminuten vom Karmelitermarkt entfernt. Die Straßenfassade orientiert sich in Richtung des rund 500 m südwestlich gelegenen 1. Bezirks. Direkt gegenüber befindet sich der Neubau des Sperlgymnasiums.

Einmalige Kosten

Kaufpreis254.334 €
Kaufpreis pro m²4.624,25 €
Kalkuliert von ImmoScout24

Hallo neues Zuhause!

Kenne deine Chance mit Plus

Online seit120Gesehen80Kontaktiert40Gemerkt63
Plus locked

Merkmale

Büro
Bürofläche 55 m²
Nutzfläche 55 m²

Ausstattung

Auszug aus der Bau- und Ausstattungsbeschreibung:
• Qualitative Parkettböden in Fischgrät-Optik von Weitzer-Parkett , im Geschäftslokal kann ein Boden nach Wahl verlegt werden.
• Hochwertige Sanitärausstattung in den Bädern
• Holz-Kastenfenster im Altbau
• Fußbodenheizung
• Klimatisierung vorbereitet
• Postkasten und Paketboxen im Foyer
• Sonnenschutz
• Videogegensprechanlage
u.v.m.

Heizung

Heizwärmebedarf (HWB)
40.10 kWh/(m²a)
B
Gesamtenergieeffizienzfaktor (fGEE)
0.87
B

Beschreibung

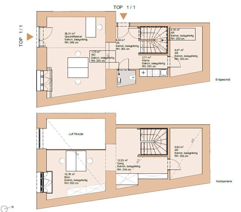
Nur wenige Schritte vom Karmelitermarkt entfernt, in der ruhigen Kleinen Sperlgasse, wurde dieses Gebäude aus dem Jahr 1910 umfassend saniert und modernisiert. Auf dem 620 m² großen Grundstück, in unmittelbarer Nähe zum 1. Bezirk, befindet sich das Wohnhaus mit zwei Stiegenhäusern, welches insgesamt 22 Wohnungen, 3 Büroeinheiten sowie ein Geschäftslokal umfasst.

Von den insgesamt 26 Einheiten sind 15 im Straßentrakt untergebracht. Dort befinden sich neben dem straßenseitig zugänglichen Geschäftslokal auch ein Büro im Hochparterre. Der Hoftrakt umfasst im Hochparterre ebenfalls 2 Büroeinheiten und bietet in den oberen Geschoßen 8 Altbauwohnungen sowie eine weitere Dachgeschoßwohnung.

Am begrünten Innenhof steht im Hochparterre ein Kinderspielraum (Gemeinschaftsraum) mit Sanitäreinheit und Teeküche zur Verfügung, der allen Bewohnern offensteht. Der Hof selbst ist ebenfalls allen Eigentümern zugänglich. Jeder Wohn- und Büroeinheit ist zudem ein Einlagerungsraum im Untergeschoß zugeordnet.

Großzügige Fahrrad- und Kinderwagenabstellräume können vom Haupteingang bzw. über die Tiefgarage erreicht werden.

Verfügbare Flächen:
• Top 1/1: ca. 91,24 m² Einlagerungsmöglichkeit: 3,85 m²
• Top 2/1: ca. 62,78 m² Einlagerungsmöglichkeit: 2,78 m²
- Top 2/2: ca. 55,29 m² Einlagerungsmöglichkeit: 1,91 m²
Wir weisen darauf hin, dass zwischen dem Vermittler und dem Auftraggeber ein wirtschaftliches Naheverhältnis besteht. Der Vermittler ist als Doppelmakler tätig.

Kann ich mir diese Immobilie leisten?

  • % Nebenkosten
    0 €/ Monat
  • % Zinsen
    0 €/ Monat
  • % Kaufpreis
    0 €/ Monat
*
pro Monat
* errechnete monatliche Kreditrate bei einem angenommenen Effektivzins von 1.6% p.a. Die Berechnung stellt einen unverbindlichen Richtwert dar und ist von der Bonität, Kredithöhe, Laufzeit, Verwendungszweck und Besicherung abhängig.

Kontaktieren

GewerblichEHL Gewerbeimmobilien GmbHFrau Miriam Ratzberger
Nachricht
Anrede
Vorname
Nachname
E-Mail
Telefon
Ich bin Eigentümer:in einer Immobilie
GewerblichEHL Gewerbeimmobilien GmbHFrau Miriam Ratzberger
Video Live-Besichtigung
 Verifiziert von ImmoScout24
Immo Expert *** Award