{"obj_regio1":"006","obj_regio2":"006001","obj_regio3":"006001010","obj_ityp":"7","obj_zipCode":"8042","obj_title":"Geschäftslokal als Ordination oder Büro nutzbar - Nähe Murpark","obj_picture":"https://pictures.immobilienscout24.de/prod.www.immobilienscout24.at/pictureserver/loadPicture?q=70&id=012.0012000001E3qye-1762858206-c9aa01b627c44e31bb47a7391ac51ca8","obj_exclusiveExpose":"false","obj_cwId":null,"obj_purchasePrice":null,"obj_purchasePriceRange":null,"obj_baseRentRange":"7"}

    Geschäftslokal als Ordination oder Büro nutzbar - Nähe Murpark

    1.287
     
    71 m²4 Zimmer
    IMMOXX. GmbHHerr Dietmar Weiss
    Liebenauer Hauptstraße 91, 8042 Graz,07.Bez.:Liebenau
    In der Nähe
    Graz Liebenau Postamt24 m
    34, 64, 74
    Graz Casalgasse151 m
    500, 501, 515, 521
    Graz Volksschule Liebenau249 m
    34, 64, 671
    Graz Messendorfer Straße318 m
    34, 74
    Graz Liebenau Murpark361 m
    4
    64, 72, 74, 75, 096, 500, 501, 515, 521, X44, X96
    S3, S31
    IC, REX
    Graz Puntigamer Straße490 m
    34, 64, 671
    Graz Schloßbergplatz/Murinsel4,2 km
    3, 5
    SBL
    Graz Schloßbergbahn4,4 km
    3, 5
    200, 201, 250, 300, 350, 470, X30, X31, X40, X41, X50
    SBB

    Laufende Kosten

    Monatliche Kosten1.287 €
    Preis pro m²18,05 €
    Kalkuliert von ImmoScout24
    Gesamtbelastung Netto1.072,5 €
    USt. Gesamtbelastung214,5 €

    Einmalige Kosten

    Kaution5.000 €

    Hallo neues Zuhause!

    Kenne deine Chance mit Plus

    Online seit120Gesehen80Kontaktiert40Gemerkt63
    Plus locked

    Merkmale

    Büro
    Baujahr 2019, Gepflegt
    Bürofläche 71,3 m²
    Nutzfläche 71,3 m²
    4 Zimmer
    1 Toilette

    Heizung

    ZentralheizungFernwärme
    Heizwärmebedarf (HWB)
    32.9 kWh/(m²a)
    B

    Beschreibung

    Dieses attraktive Geschäftslokal befindet sich in einer Wohnanlage mit betreutem Wohnen !
    Ideal kann das Lokal als Ordination, Praxis oder sonstige Art von Büro genutzt werden.

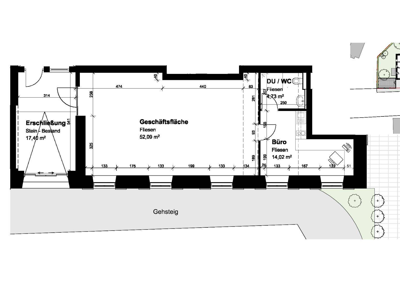
    Das ca. 70m² große Gewerbelokal besteht aus einem großen Raum mit ca. 52m² und einem zweiten kleineren Raum der mit einer Teeküche ausgestattet ist. Zusätzlich ist auch ein Sanitärbereich mit einer Dusche vorhanden.

    Vor dem Gebäude stehen genügend Parkplätze zur Verfügung.


    Für sonstige Fragen und Besichtigungen stehe ich Ihnen gerne zur Verfügung.

    Freue mich auf Ihren Anruf
    Angaben gemäß gesetzlichem Erfordernis:

    Miete € 1072,5 zzgl 20% USt.
    Umsatzsteuer € 214,5

    ------------------------------------------------------------------

    Gesamtbetrag € 1287

    ------------------------------------------------------------------

    Heizwärmebedarf: 32.9 kWh/(m²a)

    Kontaktieren

    GewerblichIMMOXX. GmbHHerr Dietmar Weiss
    Nachricht
    Anrede
    Vorname
    Nachname
    E-Mail
    Telefon
    Bewerbungsmappe
    Erhöhe deine Chancen mit mehr Infos zu dir.
    GewerblichIMMOXX. GmbHHerr Dietmar Weiss
     Verifiziert von ImmoScout24
    Bronze Partner