{"obj_regio1":"009","obj_regio2":"009001","obj_regio3":"009001002","obj_ityp":"7","obj_zipCode":"1020","obj_title":"Sehr schönes Büro im Herzen von Wien 1020 Wien - 250 m²","obj_picture":"https://pictures.immobilienscout24.de/prod.www.immobilienscout24.at/pictureserver/loadPicture?q=70&id=012.0012000001E3r9p-1665572892-a198aa7e825640f78789fa65b0b66961","obj_exclusiveExpose":"true","obj_cwId":"ADS0017892718","obj_purchasePrice":950000,"obj_purchasePriceRange":"10","obj_baseRentRange":null}

    Sehr schönes Büro im Herzen von Wien 1020 Wien - 250 m²

    950.000
     
    200 m²9 Zimmer
    Immoexpress KGHerr Josef Fuhrmann
    1020 WIen
    Sehr gut angebunden

    Einmalige Kosten

    Kaufpreis950.000 €
    Kaufpreis pro m²4.750 €
    Kalkuliert von ImmoScout24
    Provision: 3 % zzgl. 20% MwSt.

    Laufende Kosten

    Monatliche Kosten416,88 €
    Betriebskosten347,4 €
    USt. Betriebskosten69,48 €

    Hallo neues Zuhause!

    Kenne deine Chance mit Plus

    Online seit120Gesehen80Kontaktiert40Gemerkt63
    Plus locked

    Merkmale

    Verfügbar ab nach Vereinbarung
    Büro
    Baujahr 1960, Neubau, Unterkellert, Grundstück voll erschlossen, Fliesen, Insgesamt 3 Etagen
    Gesamtfläche 200 m²
    Bürofläche 200 m², 10 Wohneinheiten
    9 Zimmer
    Kellerfläche 50 m², 2 Badezimmer, 3 Toiletten, WG-tauglich

    Ausstattung

    Fernblick, Einbauküche, Dusche
    Personenaufzug

    Heizung

    Zentralheizung
    Heizwärmebedarf (HWB)
    135.50 kWh/(m²a)
    D
    Gesamtenergieeffizienzfaktor (fGEE)
    1.867
    D

    Beschreibung

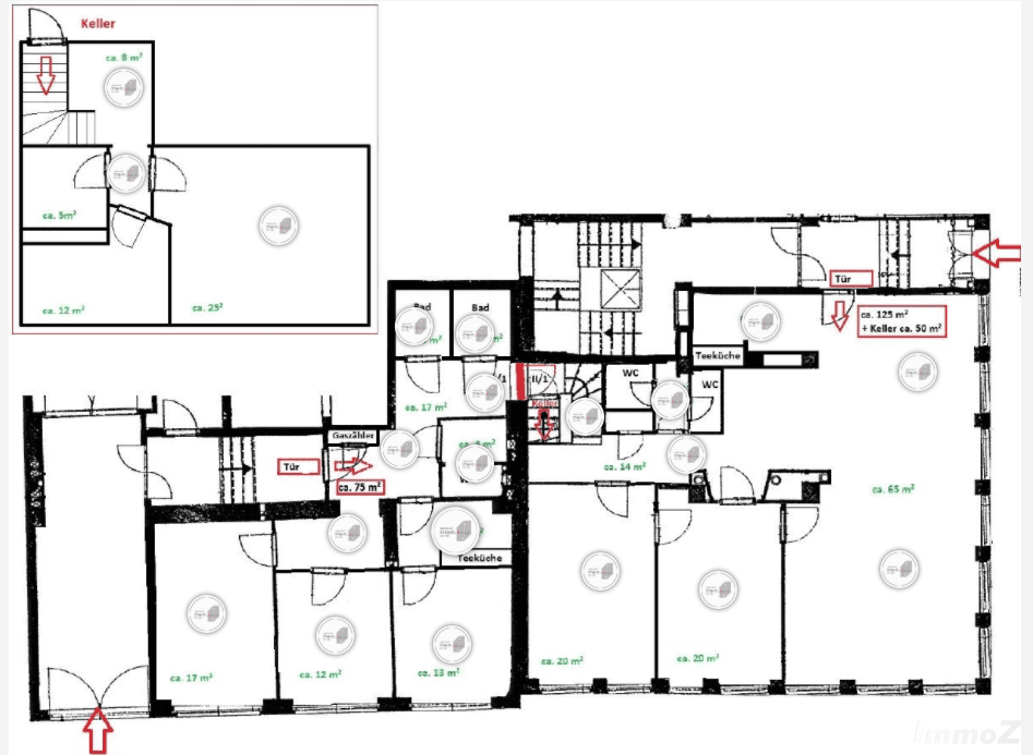
    Ein sehr schönes Büro mitten im Herzen von Wien. Es macht einen besonderen Eindruck, wenn man im 1020 Bezirk ein Büro besitzt.
    Das Büro eignet sich perfekt für einen Betrieb oder auch für die Vermietung an Geschäftskunden.

    Das Büro besteht aus:
    250 m2 Nutzfläche diese teilen sich wie folgt auf,
    6 Büroräume 
    1 Teeküche
    3 WC´s 
    2 Duschen
    50m2 Keller mit der eigenen Heizungsanlage und 3 Räumen.

    Monatliche Kosten im Überblick:
    Kaufpreis  950.000,--   VB
    Betriebskosten: 347.40 Euro netto
    HK und Stromkosten: nach Verbrauch
    Instandhaltung (RL): 154,40
    Gesamtbelastung: ca. 602,30 Euro inkl. BK und UST

    Für weitere Fragen oder eine Besichtigung steht Ihnen gerne Herr Josef Fuhrmann
    unter Anbieter kontaktieren oder Anbieter kontaktierens zur Verfügung.

    Gerne unterstützen wir Sie auch bei der Finanzierung bei diesem oder einem anderen Objekt. Sprechen Sie uns darauf an, wir beraten Sie gerne.



    Wir weisen darauf hin, dass wir, mit Ausnahme von Wohnungssuchenden für Mietwohnungen, als DoppelmaklerIn tätig sind. Nähere Informationen zum DoppelmaklerIn auf Anfrage gerne.

    Kann ich mir diese Immobilie leisten?

    • % Nebenkosten
      0 €/ Monat
    • % Zinsen
      0 €/ Monat
    • % Kaufpreis
      0 €/ Monat
    *
    pro Monat
    * errechnete monatliche Kreditrate bei einem angenommenen Effektivzins von 1.6% p.a. Die Berechnung stellt einen unverbindlichen Richtwert dar und ist von der Bonität, Kredithöhe, Laufzeit, Verwendungszweck und Besicherung abhängig.

    Kontaktieren

    GewerblichImmoexpress KGHerr Josef Fuhrmann
    Nachricht
    Anrede
    Vorname
    Nachname
    E-Mail
    Telefon
    Ich bin Eigentümer:in einer Immobilie
    Bewerbungsmappe
    Erhöhe deine Chancen mit mehr Infos zu dir.
    GewerblichImmoexpress KGHerr Josef Fuhrmann
     Verifiziert von ImmoScout24
    Gold Partner