{"obj_regio1":"009","obj_regio2":"009001","obj_regio3":"009001021","obj_ityp":"2","obj_zipCode":"1210","obj_title":"NEUBAUWOHNUNG NÄHE ERHOLUNGSGEBIET ALTE DONAU / 500 M ZUM STRAND","obj_picture":"https://pictures.immobilienscout24.de/prod.www.immobilienscout24.at/pictureserver/loadPicture?q=70&id=012.0012000001E84Ev-1727173294-ec6bc2f8f4fb4c8c9909a19a6a4d4716","obj_exclusiveExpose":"false","obj_cwId":null,"obj_purchasePrice":350000,"obj_purchasePriceRange":"7","obj_baseRentRange":null}
  • Etagenwohnung
  • Garten
  • Möbliert

NEUBAUWOHNUNG NÄHE ERHOLUNGSGEBIET ALTE DONAU / 500 M ZUM STRAND

350.000
 
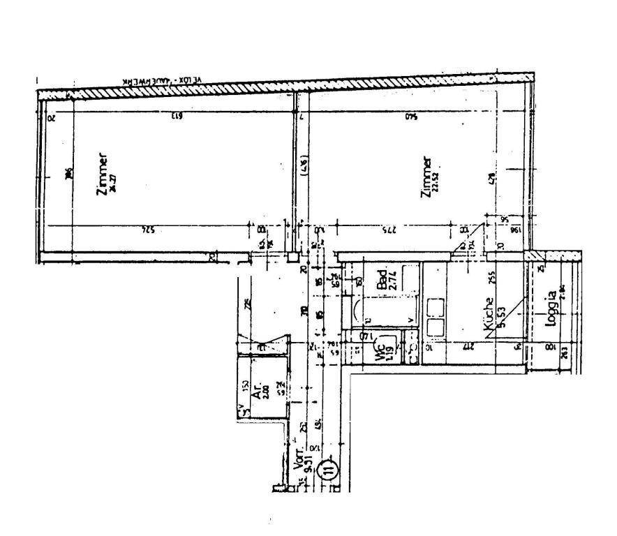
80 m²2 ZimmerGartenLoggia 4 m²
Preis / m²4.375 €
Etage2
Baujahrca. 1980
Agoreal Immobilien Ges.m.b.HHerr AGOREAL
1210 Wien, Floridsdorf

Einmalige Kosten

Kaufpreis350.000 €
Kaufpreis pro m²4.375 €
Kalkuliert von ImmoScout24
Preisinformation: Verhandlungsbasis
Provision zzgl. 20% USt.: 3.00 % zuzüglich USt.

Laufende Kosten

Monatliche Kosten374,3 €
Betriebskosten340,27 €
USt. Betriebskosten34,03 €
Steuersatz20 %

Hallo neues Zuhause!

Kenne deine Chance mit Plus

Online seit120Gesehen80Kontaktiert40Gemerkt63
Plus locked

Merkmale

Verfügbar ab nach Vereinbarung
Etagenwohnung
Baujahr ca. 1980, Neubau, Gepflegt, 2. Etage, Insgesamt 1 Etage
Wohnfläche 80 m²
1 Loggia 4 m²
Garten
2 Zimmer
1 Schlafzimmer, 1 Badezimmer, 1 Toilette

Ausstattung

Vollmöbliert, Gartennutzung
Personenaufzug

Heizung

Zentralheizung
Heizwärmebedarf (HWB)
31.0 kWh/(m²a)
B

Beschreibung

TRAUMLAGE-ERHOLUNGSGEBIET
ALTE DONAU 500m ZUM STRAND!
21., SCHEFFELSTRASSE 28

Es handelt sich hierbei um eine Eigentumswohnung mit ca.
76 qm + ca. 4 qm Balkon. Das Haus wurde ca. 1980 gebaut und 2012 wurde die Thewosan Sanierung(Wärmedämmung, neue Fenster, neues Dach bzw. Dachterrassen, neues Stiegenhaus, neue Zentralheizung/Fernwärme und neuen Lift) abgeschlossen.

VZI (zentral bis auf Küche, verbaut vom Tischler, schwarz/ahorn),
BAD (Badewanne, Waschtisch, Handtuchheizkörper, verfliest, kompl. neu 2012)
WC (Hänge-WC, kompl. verfliest)
ABSTELLRAUM (Regale)

WOHNZIMMER (Wandverbau im Stollensystem schwarz/brombeer, TV, Video, CD, Tuner, Boxen, Wohnlandschaft, Essgruppe 7 tlg. schwarz/brombeer – kann eventuell übernommen werden) – gassenseitig
(Fenster gehen in die Scheffelstraße)

KÜCHE (DAN-Küche kompl. neuwertig! (Tiefkühlkombi, Waschmaschine, Geschirrspüler, Nirosta-Abwasch, Nirosta-Dunstabzug, Cerankochplatte und Heißluftbackhofen, Schieferboden, Ausgang auf ca. 4 qm großen verfliesten Balkon) – Küche und Balkon gehen in die Scheffelstraße

SCHLAFZIMMER (ital. Rundkasten und Eckkasten schwarz/grau, Kommode schwarz/grau, achteckiges Bett) - hofseitig, absolute Grünruhelage – Baumbestand und Wiese

GARAGE (derzeit ist im Nebenhaus ein Garagenplatz vom Wohnungseigentümer angemietet, dieser könnte eventuell auch übernommen werden)

Zentralheizung/Fernwärme (monatl. A-conto Vorrauszahlung, einmal im Jahr erfolgt die Heizkostenabrechnung.)
Betriebskosten (inkl. Lift, Rep.-Rücklage, Heizung und Warmwasser)
ca. 374,30
Heizwärmebedarf 31 kWh/m².a

ACHTUNG:
ANFRAGEN WIE ´´WAS IST LETZTER PREIS?´´ WERDEN NICHT BEANTWORTET!

Nebenkosten:
3,5% Grunderwerbsteuer
1,1% Grundbuchseintragung
Vertragserrichter (Notar des Verkäufers)

Bitte beachten Sie, dass wir aufgrund der Nachweispflicht gegenüber dem Eigentümer nur Anfragen mit vollständiger Angabe der Anschrift und Angaben zur Person (Vor- und Nachname, Wohnadresse, Telefonnummer, E-Mail-Adresse) bearbeiten können.

Es wird darauf hingewiesen, dass die angeführten Daten ausschließlich auf Informationen des Verkäufers oder Dritter (z.B. Behörden) beruhen, so dass für die Richtigkeit keine Gewähr übernommen werden kann!

Wir weisen auf Ihre 14-tägige Rücktrittsfrist (gemäß § 11 FAGG ) hin.
Um Ihre Rechte zu wahren, können nur Anfragen mit vollständigen Kontaktdaten (Name, Adresse, Telefon, Email) beantwortet werden.
Vor Ablauf der 14-tägigen Rücktrittsfrist werden wir gerne für Sie tätig, wenn Sie gesetzeskonform (FAGG) uns ausdrücklich (am einfachsten per E-Mail) dazu auffordern.

Für weitere Informationen stehen wir Ihnen gerne unter Anbieter kontaktieren zur Verfügung!

GERNE BEWERTEN, VERMITTELN, KAUFEN, VERKAUFEN WIR IHRE IMMOBILIE OB WOHNUNG, HAUS, GRUNDSTÜCK ODER BETRIEBSOBJEKT!

Kann ich mir diese Immobilie leisten?

  • % Nebenkosten
    0 €/ Monat
  • % Zinsen
    0 €/ Monat
  • % Kaufpreis
    0 €/ Monat
*
pro Monat
* errechnete monatliche Kreditrate bei einem angenommenen Effektivzins von 1.6% p.a. Die Berechnung stellt einen unverbindlichen Richtwert dar und ist von der Bonität, Kredithöhe, Laufzeit, Verwendungszweck und Besicherung abhängig.

Kontaktieren

GewerblichAgoreal Immobilien Ges.m.b.HHerr AGOREAL
Nachricht
Anrede
Vorname
Nachname
E-Mail
Telefon
Ich bin Eigentümer:in einer Immobilie
GewerblichAgoreal Immobilien Ges.m.b.HHerr AGOREAL
 Verifiziert von ImmoScout24
Bronze Partner