{"obj_regio1":"007","obj_regio2":"007003","obj_regio3":"007003054","obj_ityp":"7","obj_zipCode":"6060","obj_title":"Bürofläche Gewerbegebiet Hall in Tirol","obj_picture":"https://pictures.immobilienscout24.de/prod.www.immobilienscout24.at/pictureserver/loadPicture?q=70&id=012.0015I00000h3hNt-1736342456-5f9a5ba65d554503a3becaf970eb4d56","obj_exclusiveExpose":"false","obj_cwId":null,"obj_purchasePrice":null,"obj_purchasePriceRange":null,"obj_baseRentRange":"9"}
  • Provisionsfrei

Bürofläche Gewerbegebiet Hall in Tirol

3.227
 
239 m²
Firma Wohnpuls GmbH
Schlöglgasse 79, 6060 Hall in Tirol
In der Nähe
Thaur Physiothermstraße421 m
508
Hall-Thaur Bahnhof459 m
456, 469, 504, 650, 655
S4
REX

Laufende Kosten

Miete3.226,5 €
Preis pro m²13,5 €
Kalkuliert von ImmoScout24

Hallo neues Zuhause!

Kenne deine Chance mit Plus

Online seit120Gesehen80Kontaktiert40Gemerkt63
Plus locked

Merkmale

Büro
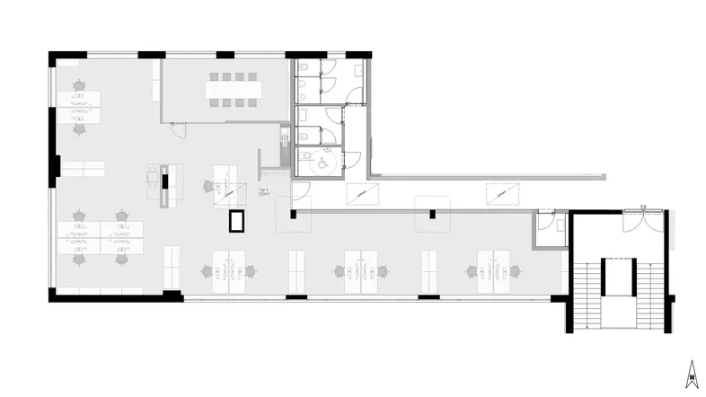
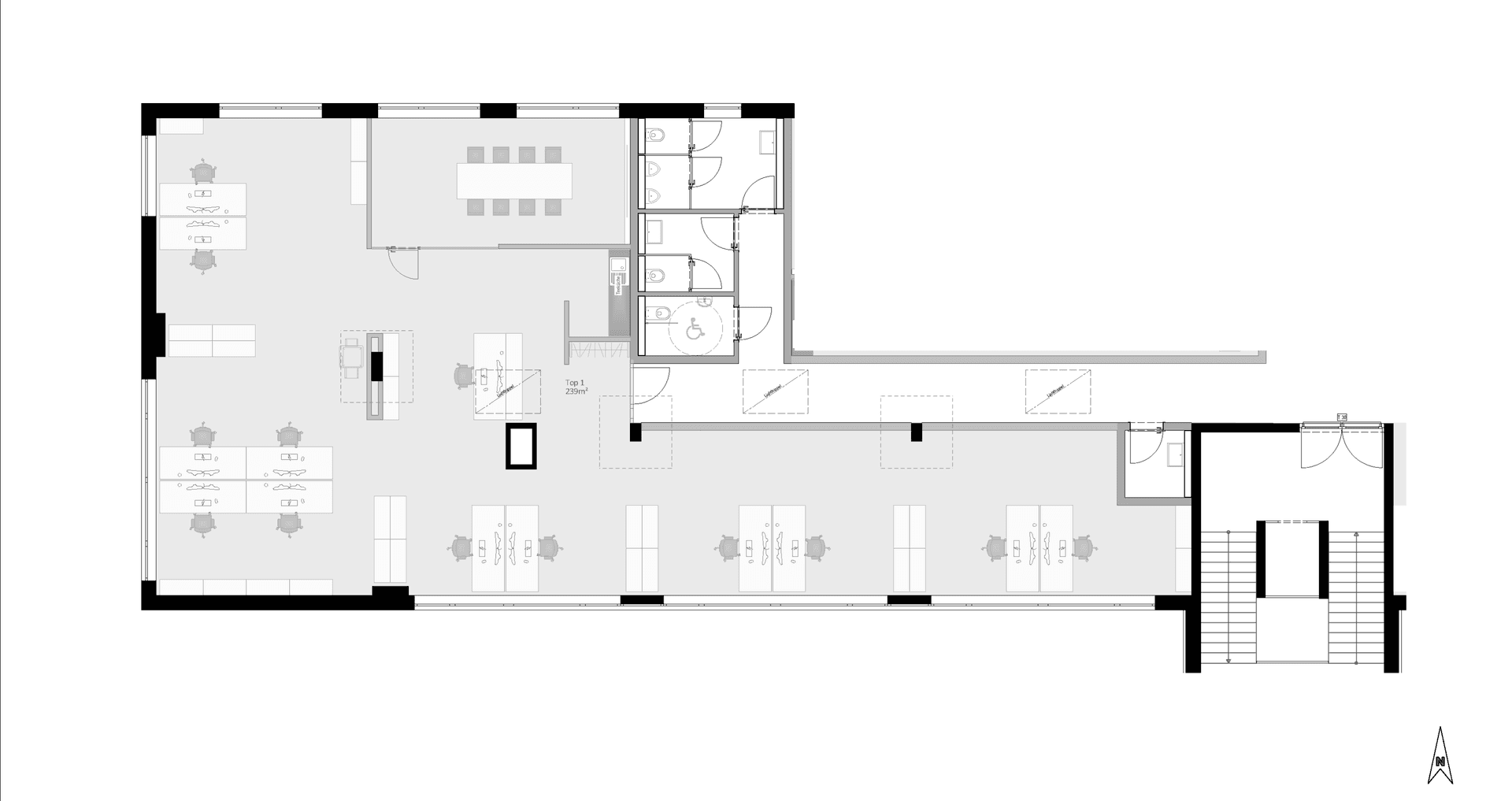
Bürofläche 239 m²

Beschreibung

Moderne Büroflächen im Gewerbegebiet Hall in Tirol zu vermieten

Die Gesamtfläche der verfügbaren Büroflächen beträgt ca. 840 m². Einzelne Einheiten können individuell angepasst werden, um den Anforderungen Ihrer Geschäftstätigkeit zu entsprechen.

Preis: ab 13,50 €/m² je nach Ausbauvariante und Ausstattungsbedarf

Dokumente

Kontaktieren

GewerblichFirma Wohnpuls GmbH
Nachricht
Anrede
Vorname
Nachname
E-Mail
Telefon
Bewerbungsmappe
Erhöhe deine Chancen mit mehr Infos zu dir.
GewerblichFirma Wohnpuls GmbH
 Verifiziert von ImmoScout24
Bronze Partner