{"obj_regio1":"007","obj_regio2":"007003","obj_regio3":"007003055","obj_ityp":"2","obj_zipCode":"6150","obj_title":"Neubau Wohnanlage Sonnendorf","obj_picture":"https://pictures.immobilienscout24.de/prod.www.immobilienscout24.at/pictureserver/loadPicture?q=70&id=012.0012000001Y13YT-1694467000-37771c38001b462eb9058fb9e9bc9f35","obj_exclusiveExpose":"false","obj_cwId":null,"obj_purchasePrice":449000,"obj_purchasePriceRange":"8","obj_baseRentRange":null}
  • Terrasse

Neubau Wohnanlage Sonnendorf

449.000
 
90 m²3 ZimmerTerrasse 16 m²
Preis / m²4.998,33 €
Etage1
Baujahr-
Lebenstraum Immobilien GmbHFrau Barbara Huter
6150 Steinach am Brenner
In Sonnenlage, mit perfekter Südausrichtung und herrlichem Ausblick realisiert die Vipitenum Immobilien erneut ein außergewöhnliches Wohnprojekt in Steinach am Brenner.
Steinach am Brenner liegt nur 20 km südlich von Innsbruck und ist über die Bundesstraße, A13, Bus und Bahn optimal an die Landeshauptstadt angebunden.

Einmalige Kosten

Kaufpreis449.000 €
Kaufpreis pro m²4.998,33 €
Kalkuliert von ImmoScout24
Provision: 3% des Kaufpreises zzgl. 20% USt.

Hallo neues Zuhause!

Kenne deine Chance mit Plus

Online seit120Gesehen80Kontaktiert40Gemerkt63
Plus locked

Merkmale

Verfügbar ab sofort
Wohnung
Neubau, Erstbezug, Massivbauweise, Unterkellert, Flachdach, Fertigparkett, 1. Etage, Insgesamt 4 Etagen
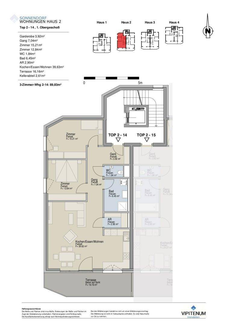
Wohnfläche 89,83 m²
1 Terrasse 16,16 m² südseitig
südseitig
3 Zimmer
Kellerfläche 2,61 m², 1 Badezimmer, 1 Toilette

Ausstattung

Personenaufzug

Heizung

Fußbodenheizung
Heizwärmebedarf (HWB)
38 kWh/(m²a)
B
Gesamtenergieeffizienzfaktor (fGEE)
0.63
A+

Beschreibung

Südlich der Landesstraße L10 werden unweit des Ortszentrums, über eine neue, eigene Zufahrt, 4 Baukörper mit insgesamt 33 Eigentumswohnungen errichtet. Durch die großzügige Tiefgarage sind diese miteinander verbunden. Jedes Wohnhaus wird über einen separaten Personenaufzug und Stiegenhaus erschlossen.

Die Top 2-14 liegt im 1. Obergeschoss vom Haus 2 mit südlicher Ausrichtung. Der moderne, durchdachte Wohnraum bietet den Bewohnern viel Freiraum, der durch die Terrasse noch erweitert wird und einen traumhaften, unverbaubaren Ausblick auf die umliegende Bergwelt bietet.

Wir weisen darauf hin, dass zwischen dem Vermittler und dem zu vermittelnden Dritten ein familiäres oder wirtschaftliches Naheverhältnis besteht.

Der Vermittler ist als Doppelmakler tätig.


Infrastruktur / Entfernungen

Gesundheit
Arzt <500m
Apotheke <500m

Kinder & Schulen
Schule <500m
Kindergarten <500m

Nahversorgung
Supermarkt <500m
Bäckerei <500m

Sonstige
Bank <500m
Geldautomat <500m
Polizei <1.500m
Post <500m

Verkehr
Bus <500m
Autobahnanschluss <500m
Bahnhof <1.000m

Angaben Entfernung Luftlinie / Quelle: OpenStreetMap

Kann ich mir diese Immobilie leisten?

  • % Nebenkosten
    0 €/ Monat
  • % Zinsen
    0 €/ Monat
  • % Kaufpreis
    0 €/ Monat
*
pro Monat
* errechnete monatliche Kreditrate bei einem angenommenen Effektivzins von 1.6% p.a. Die Berechnung stellt einen unverbindlichen Richtwert dar und ist von der Bonität, Kredithöhe, Laufzeit, Verwendungszweck und Besicherung abhängig.

Kontaktieren

GewerblichLebenstraum Immobilien GmbHFrau Barbara Huter
Nachricht
Anrede
Vorname
Nachname
E-Mail
Telefon
Ich bin Eigentümer:in einer Immobilie
Bewerbungsmappe
Erhöhe deine Chancen mit mehr Infos zu dir.
GewerblichLebenstraum Immobilien GmbHFrau Barbara Huter
 Verifiziert von ImmoScout24
Bronze Partner