{"obj_regio1":"004","obj_regio2":"004007","obj_regio3":"004007020","obj_ityp":"7","obj_zipCode":"4655","obj_title":"TOP Büroflächen direkt an der Autobahnabfahrt Vorchdorf!","obj_picture":"https://pictures.immobilienscout24.de/prod.www.immobilienscout24.at/pictureserver/loadPicture?q=70&id=012.0015I00000lbLu9-1724229646-01c84b8290cd4b06b92025b62a4bc20d","obj_exclusiveExpose":"false","obj_cwId":null,"obj_purchasePrice":null,"obj_purchasePriceRange":null,"obj_baseRentRange":null}
  • Parkplatz
  • Balkon

TOP Büroflächen direkt an der Autobahnabfahrt Vorchdorf!

Preis auf Anfrage
 
1036 m²27,5 ZimmerBalkon 13 m²
eurea Real Estates GmbHHerr Stefan Schmiedseder
4655 Vorchdorf

Einmalige Kosten

Provision: 3% des Kaufpreises zzgl. 20% USt.

Hallo neues Zuhause!

Kenne deine Chance mit Plus

Online seit120Gesehen80Kontaktiert40Gemerkt63
Plus locked

Merkmale

Büro
Baujahr 2008, Neubau, Gepflegt, Insgesamt 2 Etagen
Bürofläche 1.002,95 m²
Nutzfläche 1.035,85 m², Lagerfläche 32,9 m²
1 Balkon 13,33 m²
27,5 Zimmer
10 Toiletten, Gäste WC, Abstellraum
Parkplatz
1 Parkmöglichkeit

Ausstattung

Barrierefrei

Beschreibung

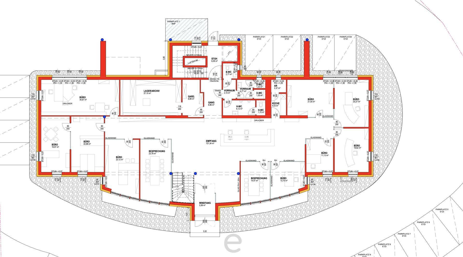
Modernes Büro in Vorchdorf zum Verkauf

Zum Verkauf steht eine großzügige Bürofläche mit insgesamt 1035,85m² im Erdgeschoß und im 1. Obergeschoß eines modernen Gebäudes in Vorchdorf. Die Immobilie befindet sich direkt am Kreisverkehr bei der Autobahnabfahrt Vorchdorf und bietet daher eine optimale Verkehrsanbindung.

Eigenschaften:

  • Baujahr: 2008, mit einem Zubau auf der Gebäuderückseite im Jahr 2013
  • Sehr niedrige Betriebskosten
  • Beheizung mittels Wärmepumpe, klimatisiert

Raumaufteilung Erdgeschoss:

  • neun Büros
  • Zwei Besprechungsräume
  • Eine Küche
  • Großzügiger Empfangsbereich
  • Ein Lager/ Archiv 

Raumaufteilung 1. Obergeschoss:

  • neun Büros
  • ein Besprechungsräume
  • WCs
  • Abstellraum
  • Küche
  • Balkon mit 13,33m²

Für weitere Informationen und Besichtigungen kontaktieren Sie bitte Stefan Schmiedseder unter der Telefonnummer Anbieter kontaktieren. Bei Internetanfragen ist die Angabe von vollständigem Namen, Adresse und Telefonnummer erforderlich (Nachweispflicht gegenüber dem Verkäufer).

Wir freuen uns darauf, Ihnen dieses moderne Büro näher vorzustellen!

Noch nichts gefunden? Wir informieren Sie über geeignete Immobilienangebote noch vor allen anderen.
Legen Sie jetzt Ihren individuellen Suchagenten unter folgendem Link an. Wir schicken Ihnen passende Immobilien exklusiv vorab zu.
Suchagent anlegen - https://eurea-real-estates.service.immo/registrieren/de


Infrastruktur / Entfernungen

Gesundheit
Arzt <1.000m
Apotheke <500m
Klinik <8.000m

Kinder & Schulen
Schule <1.000m
Kindergarten <1.000m

Nahversorgung
Supermarkt <500m
Bäckerei <1.000m
Einkaufszentrum <9.500m

Sonstige
Bank <1.000m
Geldautomat <1.000m
Post <1.500m
Polizei <8.000m

Verkehr
Bus <500m
Bahnhof <500m
Autobahnanschluss <500m
Flughafen <7.500m

Angaben Entfernung Luftlinie / Quelle: OpenStreetMap

Dokumente

Kann ich mir diese Immobilie leisten?

Deine Eigenmittel sind höher als der Kaufpreis.
  • % Nebenkosten
    0 €/ Monat
  • % Zinsen
    0 €/ Monat
  • % Kaufpreis
    0 €/ Monat
*
pro Monat
* errechnete monatliche Kreditrate bei einem angenommenen Effektivzins von 1.6% p.a. Die Berechnung stellt einen unverbindlichen Richtwert dar und ist von der Bonität, Kredithöhe, Laufzeit, Verwendungszweck und Besicherung abhängig.

Kontaktieren

Gewerblicheurea Real Estates GmbHHerr Stefan Schmiedseder
Nachricht
Anrede
Vorname
Nachname
E-Mail
Telefon
Ich bin Eigentümer:in einer Immobilie
Bewerbungsmappe
Erhöhe deine Chancen mit mehr Infos zu dir.
Gewerblicheurea Real Estates GmbHHerr Stefan Schmiedseder
 Verifiziert von ImmoScout24
Silber Partner